Description

Bright and modern 1-bedroom apartment (68 m²) with a spacious 24 m² terrace, built in 2007 and holding an energy label A. Located on the first floor of a well-maintained complex with lift access and a private parking spot. Situated in the family-friendly neighborhood Het Zand-West, Utrecht, with excellent access to amenities. Within walking or cycling distance are Leidsche Rijn Station, a modern shopping center, supermarkets, medical practices, pharmacies, sports facilities, and gyms. The city center is just a short bike ride away, and major roads are only 3 minutes by car.

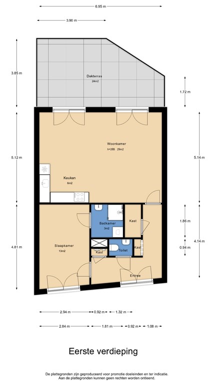
Layout

Central entrance with lift access
Hallway
Spacious living/dining room with access to the terrace
Modern kitchen with built-in appliances
1 bedroom with a built-in wardrobe
Bathroom with a shower, a washbasin, and space for a washing machine
Separate toilet
Private storage room within the apartment
All windows are fitted with custom-made curtains
Lighting is installed throughout the property

Balcony

Generous 24 m² private terrace, perfect for outdoor dining, relaxing, or enjoying the sun.

Details

Living area approx. 68 m²
Spacious private terrace of approx. 24 m²
Located on the 1st floor of a modern complex (built in 2007)
Energy-efficient: Energy label A
Lift access and private parking space in the basement
Layout:
Living/dining room: approx. 28 m² – bright and spacious, with access to the terrace
Kitchen: approx. 6 m² – modern, with built-in appliances
Bedroom: approx. 14 m² – with built-in wardrobe and custom curtains
Bathroom: approx. 5 m² – with shower, washbasin, and washing machine connection
Separate toilet: approx. 2 m²
Storage room (internal): approx. 3 m²
Hallway/entrance: approx. 10 m²
Terrace: approx. 24 m² – generous outdoor space, perfect for dining, relaxin,g or enjoying the sun
Additional features:
All windows are fitted with custom-made curtains
Fully equipped with lighting throughout
Active and well-managed Homeowners’ Association (VvE)
Centrally located in the family-friendly neighbourhood Het Zand-West, close to Leidsche Rijn Station, shopping centre, supermarkets, medical facilities, gyms, and major roads

Features