Description

SAFE, AGE-PROOF, AND COMFORTABLE LIVING for you and your family. In the heart of Almere Buiten city center.

Via the secured communal entrance with intercom and mailboxes, you have access to the elevator, the stairwell, and the external storage unit.
Stylish and spacious apartment with a sunny balcony, energy label A, and practical layout in lively Almere Buiten Center. 

The apartment is soundproofed so you will not be bothered by noise disturbances from outside.
In short, a lovely apartment that is absolutely worth a viewing!

Two steps from your home, you are in the shopping center and the weekly market, events, and you can enjoy the shoppers and the evening sun. Comfortable living and urban vibrancy come together perfectly here. Located right in the bustling center of Almere-Buiten. With the train station, swimming pool, shops, and restaurants literally a stone's throw away. Here, you live with everything within reach in a modern apartment ready for immediate occupancy.

Are you just as enthusiastic as we are and can you already picture yourself living here? Then contact us soon to schedule a viewing. We look forward to meeting you, welcome!

Layout

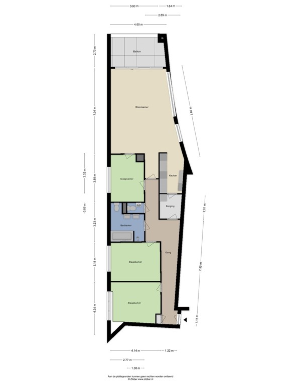
the 2nd floor of a well-maintained complex and features a spacious living room with plenty of natural light and access to the balcony. The modern open kitchen was designed by a professional chef and is equipped with various appliances. Adjoining the kitchen is a separate storage cupboard with storage space, the central heating system, and space for a washing machine and dryer. The 3 spacious bedrooms offer plenty of possibilities – from an atmospheric master bedroom to a comfortable home office or hobby room. The bathroom features a shower, bathtub, toilet, and double sink, and is fully tiled. There is also a second separate toilet for guests. The living room features large windows with sliding doors leading to the balcony.

In the basement, you will find a private, lockable, very spacious storage unit with a separate exit to the outside for easy bicycle storage.

The location of this apartment is simply perfect. Nearby, you will find various schools, sports facilities, supermarkets, a butcher, greengrocer, cheesemonger, fishmonger, as well as the Doemere Shopping Centre. Comfortable living in a modern apartment with everything you need within easy reach. Whether you love vibrancy or convenience, here you experience the best of both worlds.

Details

• Centrally located, view of the main square in Almere Buiten from an excellent angle
• Indoor, sunny and spacious balcony with plenty of privacy
• Modern kitchen with granite countertop & sink featuring luxury appliances, including: dishwasher/ American fridge/ extractor hood and 5-burner gas stove with spacious electric oven, microwave
• Combination boiler and flue recently replaced
• Furnished; many movable items can be taken over if desired
• Due to energy label A, location, and new central heating, energy costs are low
• Three spacious bedrooms, separate kitchen, separate WC, and a very spacious open living room
• Complex with elevator and video intercom, making it age-friendly
• Healthy Owners' Association performs extensive maintenance on the apartment and the complex
• Abundant surrounding greenery such as parks, forest, and the Oostvaardersplassen
• The train and bus are literally around the corner from this apartment; Amsterdam is reachable by public transport within approximately half an hour
• Parking is available in the large parking lot behind the property with a parking permit.

Features