Description

LICHT EN PRAKTISCH INGEDEELD 3-KAMERAPPARTEMENT MET ZONNIG BALKON EN EXTERNE BERGING. 

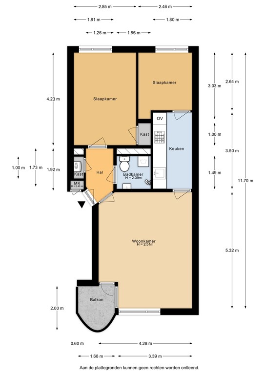
Ruim en licht 3-kamerappartement van ca. 55 m² met een balkon op het zuiden, gelegen op de derde verdieping. De erfpacht is eeuwigdurend afgekocht en de keuken is in 2020 vernieuwd: een zorgeloze start voor de nieuwe eigenaar.

INDELING:
Via de gemeenschappelijke entree aan de straat bereik je met de trap de derde verdieping.
Achter de voordeur kom je in de hal die toegang geeft tot de grote slaapkamer, de badkamer en de woonkamer.
* Woonkamer: Licht en ruim, met toegang tot het zonnige balkon op het zuiden.
* Keuken: grenzend aan de woonkamer, vernieuwd in 2020 v.v. inbouwapparatuur zoals vaatwasser, combi oven, koelkast en vriezer. 
* Slaapkamers: de grote slaapkamer ligt aan de voorzijde; de tweede slaapkamer bevindt zich achter de keuken.
* Badkamer: voorzien van een inloopdouche, wastafel en radiator.
* Op de begane grond is een externe berging van ca. 5 m² aanwezig.

LOCATIE EN BEREIKBAARHEID:
Het appartement ligt op korte loopafstand van:
* Openbaar vervoer Station Bijlmer ArenA en metrostation Strandvliet.
* Winkels & horeca Amsterdamse Poort, Megastores Arenaboulevard, Woonmall Arena.
* Entertainment & cultuur Johan Cruijff ArenA, Ziggo Dome, AFAS Live, Pathé Arena, Bijlmerparktheater.
* Groen & recreatie Nelson Mandelapark, Brasapark, Gaasperplas, Ouderkerkerplas, Diemerbos en de Hoge Dijk.
* Met de auto ben je in enkele minuten op de A2, A9 en Ring A10.

VERENIGING VAN EIGENAREN:
Het complex heeft een actieve en gezonde VvE. De maandelijkse servicekosten bedragen € 171,91 en dekken onder meer de opstalverzekering en reservering voor toekomstig onderhoud.

PLUSPUNTEN OP EEN RIJ:
* Woonoppervlakte ca. 55 m² (NEN 2580 meetrapport aanwezig)
* Balkon op het zuiden
* Keuken vernieuwd in 2020
* Energielabel B
* Externe berging ca. 5 m² op de begane grond
* Actieve VvE, servicekosten € 171,91 per maand
* Erfpacht eeuwigdurend afgekocht
* Oplevering kan direct
* Niet zelfbewoningsclausule vanaf 26 mei 2022 


Een instapklaar appartement met alles binnen handbereik: openbaar vervoer, winkels, cultuur en groen. Perfect voor wie rustig wil wonen met de dynamiek van Amsterdam om de hoek. Plan snel een bezichtiging en ervaar het zelf.

"Deze informatie is door ons met de nodige zorgvuldigheid samengesteld. Onzerzijds wordt echter geen enkele aansprakelijkheid aanvaard voor enige onvolledigheid, onjuistheid of anderszins''

****

BRIGHT AND PRACTICALLY LAID OUT 3-ROOM APARTMENT WITH SUNNY BALCONY AND EXTERNAL STORAGE. 

Spacious and bright 3-room apartment of approx. 55 m² with a south-facing balcony, located on the third floor. The ground lease has been bought off in perpetuity and the kitchen was renovated in 2020: a carefree start for the new owner.

LAYOUT:
The communal entrance on the street leads to the stairs to the third floor.
Behind the front door is the hall, which provides access to the master bedroom, bathroom, and living room.
* Living room: Bright and spacious, with access to the sunny south-facing balcony.
* Kitchen: Adjacent to the living room, renovated in 2020 and equipped with dishwasher, combi oven, fridge and freezer.
* Bedrooms: the master bedroom is at the front; the second bedroom is located behind the kitchen.
* Bathroom: equipped with a walk-in shower, sink, and radiator.
* There is an external storage room of approx. 5 m² on the ground floor.

LOCATION & ACCESSIBILITY:
The apartment is within walking distance of:
* Public transport Bijlmer ArenA station and Strandvliet metro station.
* Shops & restaurants Amsterdamse Poort, Megastores Arenaboulevard, Woonmall Arena.
* Entertainment & culture Johan Cruijff ArenA, Ziggo Dome, AFAS Live, Pathé Arena, Bijlmerparktheater.
* Green spaces & recreation Nelson Mandelapark, Brasapark, Gaasperplas, Ouderkerkerplas, Diemerbos, and the Hoge Dijk.
* By car, you can reach the A2, A9, and Ring A10 motorways in just a few minutes.

HOMEOWNERS ASSOCIATION:
The complex has an active and healthy Homeowners' Association. The monthly service charges are €171.91 and cover, among other things, building insurance and a reserve for future maintenance.

ADVANTAGES AT A GLANCE:
* Living area approx. 55 m² (NEN 2580 measurement report available)
* South-facing balcony
* Kitchen renovated in 2020  
* Energy label B
* External storage room approx. 5 m² on the ground floor
* Active HOA, service costs €171.91 per month
* Perpetual ground lease purchased
* Immediate delivery possible
* Non-occupancy clause from May 26, 2022

A ready-to-move-in apartment with everything within reach: public transport, shops, culture, and green spaces. Perfect for those who want to live quietly with the dynamism of Amsterdam just around the corner. Schedule a viewing soon and experience it for yourself.

“This information has been compiled by us with the necessary care. However, we accept no liability whatsoever for any incompleteness, inaccuracy, or otherwise.”

Features