Description

*****For English scroll down *****
*****TO SCHEDULE A VIEWING*****
1. Respond to the advertisement on Pararius or Funda. You will then receive a link to schedule a viewing.
2. Alternatively, visit HousingNet’s website and select the property you want to view. At the bottom left of the page, click the blue button 'PLAN AFSPRAAK' to book a viewing.

IMPORTANT:
If no viewing has been scheduled yet, please send an enquiry. As soon as a viewing is planned, you will receive an email with the date and time so you can confirm your attendance.

**********************

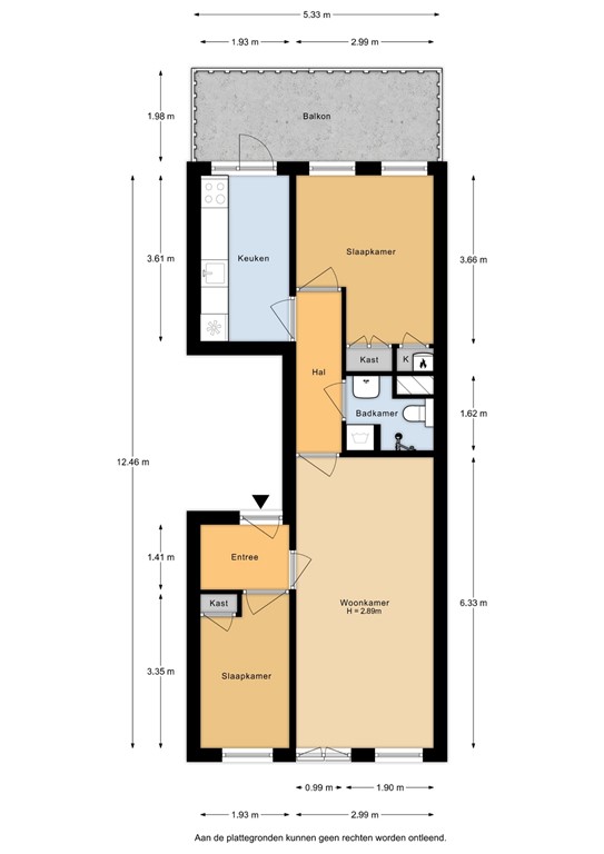
Licht en sfeervol 3-kamerappartement van ca. 54,9 m², gelegen op de tweede verdieping, met een ruim balkon van 10,6 m² aan de achterzijde. Dit goed ingedeelde appartement beschikt over twee slaapkamers, een moderne keuken, energielabel B, en bevindt zich in een karakteristiek pand in een gewilde buurt van Amsterdam.

INDELING
Gemeenschappelijke entree en trappenhuis naar de tweede verdieping. Entree/hal met toegang tot alle vertrekken. De lichte woonkamer bevindt zich aan de voorzijde. De keuken, voorzien van moderne apparatuur, ligt aan de achterzijde en geeft toegang tot het royale balkon van ca. 10,6 m² — een heerlijke plek om buiten te zitten.
Verder beschikt de woning over twee goed bemeten slaapkamers en een badkamer met douche, wastafel en toilet.

OMGEVING
Het appartement is gelegen in een levendige en geliefde buurt met tal van winkels, gezellige cafés en restaurants op loopafstand. Openbaar vervoer (tram en bus) is nabij, met snelle verbindingen naar het centrum en station Amsterdam Centraal. De uitvalswegen (A10) zijn eveneens goed bereikbaar.

VERENIGING VAN EIGENAARS
De Vereniging van Eigenaren is actief en financieel gezond. Er is een meerjarenonderhoudsplan (MJOP) aanwezig en de maandelijkse bijdrage bedraagt ca. €100,40.

ERFPACHT
De woning is gelegen op erfpachtgrond. De erfpacht is afgekocht tot 2057 en daarna vastgeklikt onder de gunstige voorwaarde!

BIJZONDERHEDEN
- Woonoppervlakte: 54,9 m² (conform NEN2580 meetrapport)
- Balkon
- Bouwjaar: 1910
- Energielabel B
- Twee slaapkamers
- CV-installatie Intergas HRE 28/24 A (2024) 
- Actieve en gezonde VvE met MJOP aanwezig
- Servicekosten: ca. €100,40,- per maand
- Erfpachtcanon afgekocht tot 2057, daarna vastgeklikt onder de gunstige voorwaarde 
- Oplevering in overleg

Hoewel HousingNet deze informatie met de grootst mogelijke zorg heeft samengesteld, kunnen aan de inhoud geen rechten worden ontleend. HousingNet kan niet aansprakelijk worden gesteld voor eventuele onjuistheden, onvolledigheden of fouten. Alle verstrekte informatie, waaronder afmetingen en oppervlaktes, is indicatief en uitsluitend bedoeld voor promotionele doeleinden.

****************************************************************************************


Bright and well-laid-out two-bedroom apartment of approximately 54.9 m², located on the second floor, featuring a spacious 10.6 m² balcony at the rear. This charming apartment has energy label B, a modern kitchen, and is situated in a characteristic building in a popular part of Amsterdam.

LAYOUT
Communal entrance and staircase to the second floor. Entrance hall with access to all rooms. The bright living room is at the front. The kitchen, equipped with modern appliances, is at the rear and opens onto the generous balcony (approx. 10.6 m²) — a wonderful outdoor space for relaxing or entertaining.
There are two well-sized bedrooms and a bathroom with a shower, sink, and toilet.

AREA
The apartment is in a lively and desirable neighbourhood with numerous shops, cafés, and restaurants within walking distance. Public transport (tram and bus) is nearby, offering easy access to the city centre and Amsterdam Central Station. Major highways (A10) are also conveniently close.

HOMEOWNER’S ASSOCIATION
Active and financially healthy homeowner’s association with a multi-year maintenance plan (MJOP) in place. The monthly contribution is approximately €100,40,.

LEASEHOL
The property is on leasehold land, bought off untill 2057 and then clicked under the favourable conditions. 

SPECIAL FEATURES
- Living area: 54.9 m² (measurement report available, NEN2580)
- Balcony
- Energy label B
- Two bedrooms
- Intergas HRE 28/24 A boiler (2024) 
- Active, well-maintained VvE with MJOP
- Monthly service charges: approx. €100,40,- 
- Ground lease; paid off untill 2057 and then clicked under the favourable conditions. 
- Delivery in consultation

Although HousingNet has compiled this information with the greatest possible care, no rights can be derived from the contents. HousingNet cannot be held liable for any inaccuracies, omissions, or errors. All information provided, including dimensions and surface areas, is indicative and intended for promotional purposes only.

Features