Description

Licht en ruim familiehuis (ca. 98 m²) , met een moderne  keuken, 2 slaapkamers, een nette badkamer én een zonnige terras. De woning is gelegen in een rustige, groene straat in Nieuw-Sloten, in het westelijke deel van de stad. Op korte loopafstand vind je het Kasterleepark en met de fiets ben je zo bij het Hoofddorpplein of in Amsterdam-Zuid.

Dankzij de grote ramen is het huis bijzonder licht en voelt het overal ruim aan. In 2022 is de begane grond volledig gerenoveerd, Dit zijn de keuken, badkamer en 1e slaapkamer. De begane grond is volledig voorzien van vloerverwarming. De erfpacht is afgekocht tot 2043 en het appartement beschikt over een energielabel B. 

NIEUW-SLOTEN:
Roeselaarstraat 27  bevindt zich in het rustige en groene stadsdeel Nieuw-West, in de wijk Sloten. Deze kindvriendelijke buurt kenmerkt zich door de ruim opgezette straten, veel groen en een ontspannen woonomgeving. In de directe nabijheid liggen verschillende parken, zoals het Sloterpark en de Nieuwe Meer – perfect voor wandelen, sporten en recreatie. Voor de dagelijkse boodschappen zijn er diverse supermarkten en buurtwinkels binnen handbereik. Daarnaast zijn er meerdere scholen, kinderopvang en sportvoorzieningen in de omgeving aanwezig. Met de fiets bereikt u bovendien in korte tijd zowel het stadscentrum als het levendige Oud-Zuid.

BEREIKBAARHEID:
De bereikbaarheid van Roeselaarstraat 27 is uitstekend. Met de auto bent u binnen enkele minuten op de A4, A9 en A10, waardoor steden als Haarlem, Den Haag en Utrecht goed bereikbaar zijn. Ook met het openbaar vervoer is de locatie goed ontsloten: diverse bus- en tramverbindingen brengen u snel naar Station Lelylaan, Station Sloterdijk of direct naar het centrum van Amsterdam. Schiphol Airport ligt op slechts 10 minuten rijden, wat deze locatie ook zeer geschikt maakt voor reizigers.

BEGANE GROND:
Entree met toegang tot de berging. Moderne keuken voorzien van diverse inbouwapparatuur. Nette badkamer uitgerust met bad/douchecombinatie, wastafelmeubel en aansluiting voor de wasmachine. Daarnaast bevindt zich op deze verdieping de eerste slaapkamer en een separaat toilet. Volledig voorzien van vloerverwarming.

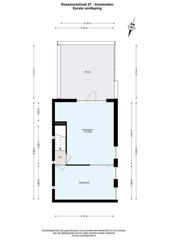
EERSTE VERDIEPING:
Overloop met toegang tot de woonkamer, die direct grenst aan het zonnige en onderhoudsvriendelijke dakterras van circa 23 m², gelegen op het zuiden/zuidwesten. Daarnaast bevindt zich op deze etage een tweede kamer, geschikt als slaapruimte, werk- of hobbykamer, of als uitbreiding van de woonkamer.

EIGENDOMSSITUATIE: Het voortdurend recht van erfpacht, eigendom van de gemeente Amsterdam is afgekocht tot en met 1 september 2043. De erfpacht is eeuwigdurend vastgeklikt na 31 augustus 2043 op € 1020,06  per jaar. (jaarlijkse indexering) Eeuwigdurend afkopen is mogelijk.

BIJZONDERHEDEN:
- Gebruiksoppervlakte: 111 M2 incl. inpandige berging. (NEN 2580 gemeten, meetrapport aanwezig)
- Woonoppervlakte: ca. 98 M2.
- Inpandige berging: ca. 7 M2.
- Gebouw gebonden buitenruimte: ca. 23 M2.
- Bouwjaar: 1995.
- Energielabel B, geldig tot en met 17 november 2031.
- Uitstekend geïsoleerde woning o.a. voorzien van dubbel glas, vloer- en muurisolatie.
- Jonge en kindvriendelijke woonwijk.
- Nabij diverse basisscholen
- Notaris: naar keuze koper, mits koopakte conform Model Ring bij notaris in Groot Amsterdam.
- Oplevering: geheel in overleg, kan snel!

-Disclaimer
Wij kunnen niet instaan voor de volledigheid, juistheid en actualiteit van de op deze website gebruikte gegevens en adviseren je bij interesse in een van de woningen contact met ons op te nemen of je te laten bijstaan door een eigen makelaar. De op deze website getoonde vrijblijvende informatie is door ons met zorg samengesteld op basis van gegevens van de verkoper en/of derden. Wij kunnen niet instaan voor de juistheid of volledigheid hiervan. Wij adviseren je en/of je makelaar om contact met ons op te nemen bij interesse in een van onze woningen. Wij zijn niet verantwoordelijk voor de inhoud van de websites waarnaar wordt verwijzen.


NIEUW-SLOTEN
Roeselaarstraat 27 is situated in the calm and green district of Nieuw-West, in the neighbourhood Sloten. This family-friendly area is known for its spacious layout, lush greenery, and relaxed living atmosphere. Several parks, including Sloterpark and De Nieuwe Meer, are close by—ideal for walking, sports, and recreation. Daily amenities such as supermarkets and local shops are within easy reach, along with various schools, childcare facilities, and sports clubs. Additionally, both the city centre and the vibrant Oud-Zuid can be reached quickly by bike.

ACCESSIBILITY
The accessibility of Roeselaarstraat 27 is excellent. By car, you can reach the A4, A9, and A10 motorways within minutes, providing easy access to Haarlem, The Hague, and Utrecht. Public transport connections are also very convenient: various bus and tram services take you quickly to Station Lelylaan, Station Sloterdijk, or directly to Amsterdam city centre. Schiphol Airport is only a 10-minute drive away, making this location also very suitable for frequent travelers.

GROUND FLOOR
Entrance with access to the storage room. Modern kitchen equipped with various built-in appliances. Well-maintained bathroom featuring a bath/shower combination, washbasin cabinet, and washing machine connection. Also located on this level are the first bedroom and a separate toilet. The entire floor benefits from underfloor heating.

FIRST FLOOR
Landing with access to the living room, which directly connects to the sunny, low-maintenance roof terrace of approximately 23 m², facing south/southwest. Additionally, there is a second room on this floor that can serve as a bedroom, home office, hobby room, or as an extension of the living room.
OWNERSHIP / GROUND LEASE
The continuous leasehold right, owned by the Municipality of Amsterdam, is paid off until 1 September 2043. After this date, the perpetual ground lease has been fixed at €1,020.06 per year (subject to annual indexation). Perpetual lease buyout is possible.

PARTICULARS
- Total usable area: approx. 111 m² including internal storage (NEN 2580 measured, measurement report available)
- Living area: approx. 98 m²
- Internal storage: approx. 7 m²
- Building-related outdoor space: approx. 23 m²
- Year of construction: 1995
- Energy label B, valid until 17 November 2031
- Well-insulated home with double glazing and floor and wall insulation
- Located in a young and child-friendly neighbourhood
- Close to various primary schools
- Notary: buyer’s choice, provided the deed of sale follows the Ring Model and is executed by a notary in Greater Amsterdam
- Delivery: in consultation; early transfer possible

Disclaimer
Although this information has been compiled with care based on data provided by the seller and/or third parties, we cannot guarantee its accuracy or completeness. We therefore advise interested parties to contact us and/or engage their own real estate professional. We are not responsible for the content of any external websites referred to.

Features