Description

Pak deze kans: kluswoning in Asperen!

Aan de Van Arkelstraat in het gezellige Asperen staat deze eindwoning uit 1967. De woning ligt op loopafstand van de Spar en de uitgebreide sportvoorzieningen.

De woning verkeert in slechte staat en is toe aan een volledige renovatie en vormt juist daardoor een mooie kans voor handige klussers. 
Met een woonoppervlak van 88 m², een perceel van 143 m², een vrijstaande berging en een diepe achtertuin biedt deze woning volop mogelijkheden om naar eigen inzicht en smaak te verbouwen en in te richten.

Wij adviseren je de brochure van deze woning te downloaden van onze website.
In deze brochure vind je uitgebreide informatie met extra foto's evenals plattegronden en kadastrale gegevens.

Layout

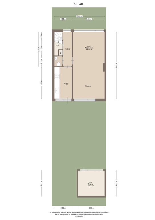
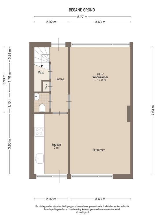
Je komt binnen via de hal met trapopgang, trapkast, meterkast, toilet en toegang tot de woonkamer.
De woonkamer is ruim en licht en heeft aan beide zijden grote raampartijen.
Na het aanpakken van beide puien en de vloer is hier een mooie leefruimte te creëren.
Daarnaast ligt de keuken met aan de achterzijde een achterdeur, die toegang geeft tot de tuin. De aanwezige apparatuur functioneert niet naar behoren.
Beide ruimtes zijn gedateerd, maar bieden goede lichtinval en mogelijkheden voor een moderne, open indeling.

First floor

De eerste verdieping beschikt over drie slaapkamers en een kleine badkamer.
Aan de voorzijde ligt een ruime slaapkamer. Aan de achterzijde liggen 1 grotere en 1 kleine slaapkamer.
De badkamer is voorzien van een wastafel en een douchebak. 
De badkamer is niet bruikbaar vanwege een lekkage.

Second floor

De zolderverdieping is bereikbaar via een vaste trap en bestaat uit een voorzolder en een centrale zolderruimte. 
Er is een klein dakraam aanwezig wat in slechte staat verkeert. Er is bergruimte beschikbaar achter de knieschotten.

Garden

De woning beschikt over een voor- en achtertuin. De achtertuin is diep en heeft een eenvoudige inrichting met een achterom. De ligging is gunstig en biedt veel privacy. De tuin grenst aan een brandgang.
Er staat een houten schutting die vervangen dient te worden.
Achterin de tuin staat een vrijstaande stenen berging, ideaal voor opslag of fietsen. Kozijnen, deur en boeiboorden verkeren in slechte staat.

Details

Voor technische kenmerken en bijzonderheden verwijzen wij je naar de brochure. 
In de koopovereenkomst wordt de As-is-where-is-clausule opgenomen.

Asperen is een historisch stadje aan de Linge, omgeven door middeleeuwse stadsmuren en grachten, die het een uniek karakter geven. Met ongeveer 3.000 inwoners biedt Asperen zowel rust als een levendig gemeenschapsleven. Het dorp is een ideale plek voor wie houdt van historie, natuur en een sterk gemeenschapsgevoel. Asperen biedt alle voorzieningen die je nodig hebt, zoals basisscholen, een natuurzwembad, sportverenigingen en een dorpshuis waar regelmatig evenementen worden georganiseerd.

In de directe omgeving vind je forten die deel uitmaken van de Hollandse Waterlinie, zoals Fort Asperen, wat ideaal is voor liefhebbers van historie en cultuur. De uitgestrekte polders en nabijgelegen natuurgebieden nodigen uit tot mooie wandel- en fietstochten. Voor middelbare scholen en grotere winkels is Leerdam slechts vijf minuten rijden. Dankzij de centrale ligging ben je met de auto snel op de A15 en A2, wat forenzen naar Utrecht, Den Bosch of Rotterdam makkelijk maakt. Asperen is daarmee een perfecte plek voor gezinnen en rustzoekers die toch goed verbonden willen blijven met de rest van Nederland.

Interesse gewekt? Schakel meteen je eigen aankoopmakelaar in.
Jouw aankoopmakelaar komt op voor jouw belang en bespaart je tijd, geld en zorgen.

Features