Description

Wauw, wat een licht en ruimte!
Deze uitstekend onderhouden hoekwoning gelegen in een gewilde, kindvriendelijke wijk verrast met een woonkamer met fantastische uitbouw en schitterende lichtstraat, waar binnen en buiten naadloos in elkaar overlopen. En stap je naar buiten, dan wacht een heerlijke zonnige tuin met overkapping – de perfecte plek voor borrels, spelende kinderen of een ontspannen moment in de zon. Met vijf slaapkamers, een complete keuken en een moderne badkamer is dit een huis waarin elk moment bijzonder voelt of je nu ontspant in de woonkamer, geniet in de tuin of samen dineert in de lichte uitbouw.

Highlights aan van de woning:
-	Bouwjaar: 1989
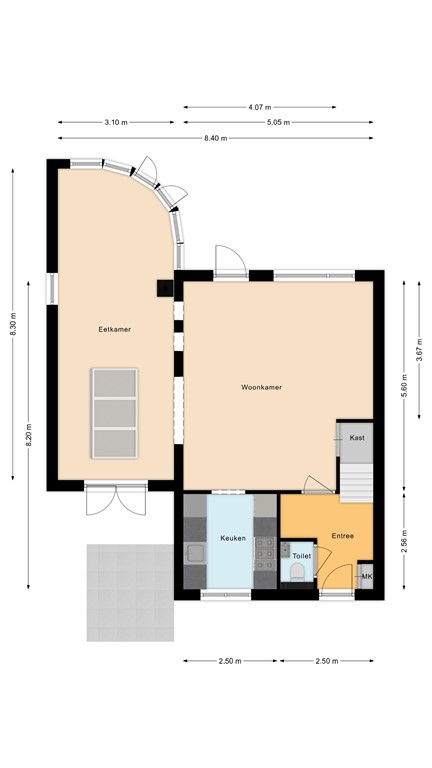
-	Woonoppervlakte: 128 m²
-	Perceeloppervlakte: 176 m²
-	Sfeervolle, ruime woonkamer met een stijlvolle uitbouw aan de zijkant met prachtige lichtstraat, dubbele openslaande deuren aan weerszijden en een gezellige gashaard
-	Lichtstraat voorzien van subtiele randverlichting binnen en een screen buiten voor extra comfort
-	Domoticasysteem voor audio met fraai weggewerkte speakers in de woonkamer en keuken
-	Prachtige eikenhouten vloer die warmte en karakter toevoegt
-	Massief houten keuken met diverse inbouwapparatuur, waaronder een nieuwe vaatwasser (2025)
-	Eigentijdse badkamer met inloopdouche, wastafelmeubel met dubbele kraan, zwevend toilet en elegante ingebouwde nissen – ideaal voor handdoeken en accessoires
-	In totaal vijf slaapkamers:
•	Drie op de eerste verdieping, waarvan één met een groot dakraam
•	Twee op de zolderverdieping met gezamenlijke kunststof dakkapel, waarvan één slaapkamer ook een groot dakraam heeft
-	Zolderoverloop met extra dakraam en toegang tot een vliering met nóg meer opbergruimte
-	Energielabel C en overal dubbel glas
-	Zonnige, ruime achtertuin op het noordwesten met terras, elektrisch zonnescherm en een geweldige overkapping met twee heaters
-	Veelzijdige overkapping met handige nis: klap de eettafel op en maak ruimte voor je loungeset!
-	Vrijstaande, stenen berging in de achtertuin, bereikbaar via de zijkant
-	Praktische voortuin met overkapping voor fietsen en kliko’s, bereikbaar via poortdeur
-	Ruime parkeergelegenheid in de buurt
-	Gelegen in een kindvriendelijke wijk: groen, ruim opgezet en ideaal voor gezinnen

De omgeving. 
De woning ligt in een gezellige woonwijk aan de rand van het centrum van Bodegraven, waardoor deze goed bereikbaar is via de N458/Burgemeester Kremerweg. Via deze weg zijn de N11 en de A12 binnen enkele autominuten bereikbaar. Het station van Bodegraven is binnen enkele fietsminuten bereikbaar. Vanuit hier ben je met de trein in ca. 20 minuten in Leiden of in Utrecht. 
De woning ligt op loopafstand van het centrum van Bodegraven, met gezellige winkeltjes en restaurantjes. Voorzieningen als scholen en sportverenigingen bevinden zich ook op wandelafstand. 

Kijken?
Maak een afspraak om deze mooie woning in het echt te bewonderen. Dit kan door te reageren via de woning op Funda, we nemen dan contact met je op om een afspraak in te plannen. We sturen je dan ook meer informatie over deze woning toe, zodat jij je goed kan voorbereiden op de bezichtiging en gerichte vragen kunt stellen.

Deze informatie is door ons met de nodige zorgvuldigheid samengesteld. Er wordt echter geen enkele aansprakelijkheid aanvaard voor enige onvolledigheid, onjuistheid of anderszins, dan wel de gevolgen daarvan. Alle opgegeven maten en oppervlakten zijn indicatief.

Features