Description

Bolder 9 – een tussenwoning met grootse ambities

Met een woonoppervlakte van maar liefst 153 m² en een indeling die je normaal alleen in het hogere segment tegenkomt, is Bolder 9 allesbehalve een standaard tussenwoning. De ruimte, de afwerking en de slimme opzet maken dit huis tot een comfortabele gezinswoning met nét dat beetje extra. En het mooiste? Alles is recent vernieuwd. Denk aan nieuwe vloeren, een moderne keuken en stijlvolle stalen deuren die zorgen voor een eigentijdse uitstraling. Alles klopt hier gewoon.

Zodra je binnenkomt, merk je het verschil. De uitbouw op de begane grond zorgt voor twee royale leefruimtes: een gezellige woonkamer én een woonkeuken waar je met gemak een grote eettafel kwijt kunt. De stalen deuren geven karakter en zorgen voor een fijne verbinding tussen de ruimtes. En dankzij de nieuwe schuifpui loopt de tuin naadloos over in de woonkamer—een plek waar je ’s zomers heerlijk buiten leeft.

Boven is het net zo ruim. Op de eerste verdieping vind je drie fijne slaapkamers, een luxe badkamer en een apart toilet. Praktisch én comfortabel. En dan is er nog de tweede verdieping: twee extra slaapkamers en een grote voorzolder met plek voor de was, opslag en alles wat je uit het zicht wilt houden.

Wat dit huis extra aantrekkelijk maakt, is de ligging. Rustig, maar toch op korte afstand van het dorpscentrum. Je wandelt zo naar de winkels of een gezellig terras. En parkeren? Aan de overkant zijn ruime parkeerhavens, dus je hebt altijd plek.

Bolder 9 is een huis dat je verrast. Ruimte, stijl en comfort komen hier moeiteloos samen. Een plek waar je je zó thuis voelt.

Layout

Je komt binnen via de entree met toegang tot de meterkast en het toilet. Vanuit de hal stap je in de eetkamer, die direct in verbinding staat met de keuken aan de voorzijde. Achterin vind je de lichte woonkamer met schuifdeuren naar de tuin. Daarnaast zijn er handige kasten onder de trap voor extra bergruimte.

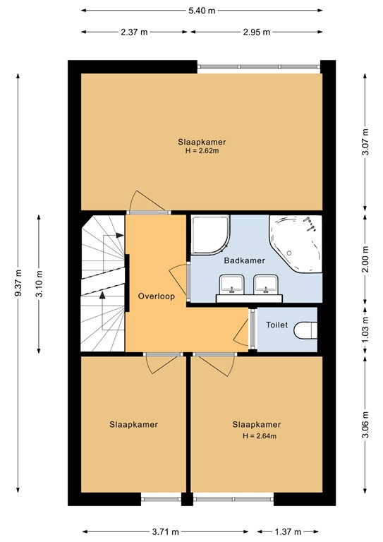
First floor

Op de eerste verdieping vind je drie ruime slaapkamers. De moderne badkamer is voorzien van een ligbad, dubbele wastafel en douche. Daarnaast is er een separaat toilet aanwezig, bereikbaar via de overloop.

Second floor

Op de tweede verdieping tref je nog twee slaapkamers, beide voorzien van handige knieschotten. Daarnaast is er op de overloop ruimte voor de wasmachine en extra opbergruimte.

Garden

De woning beschikt over een ruime, onderhoudsvriendelijke achtertuin met veel bestrating, ideaal voor buitenactiviteiten en gezellig samenzijn. Aan de woningzijde zorgen grote schuifpuien voor een fijne verbinding tussen binnen en buiten. Achter in de tuin staat een praktische berging met dubbele deuren en ramen, perfect te gebruiken als opslagruimte of hobbyruimte.

Details

- Recent begane grond verbouwd
Vloeren, deuren, keuken en schuifpui

- Dakkapel voor en achterzijde

- Energielabel A

Features