Description

Royaal wonen verdeeld over meerdere woonlagen, met ruimte, comfort en flexibiliteit als uitgangspunt. Deze woning beslaat drie woonlagen en biedt een verrassend ruime en prettige leefomgeving die zich onderscheidt door zijn indeling en mogelijkheden.

De nieuwe keuken vormt het centrale punt van de woning en sluit mooi aan op de leefruimte. Dankzij de vloerverwarming is het hier het hele jaar door aangenaam wonen. Met maar liefst vijf slaapkamers is er volop ruimte voor een groot gezin, werken aan huis of het combineren van wonen en hobby’s. Elke woonlaag heeft zijn eigen karakter, wat zorgt voor een fijne balans tussen samen leven en privacy.

Het dakterras biedt een heerlijke buitenplek waar je in alle rust kunt genieten van zon en ruimte. Daarnaast beschikt de woning over een eigen berging en een parkeerplek, waardoor ook praktisch gezien aan alles is gedacht.

First floor

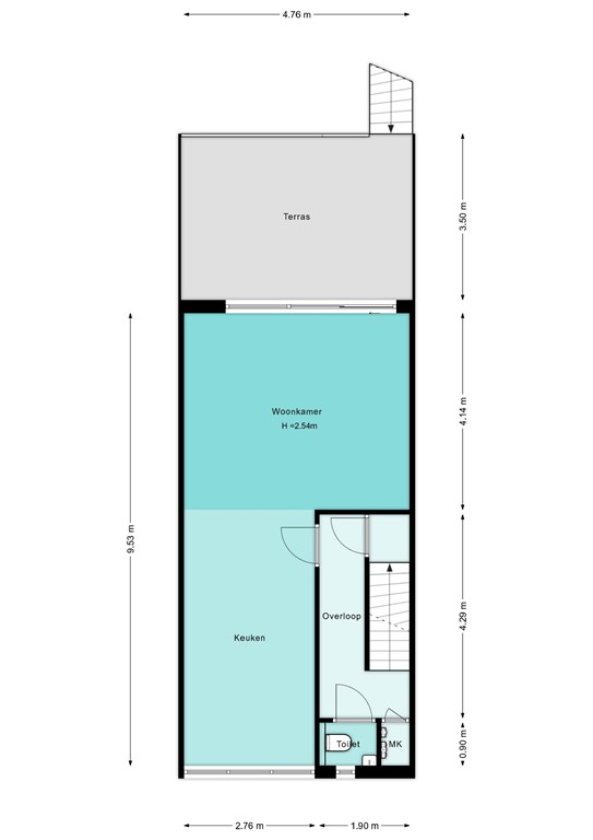
Via de overloop bereikt u het separate toilet en de garderobekast. De verdieping beschikt over een ruime, lichte woonkamer met grote raampartijen en directe toegang tot het zonnige balkon. Via een trap vanaf het terras bereikt u de tuin, met aansluitend een pad naar de berging. Aangrenzend aan de woonkamer bevindt zich de open keuken, die praktisch is ingericht en in open verbinding staat met het leefgedeelte. De goede maatvoering en prettige lichtinval zorgen hier voor een aangename woonverdieping met een fijne balans tussen wonen en koken.

Second floor

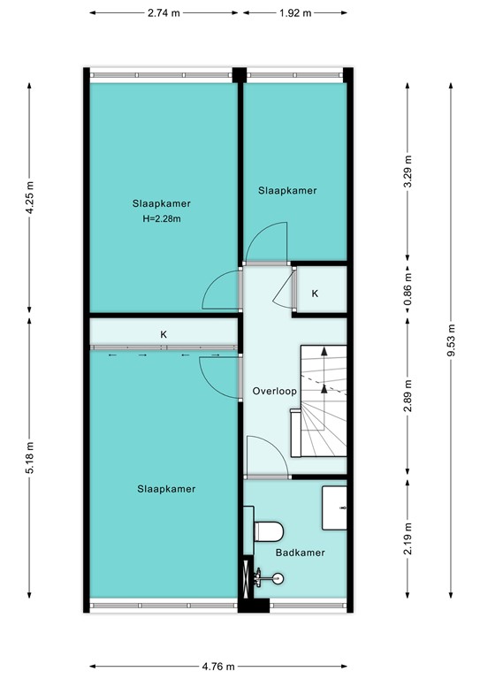
Via de overloop zijn alle vertrekken op deze verdieping bereikbaar. De verdieping beschikt over drie slaapkamers van verschillende afmetingen, waardoor deze ruimte zich uitstekend leent voor een gezin, thuiswerken of logees. De badkamer is praktisch ingericht en voorzien van douche, wastafel en toilet. Daarnaast is er bergruimte aanwezig, ideaal voor extra opslag. Dankzij de rechte gevels zijn de kamers efficiënt in te delen en is er sprake van een prettige lichtinval.

Other floors

Via de overloop bereikt u op deze verdieping twee volwaardige slaapkamers, beide met een prettige lichtinval dankzij de dakramen. De kamers zijn goed van formaat en multifunctioneel inzetbaar, bijvoorbeeld als slaap-, werk- of hobbyruimte. De praktische indeling en extra bergruimte achter de knieschotten maken deze verdieping bijzonder functioneel.

Balcony

Het ruime balkon is gelegen op het westen en vormt een heerlijke plek om tot in de avond van de zon te genieten. Vanuit de woonkamer heeft u direct toegang tot dit buitenverblijf

Features