Description

Aan de Oude Bocht 18 staat een woning die direct indruk maakt. Van binnen én buiten straalt dit huis een moderne klasse uit, dankzij een complete verbouwing waarbij gekozen is voor luxe materialen en een afwerking van hoog niveau. Alles is tot in detail verzorgd, waardoor het wooncomfort echt een klasse apart is.

Door de royale breedte voelt het huis opvallend ruim en open aan. Bovendien is de indeling flink geoptimaliseerd. Op de begane grond vind je een lichte en praktische woonkamer met sfeervolle haard, ideaal voor gezellige avonden. De keuken vormt het hart van de woning, uitgevoerd met een modern kookeiland en volop ruimte voor een grote eettafel. Een plek waar koken, samenzijn en genieten naadloos samenkomen.

De eerste verdieping telt drie volwaardige slaapkamers, een zeer complete badkamer én een apart toilet – een luxe die je niet vaak ziet. Iedere ruimte ademt kwaliteit en is praktisch ingedeeld, zodat het hele gezin zich hier direct thuis voelt.

Niet alleen binnen, maar ook buiten is aan alles gedacht. De recent vernieuwde tuin ligt gunstig op het westen, waardoor je ’s middags en ’s avonds volop van de zon kunt genieten. Een fijne plek om te ontspannen of gasten te ontvangen.

De ligging is perfect: rustig en toch centraal, met het levendige centrum van Spakenburg op loopafstand. Zo heb je winkels, horeca en gezellige terrassen altijd binnen handbereik, terwijl je thuis geniet van ruimte, luxe en comfort.

Layout

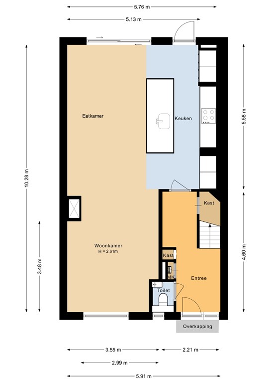
Via de entree met garderobe, meterkast, trapopgang en separaat toilet bereik je de royale leefruimte. De woonkamer en eetkamer vormen samen een open en lichte ruimte, ideaal voor een comfortabele zithoek en een grote eettafel. Aan de achterzijde bevindt zich de moderne keuken met spoeleiland en veel bergruimte, die direct in verbinding staat met de eetkamer.

First floor

De overloop geeft toegang tot drie ruime slaapkamers, waarvan één is voorzien van een praktische inbouwkast. Verder tref je op deze verdieping een separaat toilet en een moderne badkamer met dubbele wastafel en ligbad.

Second floor

Via een vaste trap bereik je de zolderverdieping. Hier bevindt zich een royale slaapkamer met dakkapellen aan beide zijden, wat zorgt voor veel licht en extra ruimte. Daarnaast beschikt deze verdieping over twee ruime bergruimtes, ideaal voor het opbergen van spullen.

Garden

De tuin is modern en onderhoudsvriendelijk aangelegd met een combinatie van grote terrastegels en grindvlakken, afgewisseld met groene borders en sfeervolle beplanting. Direct achter de woning bevindt zich een ruim terras, ideaal voor een eettafel. Achterin de tuin is een tweede zitgedeelte gecreëerd met een gezellige loungehoek, omgeven door groen. De tuin is volledig omsloten door houten schuttingen en beschikt over een achterom en een praktische stenen berging.

Features