Description

Visventerssteeg 15 – Bunschoten-Spakenburg

Midden in het kloppende hart van Spakenburg, aan de sfeervolle Visventerssteeg, ligt dit moderne appartement. De woning, gebouwd in 2016, combineert eigentijds wooncomfort met een bijzondere ligging: direct tussen de gezellige winkelstraten, terrassen en de authentieke sfeer waar Spakenburg zo bekend om staat.

De woning zelf is een ruim tweekamerappartement en voelt dankzij de slimme indeling heerlijk licht en ruimtelijk aan. Duurzaam wonen staat hier centraal: het gebouw is uitgerust met een warmtepomp en volledig voorzien van vloerverwarming, wat zorgt voor een uiterst comfortabele en energiezuinige leefomgeving. De woonkamer en open keuken vormen samen een uitnodigende leefruimte, afgewerkt met moderne materialen. De aparte slaapkamer biedt een rustige plek om je terug te trekken en de badkamer is keurig verzorgd en fris.

Een extra fijn detail is de gezamenlijke binnentuin. Deze buitenruimte biedt de bewoners een heerlijke plek om even buiten te zijn, bijvoorbeeld met een kop koffie of een goed boek. Juist in hartje centrum is dat een waardevolle toevoeging.

Wonen aan de Visventerssteeg 15 betekent genieten van alles wat Spakenburg zo aantrekkelijk maakt. Je loopt direct naar de markt, de haven en de vele gezellige eetgelegenheden. En ondanks de levendige omgeving woon je hier verrassend rustig, met alle voorzieningen letterlijk om de hoek.

Ben jij op zoek naar een duurzaam, sfeervol en centraal gelegen appartement? Dan is deze woning absoluut een bezichtiging waard!

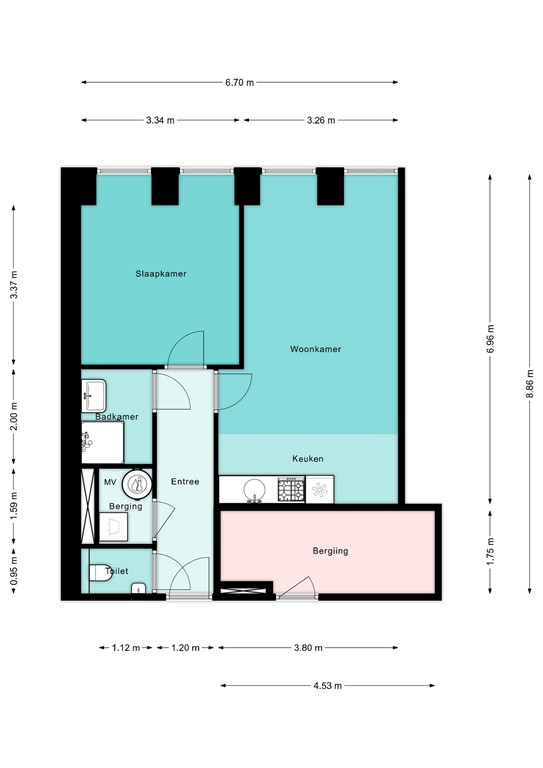
Layout

Entree
Entree met toegang tot de hal.

Hal
Hal met toegang tot de technische ruimte, het toilet, de badkamer, de slaapkamer en de woonkamer met open keuken.

Woonkamer
Woonkamer met grote raampartijen die zorgen voor veel lichtinval.

Keuken
Open keuken voorzien van diverse inbouwapparatuur, waaronder een oven, vaatwasser, koelkast, vriezer, inductiekookplaat en afzuigkap.

Badkamer
Badkamer met inloopdouche, wastafel en designradiator.

Technische ruimte
Technische ruimte met aansluitingen voor wasmachine en droger, en opstelling van de boiler.

Slaapkamer
Ruim opgezette slaapkamer met grote ramen.

Toilet
Apart toilet met fonteintje.

Garden

Gezamenlijke binnentuin naast appartement.

Details

- Volledig voorzien van vloerverwarming
- Mogelijkheid tot koelen via de warmtepomp
- Gebouw voorzien van lift
- Eigen berging in de garage
- VvE-bijdrage: € 100 per maand

Features