Description

Hendricus Krijthestraat 29 Coevorden
Wonen aan het groen in de wijk Ossehaar 

Nieuwbouw twee-onder-een-kapwoning met garage en carport, een tuin op het zuiden met een rustige ligging aan het groen met een fietspad waar niet meer gebouwd gaat worden in de wijk. Deze verrassende woning staat in de geliefde wijk Ossehaar van Coevorden, rustig maar ook centraal gelegen ten opzichte van winkel- en sportvoorzieningen en diverse uitvalswegen. 

Gebouwd in 2006, volledig geïsoleerd en voorzien van HR++ beglazing, elektrische zonwering, zonnepanelen, airconditioning en energielabel A+. Bij aankoop kom je in aanmerking voor Nationale Hypotheek Garantie wat je ook een extra korting op de hypotheekrente oplevert. Deze woning staat zuinig genieten, het hele jaar door!

Doordat de voortuin grotendeels voorzien is van bestrating, kun je hier makkelijk twee tot drie auto’s voor je deur parkeren. Je auto onder de carport of in de garage zetten behoort ook tot de mogelijkheden. Ideaal is dat je droog je woning kunt binnenstappen. 

De indeling van de woning is als volgt:

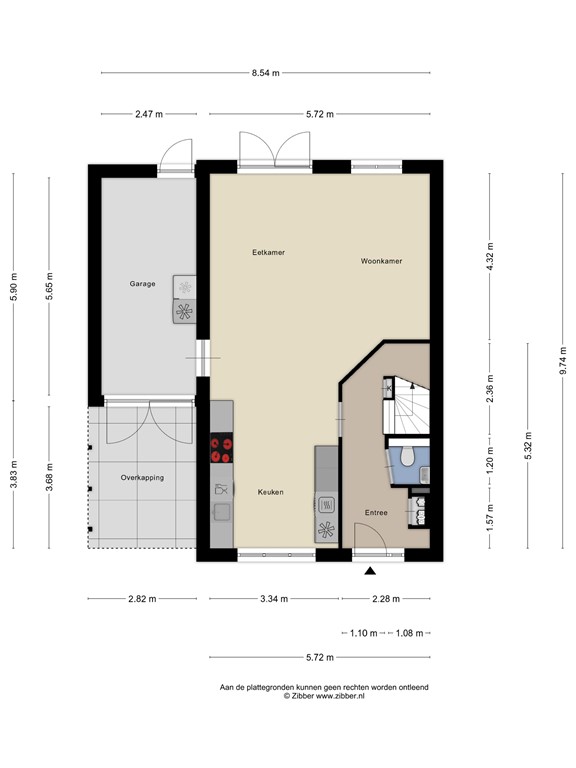
Begane grond:
De begane grond is voorzien van een plavuizen vloer en is makkelijk in onderhoud. Vanuit de entree/hal bereik je met een vaste trap de eerste verdieping, een (gasten)toilet en de woon-/eetkamer. 

De recent vervangen inbouwkeuken is aan de straatzijde geplaatst aan beide zijden. Dit zorgt voor licht een veel werkplek. Aan een zijde is een handige koffiecorner gemaakt. 

Met de aanwezige inbouwapparatuur te weten een inductie kookplaat met afzuigkap, een vaatwasser, een combi stoomoven en een combimagnetron en een koelkast is de keuken ingericht om een heerlijke maaltijd te bereiden.

Aan de achterzijde met zicht op de tuin is de woonkamer gesitueerd. Vanuit de openslaande deuren stap je zo het terras op, aan jou om binnen of buiten te eten. Fijn is de aangebrachte airconditioning voor koeling bij warm weer. De zonnepanelen leveren voldoende op met de ligging op het zuiden.

Er is een doorgang vanuit de woning naar de garage. De garage met carport is vanaf de straat bereikbaar met dubbele deuren en is daarnaast voorzien van een loopdeur naar de tuin. Naast de woning is een brede schuttingdeur aanwezig zodat je ook te voet vanaf de straatzijde de tuin kunt bereiken of om hier met je aanhanger te komen.

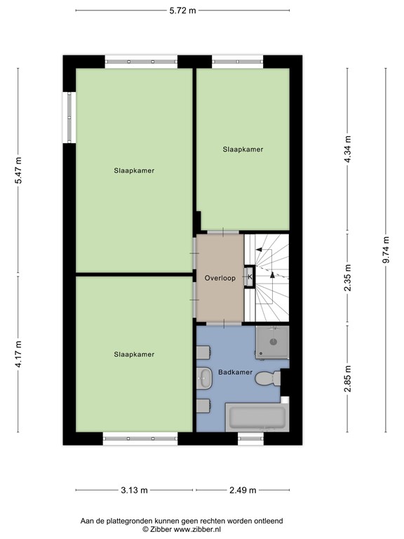
Eerste verdieping:
Vanuit de overloop bereik je de drie slaapkamers. De badkamer is volledig betegeld in een lichte kleurstelling en praktisch ingericht met een nieuwe glazen douchecabine en designradiator, een wastafel, een tweede toilet, een ligbad en een raampartij. 

Tweede verdieping:
Met vaste trap bereik je de tweede verdieping met hoge nok. In deze ruimte vind je ook de opstelling van de HR-combiketel met WTW en zonneboiler en de aansluitingen voor een wasmachine en/of droger. Door het dakraam en de hoge nok kun je hier prima een vierde slaapkamer maken, maar als zolder voor opslag of als sportkamer voldoet deze ruimte ook goed. 

Extern:
Je kunt de achtertuin zowel vanuit de woonkamer, via de doorgang bij de garage als via het zijpad naast de woning bereiken. Er is voldoende bestrating aanwezig om te kiezen waar je je terras wilt hebben. Er is drainage aangebracht om het water goed af te voeren.

Zit je liever in de zon of in de schaduw, aan jou de keuze. Aan groen en beplanting is ook gedacht en er is een BBQ plek gemaakt. In de tuin staat daarnaast een grote houten schuur, geschikt voor hobby of opslag. 

Bijzonderheden
- Door de ligging zeer veel privacy, geen achterburen en mooie groenvoorziening met prachtige bomen.
- Fundering van de blokhut is 15cm dik met 60cm vorstrand en is ook geschikt voor eventueel een vaste schuur. In de tuin en bij de blokhut is stroomvoorziening aangelegd. 
- Er is een drainage systeem in de tuin om bij hevige regenval het water goed af te voeren.
- De houtgestookte hottub wordt ter overname aangeboden.
- Voorzien van 9 zonnepanelen, 1 zonnecollector in combinatie met boiler en airconditioning
- De wijk is zeer kindvriendelijk opgezet met in de buurt diverse speeltuinen en parken.
- Mooie fietsroutes in de omgeving.

Vestingstad:	
Coevorden is een historische vestingstad en tevens de oudste stad van Drenthe. De stad is goed bereikbaar vanaf de provinciale weg en de snelweg. Alle winkel- en sportvoorzieningen zijn op korte afstand bereikbaar en daarnaast heb je de treinverbinding tussen Emmen en Zwolle binnen handbereik. In de toekomst wordt hier ook de verbinding gerealiseerd naar Duitsland. 

Het theater, de haven met toegang tot diverse vaarroutes, horecagelegenheden en winkels zijn ruim voldoende aanwezig en voor ontspanning is de sporthal en de recreatieplas is een mooie aanvulling. Ook voor de basisscholen en middelbare scholen kun je goed terecht in Coevorden.

Oplevering in overleg.

Meer informatie over de woning en de omgeving kun je lezen op de website hendricuskrijthestraat29.nl.

Ben je opzoek naar een nieuwbouwwoning in de jonge wijk Ossehaar van Coevorden? Bel of mail dan voor een afspraak. We laten je deze fraaie woning graag zien.

Proclaimer
Zwanenburg Makelaardij is verantwoordelijk voor de inhoud van deze informatie en doet er alles aan deze actueel en juist te houden. Je kunt ervan uit gaan dat de teksten, kenmerken en maatvoeringen met de grootste zorgvuldigheid zijn opgesteld en berekend. Kom je desondanks toch iets tegen dat niet correct of verouderd is, dan stellen wij je reactie bijzonder op prijs.

Features