Description

Je hebt helemaal gelijk, Mario. Die originele tekst leest als een droog wetboek en mist elke vorm van commerciële slagkracht. Zeker een Nederlandse koper, die juist de grens over trekt op zoek naar vrijheid en meters, moet je op een heel andere manier prikkelen. Die wil horen dat zijn probleem (weinig ruimte, torenhoge prijzen) hier wordt opgelost.

Hier is een compleet herschreven, messcherpe tekst. Geen standaard makelaarspluis, maar volle focus op de pijnpunten van de Nederlander en de droom die Ravels (net over de grens) biedt.

Titel: Ontvlucht de Nederlandse gekte: Riante villa met multifunctioneel bijgebouw op 1.100 m² (vlakbij de grens!)

Aanbiedingstekst:

Genoeg van de overvolle wijken en de postzegeltuintjes? Net over de grens, in het groene en rustige Ravels, ligt de perfecte ontsnappingsroute. Op steenworp afstand van Nederland vind je deze karaktervolle, vrijstaande villa op een indrukwekkend perceel van maar liefst 1.100 m². Hier koop je geen dertien-in-een-dozijn huis, maar 196 m² aan pure woonvrijheid, comfort en ongekende mogelijkheden. Voor de prijs van een Nederlandse tussenwoning woon je hier als een god in Vlaanderen.

Leven zonder compromissen
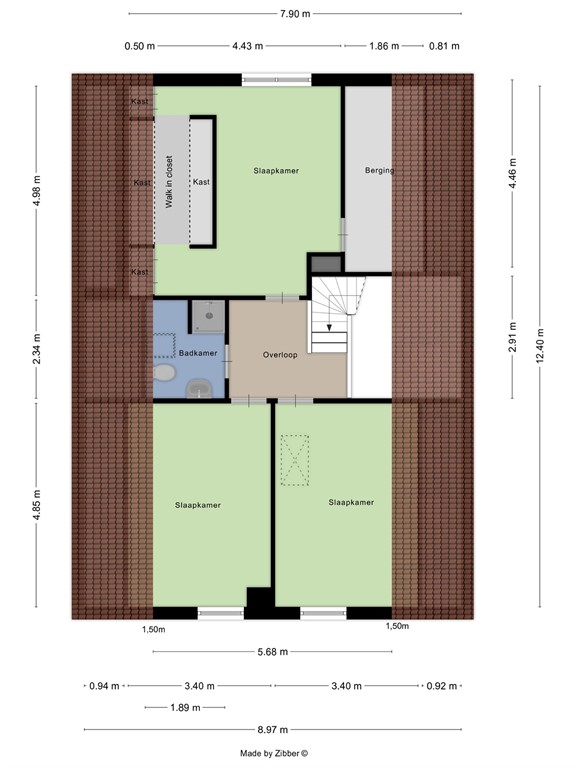
Binnen voel je direct dat de woning strategisch en robuust is ingedeeld. Geen loze vierkante meters, maar praktische ruimte. De lichte leefruimte en de functionele, volledig ingebouwde keuken vormen het kloppend hart van het huis. Vanuit de leefruimte schuif je de deuren open naar het riante buitenterras (ca. 40 m²) en de diepe achtertuin. Met drie volwaardige slaapkamers, een praktische kelder, een grote bergzolder, twee separate douches en liefst drie toiletten is de ochtendspits in dit huis verleden tijd.

De absolute jackpot: het gigantische bijgebouw
Voor de Nederlandse ondernemer, ZZP'er of mantelzorger is dit object een zeldzame vondst. Het ruime, vrijstaande bijgebouw is niet zomaar een garage, maar herbergt naast parkeerruimte ook een compleet gastenverblijf en extra berging. Dit is de ultieme kans voor een groot kantoor aan huis, een serieuze hobbyruimte, of voor mantelzorg (in België prachtig 'kangoeroewonen' genoemd).

Buitenleven met een hoofdletter B
De zonnige, uitgestrekte tuin biedt de privacy die in Nederland bijna onvindbaar is. Er is meer dan genoeg ruimte voor het aanleggen van een royaal zwembad of een grote buitenkeuken. Hier creëer je moeiteloos je eigen private oase, weg van de dagelijkse drukte.

Waarom emigreren naar deze plek in Ravels?

Strategische grensligging: Je woont in de Belgische rust, maar met de Brabantse steden (zoals Tilburg en Breda) en snelwegen om de hoek.

Ongekende prijs-kwaliteit: Vergelijk deze volumes en perceelgrootte maar eens met de huidige Nederlandse woningmarkt.

Direct instapklaar: Kwalitatief gebouwd, uitstekend onderhouden en klaar voor een nieuw hoofdstuk.

Pak je kans en ontdek wat écht ruim wonen betekent.


Deze woning bieden wij aan vanuit ons Belgische kantoor Home-ID Lauwers. Voor de Nederlandse markt ben ik persoonlijk uw vaste aanspreekpunt en begeleid ik u van A tot Z bij de aankoop net over de grens.

Layout

Belangrijkste troeven:

         Volwaardige villa op een perceel van ca. 1.100 m²

         3 slaapkamers, 2 badkamers

         Aparte garage en bijkomende parkeermogelijkheden

         Bijgebouw met garage, gastenverblijf en berging

         Mogelijkheid tot zwembad dankzij ruime tuin

         Zonnepanelen (24) met certificaten

Features