Description

Heb jij altijd al gedroomd van je eigen salon of kantoor aan huis en een heerlijke tuin? Kijk en lees dan snel verder. Deze leuke twee-onder-een-kap heeft een grote, zonnige tuin op het zuidwesten en een bijgebouw met heel veel opties. De huidige eigenaresse had hier haar kapsalon, maar het is natuurlijk ook geschikt voor een kantoorruimte, of een ander type salon. Of maak jij hier liever een eigen atelier of een chill-ruimte voor de kids of jezelf? 
Door de drie slaapkamers is er ook in huis voldoende ruimte.

Het huis ligt op loopafstand van de winkels basisscholen en de gezondheidsvoorzieningen in Dinteloord. Benieuwd of het huis en de plek jouw wensen afvinken.? We leiden je graag rond.

Layout

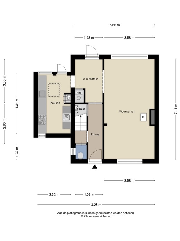
Entree in hal met trapkast waar ook de meterkast zich bevindt (12 groepen, 3 aardlekschakelaars). Het toilet bevindt zich een treetje hoger dan de hal en heeft een wandcloset.  Via  een mooie deur kom je in de woonkamer.  Het eerste deel heeft een waskast met de aansluitingen voor de wasmachine en droger: handig als je je was buiten wil drogen.  Via een boog kom je in de het tweede deel dat door de grote ramen heerlijk licht is. Een houtkachel zorgt voor extra sfeer en warmte. 

Vanuit de woonkamer kom je in de keuken. Deze is geplaatst in modern en greep-loos en voorzien van een composiet blad, een gasfornuis,  afzuigkap, de gootsteen en de vaatwasser. Voor het raam zit een klein barretje. Ook is er een wandopstelling met hout-look frontjes en hier vind je een koelkast, een vriezer, een combi-oven en extra bergruimte. In de keuken vind je ook een kast met de CV ketel (Remeha 2022).

First floor

Overloop met toegang tot drie slaapkamers en de badkamer ook vind je hier het toegangsluik voor de vlizotrap naar zolder. De grootste slaapkamer ligt aan de achterzijde. Deze is ongeveer 13 m² en heeft een dakkapel en een vaste kast. 
De tweede slaapkamer ligt aan de voorzijde van het huis. Ook deze heeft een dakkapel en een vaste kledingkast en is ongeveer 8,5 m². 
De derde slaapkamer is de kleinste, maar nog steeds goed om te gebruiken als babykamer, kantoor, of inloopkast. Net als beneden, zijn ook op deze verdieping alle kozijnen van kunststof. Je kan ze draaien en kantelen en ze zijn voorzien van horretjes. 

De badkamer is klein maar fijn, zeker voor de bad liefhebbers. Hij is namelijk efficiënt ingericht met een ligbad met een douche erin en een wastafel meubel.

De airco (2020) op de overloop  zorgt ervoor dat je de hele verdieping kan verwarmen of koelen.

Second floor

De tweede verdieping is een bergzolder. Handig voor het opbergen van koffers, kerstspullen en nog veel meer!

Garden

Last but not least komen we in de tuin. Op de foto zie je deze bedekt onder een dikke laag sneeuw, maar natuurlijk ben je ook benieuwd wat eronder ligt. De tuin is leuk aangelegd met sierbestrating, plantenbakken en een pergola. De tuin is maar liefst 290 m² en ligt op het Zuidwesten. Daarmee is hij heerlijk zonnig. 
Achter in de tuin vind je het grote bijgebouw. Het eerste deel is een berging met betonvloer en houten wanden, die bestaat uit verschillende compartimenten en een bergzolder.  In tweede deel is een kapsalon gecreëerd. Klanten hoeven niet via het huis, maar kunnen via de brandgang achter het huis de ruimte bereiken. 
Het wordt verwarmd of gekoeld via een airco uit 2020. Qua inrichting vind je er een barretje met een wastafelmeubel en twee treetjes lager de ruimte om te knippen en haren te wassen. Ook is er een eigen toiletruimte met een staand toilet en een fonteintje.  De ruimte is voorzien van dubbelglas en muurisolatie. Ga jij hier ook aan de slag om je eigen kapsalon te beginnen of heb je andere plannen met deze ruimte?
De mogelijkheden zijn leeg legio. Denk aan een bedrijf aan huis, een  gastenverblijf of misschien een hobbyruimte of een eigen kroeg? We horen graag wat jouw plannen zijn!

Details

Voor dit huis kan je een starterlening  krijgen via de Gemeente Steenbergen. Vraag je tussenpersoon naar de mogelijkheden!

Features