Description

*** Vanwege de grote belangstelling in dit huis, zullen nieuwe aanvragen voor bezichtigingen op een reservelijst geplaatst worden.***

Welkom in deze leuke en gezellige tussenwoning, gelegen in een jonge en fijne woonwijk in Dinteloord. 
Met een woonoppervlakte van 75 m² en een perceel van 86 m² is dit een ideaal huis voor starters of jonge stellen die comfortabel willen wonen zonder gedoe. De zonnige achtertuin op het oosten van circa 35 m² is perfect voor een kop koffie in de ochtend of een borrel na werk. 
Met zonnepanelen, airconditioning én energielabel A, is het huis klaar voor de toekomst.

Layout

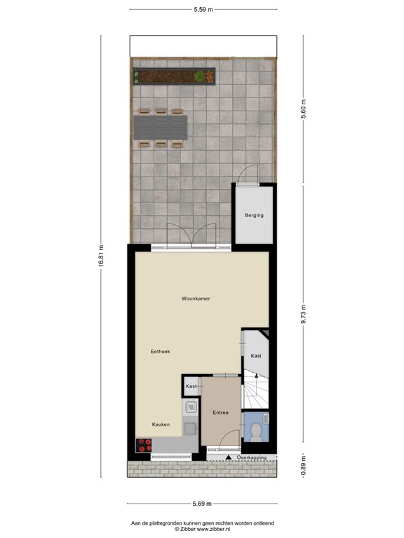
Via de hal kom je binnen in het huis, met hier de meterkast, de trapopgang naar de eerste verdieping en toegang tot de toiletruimte. Vanuit de hal stap je door naar de woonkamer.

De woonkamer is aan de achterzijde van het huis en staat in direct contact met de tuin. Een fijne, lichte plek waar je na een lange dag lekker kunt neerploffen op de bank of vrienden ontvangt voor een gezellige avond. De grote praktische trapkast in de kamer geeft lekker veel bergruimte voor bijvoorbeeld jouw voorraad of een stofzuiger of strijkplank. Meestal geen sierraden voor de woonkamer, dus lekker uit het zicht ;-)

Aan de voorkant - de straatkant - is de keuken. Deze is in 2020 vernieuwd en uitgevoerd in een praktische hoekopstelling. De keuken is compleet uitgerust met een vaatwasser, inductiekookplaat, afzuigkap en koelkast: alles wat je nodig hebt om direct aan de slag te kunnen.

First floor

Op de eerste verdieping is overloop, net als de slaapkamers afgewerkt met een mooie lichte vinylvloer die zorgt voor een frisse en moderne uitstraling.

De hoofdslaapkamer is ruim opgezet en biedt meer dan genoeg plek voor een groot bed én een royale kledingkast. De wanden zijn strak afgewerkt met stuc- en behangwerk en het plafond is netjes gespoten. Dankzij de rolluiken slaap je hier heerlijk donker en koel.

De badkamer is volledig betegeld en praktisch ingericht met een staand toilet, wastafelmeubel en een aansluiting voor de wasmachine. Alles wat je nodig hebt, compact en functioneel.

Aan de voorkant van het huis is de tweede slaapkamer, voorzien van een dakkapel die zorgt voor extra ruimte en licht. Ook hier zijn rolluiken aanwezig.

Daarnaast is er een verrassend ruime bergkast met stopcontact—ideaal als extra opslag, maar ook perfect geschikt voor bijvoorbeeld een extra koelkast of vriezer.

Second floor

De tweede verdieping is bereikbaar via een vlizotrap en doet momenteel dienst als ruime bergzolder. Dankzij de stahoogte en de nette afwerking is dit een verrassend praktische ruimte voor opslag, hobby’s of seizoensspullen.

Daarnaast biedt deze verdieping uitstekende mogelijkheden voor de toekomst: door het vervangen van de vlizotrap door een vaste trap kan hier relatief eenvoudig een extra slaapkamer, werkruimte of logeerkamer worden gerealiseerd. Ideaal voor wie vooruit wil denken of extra woonruimte zoekt.

Garden

De verzorgde achtertuin is netjes aangelegd met sierbestrating en een vaste plantenbak, wat zorgt voor een strak maar toch groen geheel. Dankzij de ligging op het oosten is dit een heerlijke plek om de dag te beginnen met een kop koffie in de zon.

De tuin beschikt over een poort naar het achterpad en een praktische houten berging, ideaal voor fietsen, tuinmeubels en gereedschap.

Waarom dit huis?
* Moderne tussenwoning (2006) in een jonge woonwijk
* 75 m² woonoppervlakte op een perceel van 86 m²
* Energielabel A, voorzien van zonnepanelen en airconditioning
* Keuken vernieuwd in 2020 met complete inbouwapparatuur
* Lichte woonkamer aan de tuinzijde
* 2 slaapkamers + mogelijkheid voor een 3e slaapkamer op zolder
* Ruime bergzolder met stahoogte
* Tuin op het oosten met berging en achterom
* Instapklaar en toekomstgericht wonen in Dinteloord

Wordt dit jouw nieuwe thuis? Neem dan contact met ons op om een bezichtiging af te spreken!

Features