Description

In de gewilde woonwijk de "Goese polder" bieden wij deze fijne eengezinswoning aan. Prettig wonen zult u in deze kindvriendelijke wijk met basisscholen en winkelcentrum "De Spinne" op loopafstand. Een ideale plek voor gezinnen die op zoek zijn naar rust, ruimte en speelgelegenheid in de buurt. U loopt van hieruit zo het groen in, de oude zeedijk op, om lekker even een frisse neus te halen!

De woning is gebouwd in 1977, beschikt over energielabel B en is gelegen aan een rustige straat, zonder directe inkijk aan de voor- of achterzijde.

Layout

Via de entree komt u in de hal met toegang tot de woonkamer. De lichte woonkamer heeft een prettig zicht op de zonnige achtertuin. Doordat er geen directe bebouwing is achter de woning, ervaart u het zicht op de tuin, met het groen daarachter, als extra ruimtelijk. De kamer is voorzien van een airco. Aan de voorzijde van het huis bevindt zich de gesloten keuken. Deze is voorzien van diverse inbouwapparatuur. Fijn is dat er geen directe inkijk is vanuit uw keukenraam.

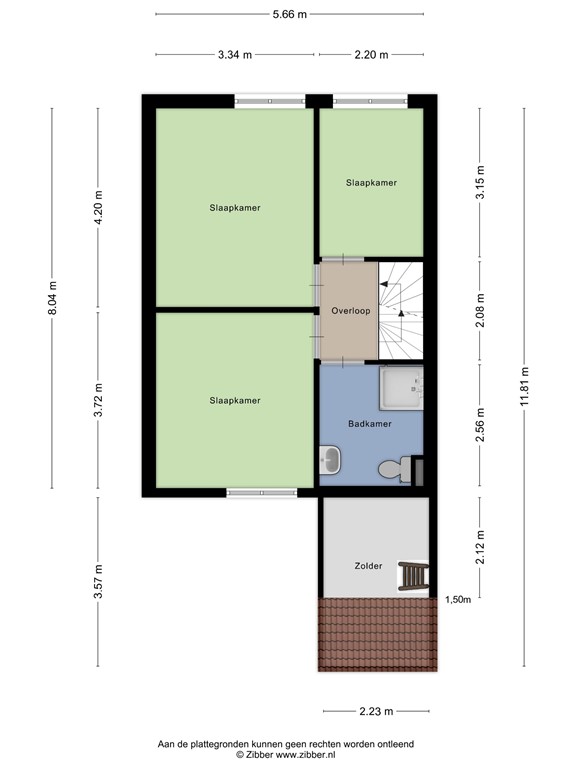
First floor

Op de eerste verdieping vindt u drie slaapkamers en de badkamer.

Second floor

De vaste trap brengt u naar de tweede verdieping, waar een overloop met cv- en mv-installatie en een vierde slaapkamer aanwezig zijn. De slaapkamer heeft een kunststof Velux dakraam.

Garden

Tegenover de voordeur is een berging, waar ruimte is voor de fietsen en andere spullen. Onder het schuine dak is nog meer bergruimte. Aan de voorzijde is aan de overkant volop parkeergelegenheid.

De achtertuin is gelegen op het zuiden en biedt veel privacy. Via de tuin heeft u toegang tot een groot veld met speeltoestellen, een heerlijke plek voor kinderen. Het achterste gedeelte van de tuin, vanaf de houten berging tot de achterzijde, wordt van de gemeente gehuurd. Als u de tuinpoort uitgaat bent u direct op een groot veld met diverse speeltoestellen.

Details

* Bouwjaar 1977

* Energielabel B

* Airco aanwezig op de begane grond

* 4 slaapkamers

* Tuin op het zuiden

* Er is een rolluik voor het keukenraam en een zonnescherm aan de achterzijde van de woning

* Vrij uitzicht aan zowel voor- als achterzijde

Een ideale woning voor wie op zoek is naar een praktische gezinswoning met fijne buitenruimte en een kindvriendelijke ligging aan de rand van de wijk!

Anthonise Makelaars werkt met biedingsplatform Eerlijk Bieden. Elke potentieel koper krijgt een inloglink, waar na te zijn ingelogd inzage is in de dataroom, waar alle relevante informatie van dit object te vinden is. Tevens vindt u daar een biedingsformulier, waarmee u uw bieding kunt uitbrengen. Als er meerdere gegadigden zijn wordt er een sluitingsdatum toegekend en krijgt iedere geïnteresseerde dezelfde kans om een bieding uit te brengen. Als er een koper is toegewezen krijgt u als bieder inzicht over hoe het biedingsproces is verlopen.

Als uw denkt dat deze woning wel eens iets voor u zou kunnen zijn, dan nodigen wij u graag uit om te komen kijken. Klikt u op de bezichtiging aanvraagbutton waar u dit object heeft gevonden, vul uw gegevens in en wij zullen snel contact met u opnemen! Een e-mail sturen of telefonisch contact opnemen kan natuurlijk ook!

Deze presentatie hebben wij met zorg samengesteld, doch kunt u hieraan geen enkel recht ontlenen.

Features