Description

Aan de Dr. A. Vondelingstraat 9 staat deze verrassend complete tussenwoning uit 1991 met een woonoppervlakte van circa 97 m² en een perceel van 138 m² eigen grond. De woning is recent grondig gemoderniseerd en beschikt over vier slaapkamers, een nieuwe keuken en badkamer (2025), gestucte wanden, pvc-visgraatvloeren op alle verdiepingen en een nieuwe cv-ketel (Intergas, 2025). Daarnaast is de woning voorzien van 15 zonnepanelen, dak-, vloer- en gevelisolatie, waardoor de energielasten gunstig zijn (huidig energielabel C, afgegeven vóór de verduurzaming). De achtertuin is zonnig gelegen op het westen en biedt volop privacy. Een instapklare woning waar aan alles is gedacht.

Wonen in Gorinchem – comfortabel en centraal
De woning ligt in een rustige, kindvriendelijke woonwijk aan de oostzijde van Gorinchem. In de directe omgeving vind je basisscholen, speelplekken en sportverenigingen, terwijl het centrum, winkelvoorzieningen en het station binnen enkele minuten bereikbaar zijn. De ligging nabij de A15 en A27 zorgt bovendien voor een uitstekende verbinding richting Utrecht, Breda en Rotterdam. Ook de natuur is dichtbij – met wandel- en fietsroutes langs de Merwede en het groene recreatiegebied De Banne. Hier woon je rustig, centraal en met alles wat je nodig hebt binnen handbereik.

Kenmerken:
- Bouwjaar 1991
- Woonoppervlakte ca. 97 m²
- Perceeloppervlakte 138 m² eigen grond
- Volledig instapklaar, gemoderniseerd in 2025
- Keuken, badkamer en toilet vernieuwd in 2025
- Gestucte wanden en pvc-visgraatvloer op alle verdiepingen
- Vier slaapkamers
- Nieuwe cv-ketel (Intergas, 2025)
- 15 zonnepanelen, dak-, vloer- en gevelisolatie
- Achtertuin op het westen met veel zon
- Vrijstaande berging met achterom
- Gelegen in een kindvriendelijke wijk nabij scholen en winkels
- Projectnotaris: MAES notarissen Vlaardingen

Indeling
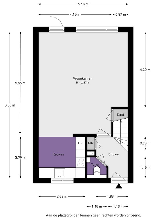
Begane grond
Entree met hal, meterkast, vernieuwd toilet met fonteintje en trapopgang naar de eerste verdieping. De woonkamer is sfeervol en licht, met glad gestucte wanden en een moderne pvc-visgraatvloer die naadloos overloopt in de keuken. De keuken in L-opstelling (2025) bevindt zich aan de voorzijde en is uitgerust met diverse inbouwapparatuur: koel-vriescombinatie met oven, inductiekookplaat, afzuigkap, vaatwasser en spoelbak. Via de loopdeur in de woonkamer stap je de zonnige achtertuin in.

Eerste verdieping
Overloop met toegang tot drie slaapkamers en de recent vernieuwde badkamer (2025), uitgevoerd in moderne stijl met douche, wastafelmeubel en tweede toilet. Ook op deze verdieping zijn de vloeren voorzien van pvc-visgraat en de wanden strak gestuct. Aan de achterzijde ligt de grootste slaapkamer met daarnaast de derde slaapkamer. De badkamer en tweede slaapkamer liggen aan de voorzijde.

Tweede verdieping
Vaste trap naar de voorzolder met aansluitingen voor wasmachine en droger, en opstelling van de cv-ketel (Intergas, 2025). Aansluitend een ruime vierde slaapkamer met dakraam, eveneens met pvc-vloer en gestucte wanden – een fijne werk- of logeerkamer.

Buitenruimte
De achtertuin ligt op het westen en biedt volop zon tot in de avond. De tuin is eenvoudig aangelegd met terras en borders, en achterin bevindt zich een vrijstaande berging met elektra. Via de achterom is de tuin gemakkelijk bereikbaar. Door de ligging van de achtertuin is er veel privacy en kijk je aan de achterzijde niet direct tegen andere woningen aan.

Een moderne, energiezuinige woning waar alles al is gedaan – klaar voor een nieuwe bewoner! Plan vandaag nog een bezichtiging en ontdek het wooncomfort aan de Dr. A. Vondelingstraat 9 in Gorinchem.

Features