Description

Starters opgelet!!!!!  Wat een geweldige locatie heeft dit 3-kamer appartement -hoek appartement!!  Energiezuinig EN aan de rand van de populaire Schildersbuurt. 


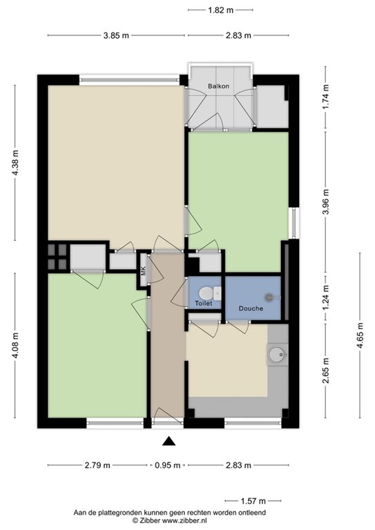
Hier woon je op loopafstand van het stadscentrum! Wandelend door de sfeervolle Schildersbuurt loop je zo naar Westerhaven, het Noorderplantsoen, de Groninger-binnenstad en de Zernike Campus. Ook de supermarkt en leuke cafeetjes zijn om de hoek te vinden en met de auto ben je binnen één minuut op de ringweg. Het groene Stadspark en het hippe Suikerunieterrein zijn op op circa 10 minuten fietsen bereikbaar. De Westerflat betreft een gemeentelijk monument en heeft een karakteristiek aanzicht. Het appartement is gelegen op de derde woonlaag, heeft drie kamers (waarvan 2 slaapkamers en 1 woonkamer, waarvan 1 slaapkamer nu in gebruik is als eet- annex studeerkamer, een heerlijk zonnig balkon op het zuidwesten en een berging in het souterrain. Ideaal voor starter(s) of ouder(s) met studerende kinderen! 

Indeling: entree/hal, zeer nette keuken voorzien van gaskookplaat, combi-oven(recent), afzuigkap, spoelbak, vaatwasser. In de keuken is tevens de nieuwe, energiezuinige warmte boiler geplaatst en is de nieuwe, moderne en verzorgde badkamer bereikbaar, welke is voorzien van wastafelmeubel en mooie inloopdouche. 

Slaapkamer 1 -nu in gebruik als eet- of studeerkamer- bevindt zich aan de voorzijde. Vanuit de gang is er directe toegang tot het toilet en de woonkamer. De lichte woonkamer, heeft voldoende lichtinval door de grote ramen en geeft toegang tot het zonnige balkon, tot de 2e slaapkamer, welke op haar beurt ook toegang geeft tot het zonnige balkon. Deze slaapkamer is ook licht, mede omdat dit hoekappartement ook aan de zijgevel een groot raam heeft.  Zowel de woon- als slaapkamer zijn voorzien van een originele inbouwkast, waarbij in deze vaste kast in de slaap- annex studeerkamer ook een wasmachine en droger is ingebouwd. 

Doordat het balkon is gelegen op het zuidwesten kun je hier tot in de late avonduren genieten van de zon. In het souterrain is een afgesloten berging aanwezig. 

Bijzonderheden: 

BIJZONDERHEDEN:
.   Goed onderhouden, modern afgewerkt en direct gereed voor bewoning;
.   Duurzaamheid & comfort;
. 	In 2023 is een warmtepompboiler van ATAG geplaatst;
.	De spouwmuren zijn geïsoleerd in 2023;
.	De ramen zijn uitgerust met HR en HR+ glas;
.	Tochtwering is in 2022 aangebracht;
.   In 2020 zijn de galerijzijde en de balkondeur (vanuit de woonkamer) voorzien van dubbelglas;
.   3-kamer hoek appartement, goede locatie, dichtbij diverse voorzieningen, scholen; 
.   Centrum van de stad, Noorderplantsoen en Zernike op zeer korte fietsafstand;
.   De keukeninrichting is voorzien van een ingebouwde gaskookplaat, afzuigkap en vaatwasser;
.   Gestucte wanden en gehele woning voorzien van een laminaatvloer.
.   Verwarming en warm water d.m.v. een cv-combiketel, Nefit, bouwjaar 2012.
.   Actieve Vereniging van Eigenaars met een bijdrage van € 140,= p.m. (voor o.a. gemeenschappelijk onderhoud).
.   Gelegen in het gemeentelijk monument de "Westerflat"
.   Plafondhoogte 2,60 m.
.   In de omgeving is het betaald parkeren. Een eigenaar-bewoner kan een parkeervergunning aanvragen bij 
    de gemeente Groningen (ca. € 68m- p.j.).
.   Elke eigenaar van het appartementen complex is eigenaar van de voor- en achtergelegen tuin. 

Kortom: een sfeervol 3-kamer hoek-appartement met karakter, zo te betrekken en welke is voorbereid op comfortabel + duurzaam wonen. Ideaal voor wie op zoek is naar een combinatie van stadsleven, historie én hedendaags gemak.

Nieuwsgierig geworden? Bel ons voor het maken van een bezichtiging (0521-591159)

Features