Description

Tussenwoning met garage, energielabel A en mogelijkheid tot 4 slaapkamers

Aan de Bloemenstraat 40 in Heerlen staat deze instapklare tussenwoning met garage. Een huis waar comfort, duurzaamheid en praktisch wonen samenkomen. Dankzij het energielabel A, 16 zonnepanelen, twee airco’s (koelen én verwarmen) en volledig kunststof kozijnen met dubbel glas geniet je hier van een energiezuinige en aangename leefomgeving.
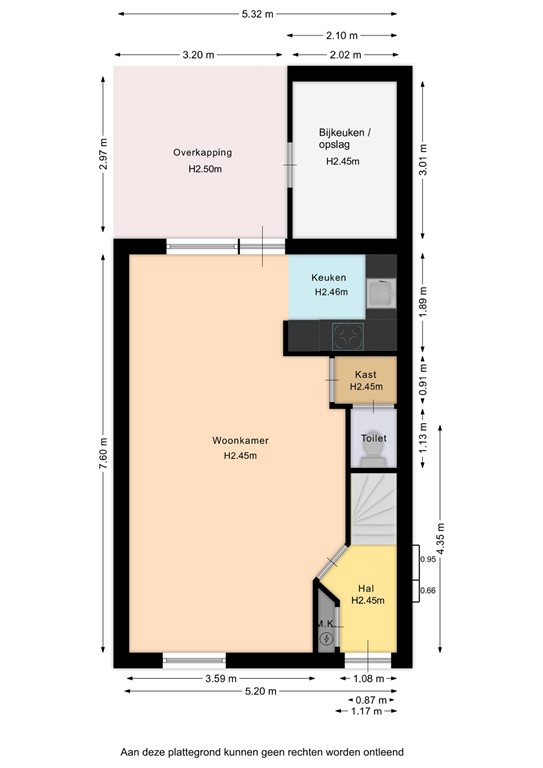
De woning heeft een praktische indeling: op de begane grond vind je een lichte doorzonwoonkamer met toegang tot een overdekt terras, een open keuken en een toilet. De eerste verdieping telt drie slaapkamers en een moderne badkamer (2021). De tweede verdieping is momenteel ingericht met bergruimte, witgoedaansluitingen en de cv-installatie, maar kan eenvoudig worden omgevormd tot vierde slaapkamer of een ruime werkkamer. De tuin is speels aangelegd met meerdere terrassen en een eigen achterom. Als kers op de taart beschikt de woning over een aparte garage en oprit.
De ligging is rustig, in een nette woonstraat, met alle dagelijkse voorzieningen, scholen en sportfaciliteiten op korte afstand. Ook het centrum van Heerlen en diverse uitvalswegen zijn snel bereikbaar.

Layout

Bij aankomst valt direct de verzorgde voortuin op. Via de ontvangsthal met laminaatvloer, garderobe, meterkast en trapopgang, loop je de lichte doorzonwoonkamer in. Grote ramen zorgen voor veel daglicht, en de aanwezige airco maakt het hier in zowel zomer als winter comfortabel. Vanuit de woonkamer is er toegang tot het overdekte terras in de achtertuin.
De open keuken in hoekopstelling met losse kast is voorzien van moderne apparatuur: een inductiekookplaat, afzuigkap, combi-oven, koelkast en vaatwasser. Achter de woonkamer bevindt zich een tussenportaal met toegang tot het toilet.

First floor

De overloop biedt toegang tot drie slaapkamers, de badkamer en trapopgang naar de tweede verdieping. Alle slaapkamers zijn voorzien van een laminaatvloer en veel lichtinval. De slaapkamer aan de voorzijde beschikt over een rolluik, terwijl de master bedroom aan de achterzijde is uitgerust met een eigen airco.
De badkamer (2021) is modern en compleet: geheel betegeld, met een zwevend badkamermeubel met wasbak en spiegel, een toilet en een inloopdouche met glazen wand.

Second floor

Via een vaste trap bereik je de zolderverdieping met tapijt. Hier bevinden zich de aansluitingen voor witgoed, de cv-installatie en extra bergruimte achter schuifpanelen. Deze ruimte biedt volop mogelijkheden om in te richten als vierde slaapkamer, werkkamer of hobbyruimte.

Garden

De achtertuin is verrassend speels ingedeeld met meerdere terrassen. Direct achter het huis is een overkapt terras, perfect voor lange zomeravonden. Via een trapje kom je bij een tweede terras, omringd door borders met veel groen. De tuin heeft bovendien een eigen achterom.
Bijzonder voor een tussenwoning: deze beschikt over een aparte garage, ideaal voor het parkeren van je auto of als extra opslagruimte.

Details

•	Energielabel A
•	16 zonnepanelen
•	Twee airco’s (koelen en verwarmen)
•	Volledig kunststof kozijnen met dubbel glas
•	Moderne badkamer (2021)
•	Tweede verdieping met mogelijkheid voor vierde slaapkamer of werkkamer
•	Garage met oprit aanwezig
•	Rustige ligging, nabij voorzieningen
•	Huurovereenkomst cv-installatie dient mee overgenomen te worden €29.09 p/mnd


*** Opgegeven tuinmaten zijn circa maten ***

Features