| Price | €685,000 |
| Type of residence | House, single-family house, detached house, dike house |
| Plot size | 426 m² |
| Liveable area | 225 m² |
| Acceptance | By consultation |
Een parel aan de dijk - Wonen in een dijkhuis met charme Dit bijzondere dijkhuis, ooit een bakkerij en levensmiddelenwinkel, ademt sfeer en historie. Je woont hier in buurtschap Benedeneind; in een rustige en landelijke woonomgeving waar karakteristieke dijkhuizen en markante woonboerderijen de sfeer bepalen. Door de ligging aan de rand van het dorp ben je slechts enkele voetstappen verwijderd van het buitengebied, waar je vanaf de Waaldijk eindeloos kunt genieten van prachtige vergezichten over de rivier en de uiterwaarden. Binnen wacht een verrassend ruime en dynamisch ingedeelde woning met vele gebruiksmogelijkheden. Dankzij de vijftien zonnepanelen woon je hier bovendien energiezuinig. De tuin met royale veranda en speelse tuinaanleg vormt een heerlijk verlengstuk van je huis. Herwijnen heeft een ruim voorzieningenniveau en is gunstig gelegen ten opzichte van snelwegen A2, A15 en A27.
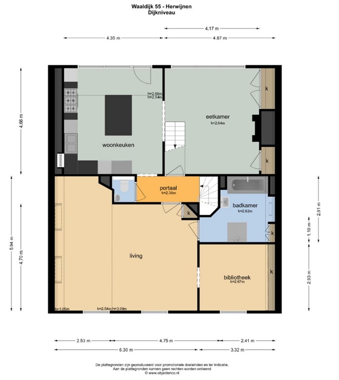
INDELING DIJKNIVEAU - niveau Waaldijk Via de voordeur stap je binnen in de woonkeuken; het culinaire hart van dit dijkhuis. Hier komen koken, samenzijn en genieten moeiteloos samen. De L-vormige keukenopstelling en het centrale werkeiland hebben een composiet werkblad en bieden verrassend veel laden en kastruimten. In 2024 kreeg deze keuken een upgrade met nieuwe apparatuur, waardoor deze klaar is voor de toekomst. Blikvanger is zonder twijfel het brede fornuis van “Stoves” – compleet met vijfpits inductiekookplaat, drie ovens en een warmhoudlade. Daarnaast beschik je over een afzuigschouw, combimagnetron en een vaatwasmachine. Het eiland biedt veel werkruimte en nodigt uit om gezellig aan te schuiven. Extra pluspunt: de kastenfronten zijn eenvoudig te overschilderen, zodat je de keuken helemaal naar eigen smaak kunt personaliseren. De royale raampartij aan de dijkzijde vult de ruimte met daglicht. De eetkamer staat in dynamische open verbinding met de woonkeuken en vormt zo een uitnodigende plek voor lange maaltijden en gezellig samenzijn. De elegante houtwerk schouw met aansluiting voor een kachel trekt direct de aandacht en wordt geflankeerd door servieskasten met authentieke paneeldeuren. De royale raampartij brengt volop daglicht binnen en geeft uitzicht op de dijk, waar het smeedijzeren hekwerk met zijn vogelhuisjes levendig bezocht wordt door diverse vogels. De raampartijen van de woonkeuken en eetkamer zijn uitgevoerd met elektrische markiezen, zodat je schaduw kunt creëren. Vervolgens bereiken we het tussenportaal, waaraan de woonkeuken, eetkamer, toiletruimte, living en de trap naar het onderhuis grenzen. De toiletruimte is uitgevoerd met een wandcloset en een fontein. De royale living ademt sfeer. De eiken vloerdelen, de zichtbare balken van de dakconstructie en het authentieke plafond met latverdeling zijn elementen die nooit gaan vervelen. De roederamen in de gevel en de dakvensters zijn voorzien van shutters, wat een gevoel van luxe creëert en je kunt spelen met het licht. Dankzij de verhoogde positie ten opzichte van de straat geniet je hier van een uniek uitzicht over de Rij-en Uitweg met haar statige herenboerderijen. De aangrenzende bibliotheek is een intiem verlengstuk van de living, dat zich perfect leent als bijvoorbeeld leeshoek of werkruimte. De ingebouwde maatwerk boekenkast is inclusief en de cd- en dvd-rekken gaan mee. Ook hier is het roederaam uitgevoerd met shutters. Vanuit de living bereik je een royale badkamer, die is ingericht met een ligbad, een douchecabine met regendouche en een wastafel met spiegel. Praktische opbergruimte is aanwezig in de vorm van een vaste kast, een charmant wandkastje en sierlijke planchetten. De radiator verzorgt de verwarming en het Velux-venster zorgt voor daglicht en ventilatie.
Vanuit de eetkamer leidt een vaste trap naar de royale bovenverdieping, die in 1996 aan het dijkhuis werd toegevoegd. De volledige kap is voorzien van isolatie en de vier Velux-vensters zorgen voor een overvloed aan daglicht. Dankzij de hoogte van de kap en het royale vloeroppervlak biedt deze verdieping volop mogelijkheden, bijvoorbeeld het creëren van extra kamers.
ONDERHUIS - niveau Rij- en Uitweg Via de trapopgang dalen we af naar de centrale hal van het onderhuis. Graag wijzen wij je op het deurtje in de trapopgang, dat toegang biedt tot een verrassend ruime bergruimte van circa 25 m². Beneden bereiken we de centrale hal van een woonlaag, die bruist van de mogelijkheden. Aan deze hal grenzen een ruime bijkeuken, twee kantoor-/slaapkamers en een prachtige stenen trap naar het wat hoger gelegen slaapgedeelte. De royale bijkeuken heeft een entree aan de Rij- en Uitweg en is zeer compleet uitgerust. De moderne toiletruimte voorziet in een douchetoilet, verwarming en ontluchtingsraam. De royale keukenopstelling heeft een industriële look en bestaat uit een werkopstelling met spoelbak, kastruimten en een uitsparing voor de wasmachine. Aan de tegenoverliggende wand staat een bijpassende hoge kastenwand met veel bergruimte. De deur in de zijgevel biedt toegang tot de besloten plaats aan de rechterzijde van het huis, waar de fietsenberging is gesitueerd. Vanuit de bijkeuken daal je af in de royale proviandkelder met schappen langs de wand, uitstortgootsteen en ontluchtingsvenster. De elektrische dompelpomp zorgt er bij hevige regenval of hoog water voor dat er geen water in de kelder komt te staan. De twee kantoor-/slaapkamers bieden ruimte en sfeer. Grote roederamen verzorgen een heldere lichtinval en bieden een charmant uitzicht op de Rij- en Uitweg. Kantoor-/slaapkamer 1 is efficiënt ingericht met een U-vormige bureauopstelling, compleet met ladenblokken en boekenplanken – direct klaar voor gebruik. Kantoor-/slaapkamer 2 kenmerkt zich door de originele schouw en de antieke tegeltjes, die een verhaal vertellen van vervlogen tijden. In deze kamer vind je bovendien de toegang tot de veranda aan de tuinzijde. Teruggekomen in de centrale hal leidt een statige brede trap naar het hoger gelegen slaapgedeelte. Deze etage bestaat uit een centrale hal met voordeur aan de dijkzijde, waaraan de masterbedroom (met badkamer-en-suite) en de garderobekamer grenzen. De masterbedroom is groots opgezet en biedt volop ruimte voor een kingsize boxspring. Het grote roederaam in de voorgevel zorgt voor een lichte en serene sfeer. Enkele treden hoger wacht de badkamer. De authentieke Moorse betegeling in combinatie met de verfijnde Marokkaanse Zelliges creëren een oriëntaalse sfeer. Het gietijzeren ligbad op leeuwenpootjes met bijpassende staande kraan, nodigt uit tot ultiem ontspannen. Verfris jezelf aan de nostalgische duo-wastafel met brede spiegel en elegante wandlampjes in lelievorm. Het douchetoilet zorgt voor een zorgeloze hygiëne en de vaste kast biedt tenslotte praktische opbergruimte. De garderobekamer completeert het geheel; de drie kledingkasten zijn inclusief en kunnen ruimte bieden aan een flinke garderobe. Vanzelfsprekend is het gebruik als slaapkamer ook denkbaar.
Ook aan het buitenleven is veel aandacht besteed. Aan de rechterzijde van het huis ontvouwt zich een heerlijke tuin met opvallend veel privacy, die zowel vanaf de dijkzijde als aan de zijde van de Rij- en Uitweg toegankelijk is. De royale veranda vormt een heerlijk verlengstuk van het huis en heeft een robuuste Douglashouten constructie en zwart gebeitste hardhouten wanden. Hier beleef je elk seizoen in comfort – van lange zomeravonden met een glas wijn tot knusse winterdagen onder de terrasverwarmer. De afritsbare zeildoeken en de sfeervolle wandlampen zorgen ervoor dat deze plek altijd uitnodigt, ongeacht het weer. De sierbestrating van de veranda loopt naadloos door in een stuk buitenterras. De verdere tuinaanleg bestaat uit meerdere niveaus en wordt opgesierd door speelse borders. Op het niveau van de Rij- en Uitweg ligt een royaal terras, waar houten tuinschermen optimale privacy creëren en het smeedijzeren hekwerk toegang biedt tot de openbare weg. De drie tuinkasten bieden praktische opbergruimten. Dierenliefhebbers opgelet! Bij dit huis horen met Engels hekwerk omheinde dierenweides én een verharde plaats met charmant dierenverblijf, in de gedaante van een hooiberg. Ideaal voor het houden van schaapjes of dwerggeitjes. Het grasland in het verlengde van de tuin wordt gehuurd van de gemeente. Aan de linkerzijde van het huis ligt een kleine besloten plaats, waar de fietsenberging is gesitueerd. De buren van Waaldijk 53 hebben hier een recht van overpad naar de Rij- en Uitweg.
ALGEMEEN Centraal sleutelsysteem; één sleutel geeft toegang tot alle buitendeuren met driepuntsluiting en de poort op de Waaldijk. Hardhouten kozijnen. DE PLUSPUNTEN -Uniek wonen in buurtschap Benedeneind -Royale leefvertrekken met fraaie uitzichten -Flexibele indeling met veel gebruiksmogelijkheden -Bijzonder woonsfeer met veel authentieke details -Energiezuinig als gevolg van de 15 zonnepanelen -Privacy biedende tuin met veranda -Op loopafstand van de rivier en uiterwaarden -Gunstig gelegen t.o.v. snelwegen A2, A15 en A27
| Reference number | 06027 |
| Asking price | €685,000 |
| Upholstered | Not furnished |
| Furnishing | Unfurnished |
| Acceptance | By consultation |
| Last updated | 25 November 2025 |
| Type of residence | House, single-family house, detached house, dike house |
| Type of construction | Existing estate |
| Construction period | 1900 |
| Roof materials | Ceramic Tiles |
| Rooftype | Gambrel |
| Certifications | Energy performance advice |
| Isolations | HR glazing Insulated glazing Roof Wall |
| Plot size | 426 m² |
| Floor Surface | 225 m² |
| Living area | 32.52 m² |
| Kitchen area | 20.36 m² |
| Content | 886 m³ |
| Surface area other inner rooms | 18 m² |
| External surface area | 18 m² |
| Number of floors | 3 (and one basement) |
| Number of rooms | 8 (of which 5 bedrooms) |
| Number of bathrooms | 2 (and 1 separate toilet) |
| Location | Country side Near highway Near public transport Near school On a quiet street Unobstructed view |
| Type | Back yard |
| Main garden | Yes |
| Orientation | North east |
| Has a backyard entrance | Yes |
| Condition | Beautifully landscaped |
| Energy certificate | C |
| Type of boiler | Remeha Calenta Ace 40C |
| Heating source | Gas |
| Year of manufacture | 2020 |
| Combiboiler | Yes |
| Boiler ownership | Owned |
| Water heating | Central heating system Electric boiler |
| Heating | Central heating |
| Ventilation method | Natural ventilation |
| Bathroom facilities Bathroom 1 | Bath Shower Sink |
| Bathroom facilities Bathroom 2 | Bath Double sink Toilet |
| Has a flue tube | Yes |
| Has fibre optical cable | Yes |
| Garden available | Yes |
| Has an internet connection | Yes |
| Has a storage room | Yes |
| Has a skylight | Yes |
| Has solar blinds | Yes |
| Has solar panels | Yes |
| Cadastral designation | HERWIJNEN T 670 |
| Area | 160 m² |
| Range | Entire lot |
| Ownership | Full ownership |
| Cadastral designation | HERWIJNEN T 1095 |
| Area | 126 m² |
| Range | Entire lot |
| Ownership | Full ownership |
| Cadastral designation | HERWIJNEN T 1089 |
| Area | 140 m² |
| Range | Entire lot |
| Ownership | Full ownership |