| Price | €849,000 |
| Type of residence | House, single-family house, detached house |
| Plot size | 666 m² |
| Liveable area | 175 m² |
| Acceptance | By consultation |
| Status | New for sale |
Kijk en vergelijk !!
Op zoek naar een Unieke woning? Zoek dan niet verder!
Op de Frankenstraat 14 in Heumen staat deze vrijstaande en gasloze woning. Deze woning heeft alles wat u zoekt én meer….. en deze moet u zeker van binnen gezien en ervaren hebben.
Met 4 slaapkamers en een woonoppervlak van maar liefst 175 m² is dit echt een grote en multifunctionele gezinswoning waarbij wonen en werken op eenvoudige wijze te combineren zijn.
Wat dacht u van een heerlijke zitkeuken van 27m²!! Uitgebreid “tafelen” is op deze locatie dus zeer goed mogelijk .
De speelse indeling op de begane grond biedt een unieke sfeer en volop ruimte voor elk moment. Een stijlvolle werkkamer, een eigen bibliotheek, een knusse tv-kamer en een uitnodigende zithoek, allemaal samen maar toch heerlijk gescheiden voor optimaal woongenot.
Nieuwsgierig? Maak snel een afspraak met de makelaar en wie weet wordt dit uw nieuwe (t)huis!
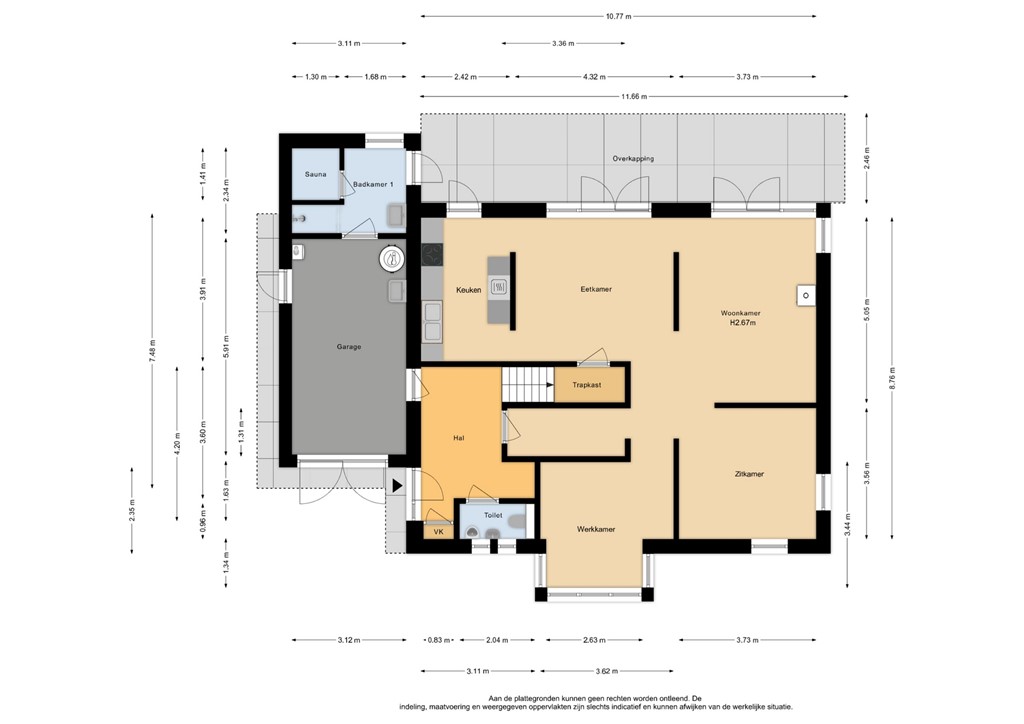
Indeling:
U komt binnen in een ruime en lichte hal die toegang biedt tot de eerste verdieping, de garage en via de bibliotheek u naar de de sfeervolle living (20 m²) leidt. Deze is functioneel en sfeervol verdeeld in een werkkamer, tv-kamer, zithoek en keuken, waardoor er volop ruimte is voor ontspanning en werk. Zowel de zitkeuken als de zithoek beschikken over openslaande terrasdeuren die leiden naar het terras en de achtertuin. De keuken is uitgerust met inbouwapparatuur, waaronder een elektrische kookplaat, recirculatie afzuigkap, koel-vriescombinatie en een vaatwasser.
Vanaf de hal is de inpandige garage gemakkelijk bereikbaar. De garage is voorzien van vloerverwarming. Daarnaast beschikt de ruimte over aansluitingen voor de wasmachine en is hier de bodem-water warmtepomp aangesloten, wat bijdraagt aan een energiezuinige woning. De garage biedt voldoende ruimte om fietsen te stallen en spullen op te bergen.
Vanuit de garage loopt u door naar de wellnessruimte, een heerlijke plek voor ultieme ontspanning. Hier vindt u een sauna en een eigen douche. Ook vanuit de achtertuin is de wellnessruimte goed bereikbaar, waardoor u gemakkelijk kunt genieten van een moment van rust, zelfs als u zich buiten bevindt.
Op de eerste verdieping 4 slaapkamers (10 m² 10 m² 10 m²en 13m²) waarvan 1 slaapkamer beschikt over een eigen douche, wastafel en inloopkast. De badkamer is voorzien van een ligbad, douche wastafelmeubel en een separaat toiletruimte op de overloop. De zolder verdieping is met een vaste trap te bereiken. Waar een ruime bergzolder over de gehele breedte van de woning loopt. Deze ruimte is ook voorzien van een leuke speel/chill ruimte voor de kinderen.
Tuin:
Brede en diepe achtertuin die is onderverdeeld in terrassen, groenborders en een heerlijk gazon. Dankzij de gunstige ligging van de tuin is er altijd wel een zonnig plekje om te genieten, maar ook schaduwrijke plekken voor wie liever wat schaduw zoekt. De tuin is bovendien uitgerust met een beregeningsinstallatie die gebruikmaakt van grondwater. Voor extra luxe en ontspanning kunt u heerlijk genieten van een Jacuzzi in uw eigen achtertuin – de perfecte plek om te ontspannen, tot rust te komen en quality time door te brengen met familie en vrienden. Deze tuin biedt volop mogelijkheden voor plezier, rust en privacy!
Aan de voorzijde van de woning ligt een onderhoudsarme voortuin en een oprit met voldoende parkeergelegenheid voor uw eigen auto’s. De achtertuin is vanaf de voorzijde van de linker en de rechterzijde van de woning te bereiken en afgesloten d.m.v. poorten.
De woning ligt aan de rand van Heumen Noord een prettige woonwijk op slechts 20 minuten auto-afstand van Nijmegen en is gelegen op een mooi kavel van maar liefst 666m².
Deze woning is uitermate geschikt voor mensen die graag comfortabel en ruim willen wonen in een prettig dorp met alle voorzieningen in de nabijheid.
Bijzonderheden:
- Unieke vrijstaande woning.
- Woonkamer, werkkamer, keuken, bibliotheek, tv-kamer gescheiden maar toch samen.
- Woning is voorzien van vloerverwarming en koeling begane grond, volledig geïsoleerd, gasloos, 14 zonnepanelen en een
2-tal oplaadpalen voor de elektrische auto.
- 4 goed bruikbare slaapkamers (resp. 10 m², 10 m² 10 m² en 13 m²!! waarvan 1 voorzien van een eigen wastafel en douche.
- Inpandig te bereiken garage met toegang naar de saunaruimte voorzien van een eigen douche.
- Kunstofkozijnen met HR glas.
- Rolluiken.
- Energielabel A.
- Bodem-water warmtepomp, kan ook actief koelen indien wenselijk en heeft geen buitenunit die onderhoud vraagt.
- Grijswatertank, water afkomstig van hemelwater dit wordt gebruikt voor doorspoelen toiletten en is aangesloten op de
buitenkranen van de woning.
- Pulspomp voor grondwater beregening van de tuin.
- Parkeergelegenheid voor meerdere auto’s op eigen terrein.
- Op korte afstand van o.a. bossen, alle denkbare voorzieningen, op-afritten A73.
Nijmegen/ziekenhuizen/universiteit op ca. 20 minuten fietsafstand !
Zeer aangenaam en comfortabel wonen in een prettige omgeving met alle voorzieningen in de nabijheid en op slechts 10
(auto) minuten afstand van Nijmegen. | Reference number | 05910 |
| Asking price | €849,000 |
| Electricity | €243 |
| Upholstered | Not furnished |
| Furnishing | Unfurnished |
| Status | New for sale |
| Acceptance | By consultation |
| Last updated | 01 February 2026 |
| Type of residence | House, single-family house, detached house |
| Type of construction | Existing estate |
| Construction period | 2007 |
| Roof materials | Tiles |
| Rooftype | Front gable |
| Isolations | Full |
| Plot size | 666 m² |
| Floor Surface | 175 m² |
| Living area | 46 m² |
| Kitchen area | 27 m² |
| Content | 785 m³ |
| Surface area other inner rooms | 31 m² |
| External surface area | 29 m² |
| Number of floors | 3 |
| Number of rooms | 7 (of which 4 bedrooms) |
| Number of bathrooms | 2 (and 1 separate toilet) |
| Location | Near public transport Near school On a quiet street Residential area |
| Type | Back yard |
| Orientation | North east |
| Has a backyard entrance | Yes |
| Condition | Normal |
| Garden 2 - Type | Front yard |
| Garden 2 - Orientation | South west |
| Garden 2 - Condition | Normal |
| Energy certificate | A |
| Number of parking spaces | 3 |
| Water heating | Geothermal |
| Heating | Geothermal Heat pump Partial Floor heating Wood stove |
| Ventilation method | Mechanical ventilation |
| Bathroom facilities Bathroom 1 | Sauna Shower Sink |
| Bathroom facilities Bathroom 2 | Bath Shower Sink Underfloorheating |
| Parking | Attached stone |
| Has a flue tube | Yes |
| Has fibre optical cable | Yes |
| Garden available | Yes |
| Has a garage | Yes |
| Has roller blinds | Yes |
| Has a sauna | Yes |
| Has solar panels | Yes |
| Has ventilation | Yes |
| Cadastral designation | Heumen I 726 |
| Area | 666 m² |
| Range | Entire lot |
| Ownership | Full ownership |