Description

In hartje centrum, met leuk uitzicht over de Groest bieden wij te koop aan dit gezellige 3-kamer appartement op de 1e verdieping met serre en balkon. Het complex beschikt over een lift en berging in de onderbouw. U wandelt hier zo naar de vele gezellige restaurants, kroegjes en terrassen terwijl natuurlijk ook alle winkels binnen handbereik liggen. Het vernieuwde marktterrein met ultramoderne bioscoop en gezellige foodhall bevindt zich op slechts 100 meter lopen. Ook het NS-station Centraal bevindt zich letterlijk om de hoek van dit appartement.

Layout

Gezamenlijke, afgesloten entree op de begane grond. Gemeenschappelijke hal met lift en trappenhuis.

First floor

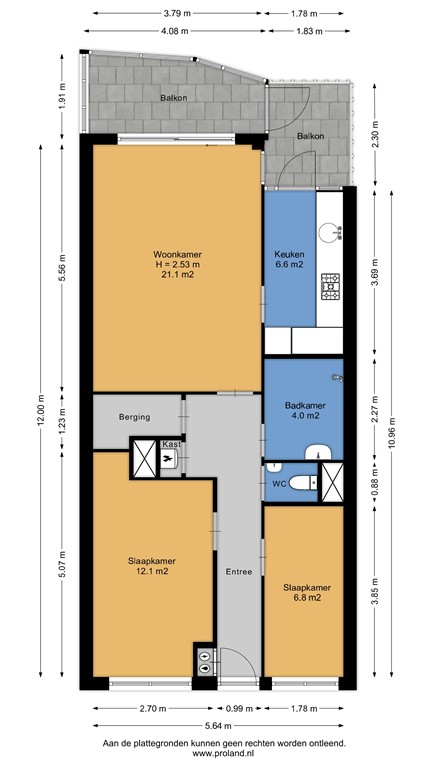
Entree met audiofoon, hal met toilet en grote bergkast met aansluiting voor wasmachine en droger. Tweede kast met opstelling van de cv-ketel (Bosch). De gezellige woon-/eetkamer heeft een doorgang naar een glazen ‘serre’ met veel lichtinval door de hoge ramen van vloer tot plafond. Hier kunt u genieten van het langslopend winkelend publiek. Via de woonkamer bereikt u de moderne keuken voorzien van diverse inbouwapparatuur (vaatwasser, gaskookplaat, afzuigkap, koel/vriescombinatie en oven). Zowel vanuit de serre als vanuit de keuken is het beschutte balkon bereikbaar. Het appartement beschikt over 2 in grootte variërende slaapkamers, beiden gelegen aan de rustige achterzijde. De badkamer is enigszins gedateerd maar is royaal van formaat en beschikt over een douche en wastafel. Het appartement is grotendeels voorzien van een nette laminaatvloer. In de onderbouw is een berging met elektra aanwezig. Gezellig en keurig onderhouden appartement op een leuke locatie nabij alle faciliteiten!

Details

* Per direct beschikbaar.
* Uitstekende centrale ligging.
* Maandelijkse VvE bijdrage € 202

Features