Description

Vanwege de grote belangstelling zijn de bezichtigingsmomenten momenteel volgepland. U kunt uw interesse kenbaar maken; wij nemen contact met u op zodra er ruimte ontstaat.

Deze tussenwoning van 114m2 met 4 slaapkamers wordt aangeboden middels een bieden vanaf prijs.

Een verrassend ruime woning gelegen midden in de buurt Boswijk biedt alles wat je nodig hebt voor comfortabel wonen. De wijk staat bekend om haar centrale ligging, groene uitstraling en kindvriendelijke opzet. Alle dagelijkse voorzieningen bevinden zich op loopafstand, waaronder het buurtwinkelcentrum met supermarkt. Ook scholen en sportfaciliteiten liggen in de directe nabijheid. Met uitstekende verbindingen naar Amsterdam, Almere en Utrecht, is dit een perfecte locatie voor gezinnen en forenzen.

Begane grond: 
Via de verzorgd aangelegde voortuin bereik je de woning. In de hal bevinden zich de meterkast, een toilet, de trapopgang naar boven en de toegang tot de woonkamer. De tuingerichte woonkamer biedt dankzij grote raampartijen en een deur direct contact met de achtertuin. Aan de voorzijde is een lichte keuken in U-opstelling geplaatst, voorzien van veel werk- en bergruimte en uitgerust met diverse inbouwapparatuur, waaronder een gaskookplaat, afzuigkap, combi-oven, koelvries-/combinatie en vaatwasser. De begane grond is geheel afgewerkt met een laminaatvloer.

Eerste verdieping: 
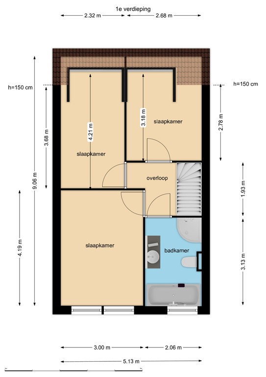
Via de vaste trap bereik je de eerste verdieping. Vanaf de overloop heb je toegang tot drie slaapkamers en de badkamer. De slaapkamers zijn van verschillend formaat, voldoende ruim en goed in te delen. Aan de achterzijde is een dakkapel geplaatst waardoor de kamers aan de achterzijde ruim en licht aanvoelen. De badkamer is volledig betegeld en voorzien van een ligbad, een aparte douchecabine, toilet en wastafel met spiegel. Er is een raam aanwezig voor ventilatie en natuurlijk licht. 

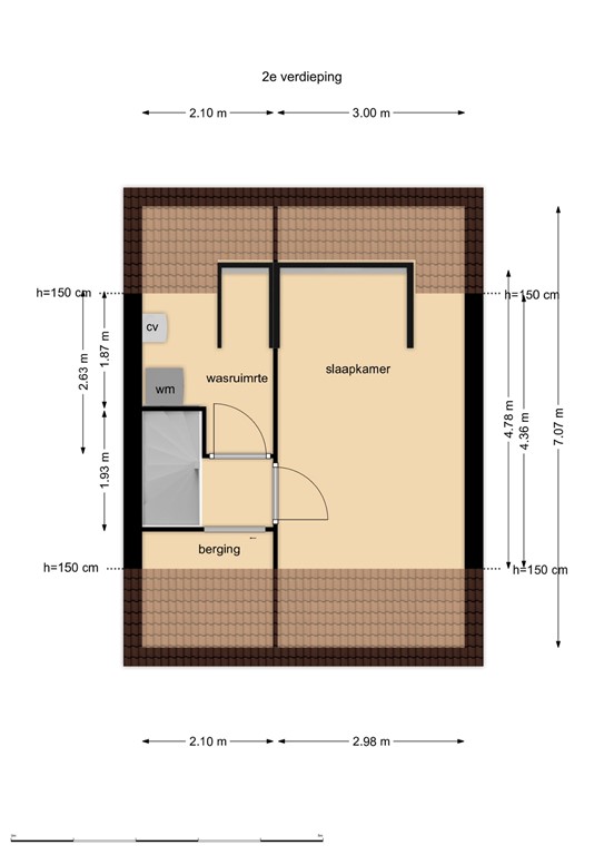
Tweede verdieping: 
Via de vaste trap bereik je de tweede verdieping. Op de overloop is een ingebouwde kast aanwezig, handig voor het opbergen van spullen. De overloop biedt toegang tot de waskamer en 4e slaapkamer. Door een dakkapel is deze ruimte enorm ruim en licht. De CV opstelling en mechanische ventilatie zijn in de wasruimte aanwezig. De gehele verdieping is voorzien van een laminaatvloer.

Tuin: 
De voortuin (westen) is verzorgd aangelegd en er is genoeg parkeergelegenheid voor de deur. De ruime achtertuin gelegen op het oosten is voorzien van bestrating en een schutting. Achterin de tuin staat een stenen berging en via de achterom is de tuin praktisch bereikbaar. 

Interesse? Neem contact op voor een bezichtiging waarbij ik graag meer vertel over de mogelijkheden die deze woning biedt!

Algemeen:
- 114m2 woonoppervlakte 
- Centrale ligging nabij scholen, openbaar vervoer en winkels 
- Perfecte woning voor starters en jonge gezinnen
- Energielabel C
- 4 slaapkamers
- Aanvaarding in overleg

Disclaimer: Alhoewel zorgvuldig samengesteld, kunnen er aan deze tekst geen rechten worden ontleend. Wij staan dan ook niet in voor de juistheid en volledigheid van de getoonde gegevens. De woning is ingemeten volgens de normen vastgelegd in de NEN 2580. Toch kunnen er altijd verschillen ontstaan tussen de opgegeven maten en de werkelijkheid. Indien de maten voor u belangrijk zijn nodigen wij u van harte uit de maten op voorhand op juistheid te controleren. Het meetrapport is beschikbaar en ter inzage.

Features