Description

Een parel in de verkoop gekomen.  In het gezellige Loosdrecht, vind je dit charmante, sfeervolle jaren ’30 woning– maar dan eentje die helemaal van deze tijd is! In 2021 is deze woning volledig  onder handen genomen. Eindelijk een woning waar sfeer én modern wooncomfort hand in hand gaan.

Deze luxe en gewilde jaren-30 twee-onder-één kap woning in Loosdrecht staat op een heerlijk ruim perceel van 470 m2  met zeer ruime achtertuin op het zuiden! De woning is volledig verbouwd en maximaal uitgebouwd en heeft inmiddels een A+ Energielabel. Door de hoogwaardige en luxe afwerking is dit een prachtige en bijzondere woning geworden. 

De woning is op loopafstand van winkels en publieke voorzieningen in Nieuw-Loosdrecht en geniet van een centrale ligging voor Hilversum, Amsterdam, Utrecht en Amersfoort. Nabij gelegen zijn het watersportgebied Oud-Loosdrecht, de Hoorneboegse Heide en bossen.

Layout

De royale entree aan de zijkant van het huis geeft toegang tot de woonkamer en wasruimte. De lichte en ruime woonkamer met erker is voorzien van een rustige werkhoek. Aan de achterkant van de woning bevindt zich de volledig nieuwe uitbouw met luxe woonkeuken. Vanuit de woonkeuken is de centrale hal te bereiken met apart toilet en doorgang naar de slaapkamer. De openslaande deuren in de woonkamer en slaapkamer bieden toegang tot de royale achtertuin met overkapping.

First floor

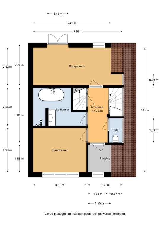
Het ruime trappenhuis en overloop geeft toegang tot drie in grootte variërende slaapkamers, toilet en badkamer met inloop douche en separaat bad. De hoofdslaapkamers beschikken over veel vaste kastruimte.

Second floor

De ruime zolderetage is volledig gerenoveerd en geïsoleerd en bestaat uit een extra slaapkamer met eigen badkamer met inloopdouche en toilet.

Details

•	Bouwjaar 1934, dus volop karakter
•	Volledig en professioneel gerenoveerd in 2021, met een hoogwaardige afwerking
•	Fantastische tuin (voortuin met oprit én een riante achtertuin) op een perceel van totaal 470 m²
•	Ruime parkeergelegenheid op eigen terrein. 
•	Energielabel A+: toekomstbestendig en lage stookkosten
•	Gelegen in een rustige, groene wijk in Loosdrecht

Features