| Price | €685,000 |
| Type of residence | House, single-family house, end house |
| Plot size | 294 m² |
| Liveable area | 214 m² |
| Acceptance | By consultation |
| Status | Sold |
Stap binnen in een wereld waar kleur, licht en ruimte samenkomen. Deze fors uitgebouwde woning met een riante keuken is uniek. Met 5 slaapkamers en 2 badkamers is dit hét perfecte gezinshuis waar iedereen zijn eigen favoriete plekje vindt. Wordt dit jouw nieuwe thuis? Je bent van harte welkom op deze toplocatie in Maassluis. De woning is gelegen op een zeer gunstige locatie in de wijk Steendijkpolder. Het winkelcentrum bevindt zich op loopafstand net als de basisscholen en de diverse sportverenigingen zoals hockey, tennis en voetbal. Voor nog meer ontspanning kun je heerlijk wandelen in het park of fietsen langs de Waterweg richting Hoek van Holland. Daarnaast is de bereikbaarheid uitstekend: de metro is binnen vijf minuten te bereiken, net als de snelweg. Direct naast de woning is een heerlijk speelterrein met kabelbaan, glijbaan, voetbalveld en zandspeelplaats.
Zoek je een woning die écht anders is dan de standaard? Welkom aan de Verfmolen 15 in Maassluis. Dankzij de forse uitbouw aan de zijkant is hier een fantastische, lichte leefkeuken ontstaan die het hart van de woning vormt. Ruimte en gemak vanaf de voordeur Bij binnenkomst ervaar je direct het praktische gemak: een hal met garderobe, toilet en een zeer complete bijkeuken. Deze bijkeuken is een luxe verlengstuk van je huishouden, voorzien van een extra keukenblok met boiler, grote koelkast, vriezer en een kamerhoge schuifwand voor al je voorraad. Wonen & de riante leefkeuken De woonkamer straalt warmte uit door de prachtige bamboe houten vloer en de sfeervolle openhaard. Vanuit de woonkamer loop je zo de geweldige zij-uitbouw in. Hier vind je de droom van iedere kookliefhebber: een kleurrijke, blauwe Bruynzeel keuken met een stijlvol granieten aanrechtblad, 6-pits gasfornuis met grote oven, vaatwasser en koelkast. De donkere plavuizen vloer in de keuken vormt een stoer en praktisch contrast. Deze uitbouw biedt bovendien alle ruimte voor een riante eettafel en een heerlijke leeshoek.
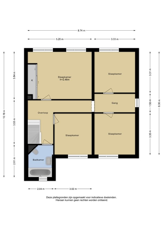
Vier slaapkamers en een lichte badkamer Op de eerste verdieping wachten vier goed bemeten slaapkamers op een nieuw gezin. Wat hier direct opvalt, is de prettige, brede overloop. Dankzij een extra raamkozijn baadt deze ruimte in het daglicht, wat een zeer ruimtelijk gevoel geeft. De badkamer is modern en tijdloos met witte wandtegels en zwarte vloertegels, uitgerust met een ligbad (waarin ook gedoucht kan worden), een tweede toilet en een wastafel.
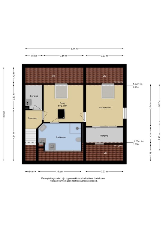
Een luxe master suite De tweede verdieping is een wereld op zich en biedt volop mogelijkheden. Via een heerlijke open ruimte met dakraam – die je perfect kunt inrichten als lichte werkplek of rustige leeshoek – bereik je de royale master bedroom. Deze kamer geniet van een prachtige lichtinval en beschikt over een grote kastenwand met een eigen inloopkast. Geheel in stijl met de badkamer beneden, biedt deze tweede badkamer het comfort van een eigen douchecabine, wastafel en een derde toilet. De witgoedaansluiting is hier slim geïntegreerd in de ruimte. Berging in overvloed Opbergruimte is er in overvloed. Op deze etage is veel berging te gebruiken achter de knieschotten. is er via een vlizotrap op de overloop nog een grote bergvliering bereikbaar.
De royale vliering is via een vlizotrap op de overloop toegankelijk en biedt volop praktische bergruimte.
Zonovergoten tuinen met privacy en parkeren op eigen terrein Hier geniet je de hele dag van het buitenleven. Het begint al bij de voortuin op het oosten (60 m²), ideaal voor een eerste kop koffie in de ochtendzon. Extra comfortabel is de eigen parkeerplaats voor de deur, waardoor je altijd gemakkelijk en dichtbij huis parkeert. De riante achtertuin op het westen (100 m²) is met zorg aangelegd en voorzien van veel vaste beplanting. Hierdoor zijn er meerdere gezellige en beschutte zitplekjes ontstaan, zodat je altijd een plekje in de zon of de schaduw vindt om heerlijk te ontspannen. De tuin beschikt uiteraard over een praktische schuur en een achterom.
Kortom: Een verrassend ruim, kleurrijk en uniek ingedeeld familiehuis op een toplocatie! -Oplevering- medio juni 2026 -Bijzonderheden- • Eigen parkeerplaats • Lichte woonkamer en royale keuken • 1ste etage 4 slaapkamers met badkamer • 2de etage slaapkamer met badkamer • Bijkeuken • Riante achtertuin -Dichtbij- • Speeltuin • Winkelcentrum Steendijkpolder (loopafstand) • Sportverenigingen, park en Waterweg • Metro en snelweg binnen ca. 5 minuten • Winkelcentrum Koningshoek In de koopovereenkomst wordt, gezien de leeftijd van de woning (ouder dan 20 jaar), standaard een ouderdomsclausule opgenomen. De verstrekte informatie is met zorg samengesteld en grotendeels gebaseerd op gegevens van derden. Aan de inhoud van deze informatie kunnen geen rechten worden ontleend.
| Reference number | 00246 |
| Asking price | €685,000 |
| Electricity | €124 |
| Gas | €125 |
| Water | €12 |
| Upholstered | Yes |
| Upholstered | Upholstered |
| Status | Sold |
| Acceptance | By consultation |
| Last updated | 10 April 2026 |
| Type of residence | House, single-family house, end house |
| Type of construction | Existing estate |
| Construction period | 1990 |
| Roof materials | Bitumen Tiles |
| Rooftype | Composite |
| Isolations | Floor HR glazing Insulated glazing Roof Wall |
| Plot size | 294 m² |
| Floor Surface | 214 m² |
| Content | 752 m³ |
| Surface area other inner rooms | 42 m² |
| External surface area storage rooms | 13 m² |
| Number of floors | 4 |
| Number of rooms | 6 (of which 5 bedrooms) |
| Number of bathrooms | 2 (and 1 separate toilet) |
| Location | Near highway Near public transport Near school On a quiet street Residential area |
| Type | Back yard |
| Orientation | West |
| Has a backyard entrance | Yes |
| Condition | Normal |
| Garden 2 - Type | Front yard |
| Garden 2 - Orientation | East |
| Energy certificate | B |
| Type of boiler | Vaillant |
| Heating source | Gas |
| Year of manufacture | 2016 |
| Combiboiler | Yes |
| Boiler ownership | Owned |
| Number of parking spaces | 1 |
| Water heating | Central heating system Electric boiler |
| Heating | Central heating |
| Bathroom facilities Bathroom 1 | Bath Shower Toilet Washbasin furniture |
| Bathroom facilities Bathroom 2 | Shower Sink Toilet |
| Parking | Parking lot |
| Has a flue tube | Yes |
| Has fibre optical cable | Yes |
| Garden available | Yes |
| Has roller blinds | Yes |
| Has a storage room | Yes |
| Has a skylight | Yes |
| Cadastral designation | Maassluis A 3475 |
| Area | 294 m² |
| Range | Entire lot |
| Ownership | Full ownership |