| Price | €498,500 |
| Type of residence | House, single-family house, semi-detached house |
| Plot size | 421 m² |
| Liveable area | 153 m² |
| Acceptance | By consultation |
| Status | Sold |
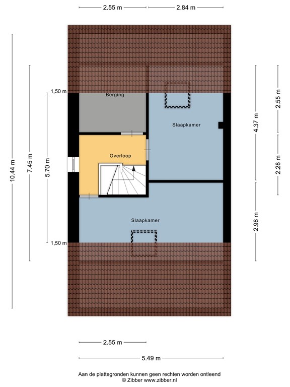
Je vaart zo de prachtige Friese wateren op vanaf It Ferset 15 in Makkum. Een halfvrijstaande woning, gebouwd in 2007. Je legt je boot aan bij een ruime aanlegkade van 12 meter aan open vaarwater. De achtertuin ligt op het noorden, maar dankzij de diepte van 14 meter heb je de hele dag zon. En er zijn ook fijne schaduwplekjes. Je kunt heerlijk beschut zitten onder de overkapping. En er is een achterom. Aan de voorzijde heb je een brede en lange oprit waar je wel vier auto’s kwijt kunt. En er is een garage. Via de hal met toilet kom je in de ruime, lichte L-vormige woonkamer met een massief eikenhouten vloer en openslaande deuren naar het zitgedeelte en de tuin. De halfopen keuken is gereviseerd en voorzien van diverse nieuwe inbouwapparatuur. In de bijkeuken met vloerverwarming en een wasmachineaansluiting bevindt zich een deur naar de garage. Op de eerste verdieping kom je via de overloop in drie slaapkamers. De badkamer heeft een ligbad, inloopdouche, wastafel, wandcloset en vloerverwarming. Via een vaste trap bereik je de tweede verdieping met nog twee slaapkamers, een bergruimte en een nieuwe Atag cv-ketel (2023). Makkum is een gezellig, pittoresk watersportdorp aan het IJsselmeer. Alle voorzieningen zijn aanwezig. Je rijdt zo de wijk uit naar de A7 en in een uur ben je in Amsterdam, Groningen of Zwolle. Mooie woning hè? En ook nog eens heerlijk wonen aan open vaarwater. Maak snel een afspraak. Tot dan! Exoneratiebeding De informatie is met grote zorgvuldigheid samengesteld. Desondanks aanvaardt de verkoper noch Hilbert Makelaardij enige aansprakelijkheid voor de onjuistheid van gegevens. De koper kan aan de inhoud van de vermelde informatie geen enkel recht ontlenen. Hij dient zelf onderzoek te plegen naar alle aspecten van de woning die voor hem van belang zijn.
| Reference number | 00268 |
| Asking price | €498,500 |
| Status | Sold |
| Acceptance | By consultation |
| Last updated | 04 November 2025 |
| Type of residence | House, single-family house, semi-detached house |
| Type of construction | Existing estate |
| Construction period | 2007 |
| Roof materials | Bitumen Tiles |
| Rooftype | Front gable |
| Certifications | Energy performance advice |
| Isolations | Cavity wall Floor Full HR glazing Insulated glazing Roof Wall |
| Plot size | 421 m² |
| Floor Surface | 153 m² |
| Living area | 57.32 m² |
| Kitchen area | 6.81 m² |
| Content | 602 m³ |
| Surface area other inner rooms | 17 m² |
| Number of floors | 3 |
| Number of rooms | 6 (of which 5 bedrooms) |
| Number of bathrooms | 1 (and 1 separate toilet) |
| Location | Near public transport Near school On waterway Residential area Sheltered location |
| Type | Front yard |
| Orientation | South |
| Condition | Well maintained |
| Garden 2 - Type | Back yard |
| Garden 2 - Main garden | Yes |
| Garden 2 - Orientation | North |
| Garden 2 - Has a backyard entrance | Yes |
| Garden 2 - Condition | Well maintained |
| Energy certificate | A |
| Type of boiler | Atag |
| Heating source | Gas |
| Year of manufacture | 2023 |
| Combiboiler | Yes |
| Boiler ownership | Owned |
| Number of parking spaces | 5 |
| Number of covered parking spaces | 1 |
| Water heating | Central heating system |
| Heating | Central heating Partial Floor heating Pellet stove |
| Ventilation method | Mechanical ventilation |
| Kitchen facilities | Built-in equipment |
| Bathroom facilities | Bath Sink Toilet Underfloorheating Walkin shower |
| Parking | Attached stone |
| Has cable TV | Yes |
| Has a flue tube | Yes |
| Garden available | Yes |
| Has a garage | Yes |
| Has an internet connection | Yes |
| Has ventilation | Yes |
| Cadastral designation | Makkum F 692 |
| Area | 421 m² |
| Range | Entire lot |
| Ownership | Full ownership |