Description

Wie droomt er niet van een modern, instapklaar gezinshuis waar comfort en energiezuinigheid hand in hand gaan? Deze fraaie eindwoning, gelegen in de Alberdaheerd, biedt deze unieke combinatie. Met een bouwjaar van 2016 ben je verzekerd van eigentijds wooncomfort én een woning die volledig voldoet aan de woonwensen van vandaag. Kom je kijken?

Bij binnenkomst valt direct op hoeveel ruimte deze woning te bieden heeft. De royale leefruimte leent zich perfect voor gezellige avonden aan tafel, spelende kinderen of een ontspannen filmavond op de bank. Dankzij de grote raampartijen baadt de woonkamer in natuurlijk daglicht, waardoor je het hele jaar door geniet van een aangename sfeer.

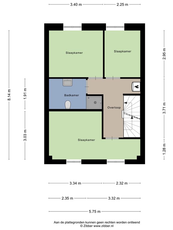
Met drie volwaardige slaapkamers op de eerste verdieping is er genoeg plek voor de hele familie. Of je nu een babykamer, logeerkamer of thuiskantoor zoekt, je kunt alle kanten op. En dan heb je daarboven ook nog eens een verrassend ruime zolderkamer – ideaal voor die puber met extra privacywensen, als hobbyruimte óf simpelweg als bergruimte om speelgoed, vakantiespullen en meer uit het zicht te houden. Je merkt het al: in dit huis groeit je gezin moeiteloos met je mee.

Heb je altijd al gedroomd van een fijne tuin waar je heerlijk kunt genieten van lange zomeravonden met vrienden onder het genot van een hapje en drankje? De achtertuin met fraaie terrasoverkapping maakt het allemaal mogelijk. Het perceel biedt voldoende ruimte om te ontspannen, groenteplantjes te kweken of gewoon lekker te zonnen. 

De woning ligt in een rustige, kindvriendelijke wijk van Marum, waar speelvelden en scholen op korte afstand zijn te vinden. Geen gedoe met lange autoritten: alles wat je nodig hebt is dichtbij, van supermarkten tot sportverenigingen en medische voorzieningen. De gunstige ligging maakt het daarnaast gemakkelijk om snel op de A7 te zitten richting Groningen of Drachten – ideaal voor wie werkt in de stad, maar liever buiten woont.

Samengevat: Jouw Nieuwe Thuis?

Even alles op een rijtje: je woont hier in een fraai afgewerkte woning uit 2016, mét energielabel A, drie slaapkamers plus een ruime zolderkamer en een heerlijke tuin om helemaal tot rust te komen. Het huis staat in een moderne, veilige buurt vol jonge gezinnen en biedt alle ruimte om samen op te groeien.

Is je nieuwsgierigheid gewekt? Kom dan zelf ervaren hoe fijn het wonen is aan Swanenburg 6 in Marum. Neem gerust contact met ons op voor een bezichtiging en wie weet mag jij deze prachtige woning binnenkort thuis noemen!

Bijzonderheden:
* Bouwjaar 2016;
* Drie slaapkamers en ruime zolderkamer;
* Vier zonnepanelen;
* Aanvaarding in overleg;

Features