Description

**Instapklare woning met karakter aan de Schoolstraat in Musselkanaal**

Laat je verrassen door deze vrijstaande, jaren ‘30 woning met 4 slaapkamers gesitueerd op een ruim perceel van 675m² eigen grond. Dit gezellige woonhuis is nagenoeg volledig gerenoveerd en in de afgelopen jaren flink onder handen genomen—je merkt het aan alles: isolatie dik in orde, deels kunststof kozijnen (onderhoudsvriendelijk!), en de ruimtes zijn stuk voor stuk fris en licht. Met een woonoppervlakte van ca. 117 m² heb je bovendien alle vrijheid om je eigen draai aan elke kamer te geven. En met mogelijkheden om te slapen en te baden op de begane grond is deze woning ook perfect als je graag levensloopbestendig wilt wonen. 

Interesse? Neem voor meer informatie of een bezichtiging snel contact op met team REGIO MAKELAAR in Stadskanaal. Wij kijken ernaar uit om je te verwelkomen en je rond te leiden.

Layout

- Entree, hal, trapopgang
- Gezellige Woonkamer met erker voorzien van laminaat vloer
- Ruime Woonkeuken voorzien van inbouwkeuken met diverse inbouwapparatuur; combimagnetron, koelkast, 5-pits gaskookplaat, RVS afzuigkap en vaatwasser.
- Bijkeuken met cv-opstelling en wasmachine- droger aansluiting
- Toilet met fonteintje
- Badkamer met ligbad, wastafelmeubel, douchehoek en verwarmd middels elektrische vloerverwarming
- Achterhal met achter entree
- Slaapkamer met vaste kastenwand
- Berging

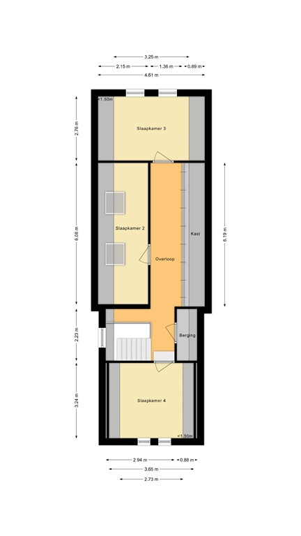
First floor

- Overloop met kastenwand
- 3 Slaapkamers, allen voorzien van een gelijke laminaat vloer.
- Inloopkast (Mogelijkheden voor een 2e toilet. Leidingen reeds aangelegd.)

Details

- Nagenoeg volledig gerenoveerd vanaf 2020
- Dakisolatie
- Vloerisolatie
- Muurisolatie
- Dubbel glas HR, HR++
- Deels voorzien van kunststof kozijnen
- Cv verwarmd, Remeha Tzerra, bouwjaar 2022, eigendom
- Door de gehele woning is een gelijke laminaatvloer gelegd. 
- Aan de achterzijde van de woning is een ruime, houten overkapping/veranda geplaatst. 
- Eigen inrit
- Diepe achtertuin
- Mogelijkheden voor een garage/schuur

Features