| Price | €400,000 |
| Type of residence | House, single-family house, detached house |
| Plot size | 355 m² |
| Liveable area | 127 m² |
| Acceptance | By consultation |
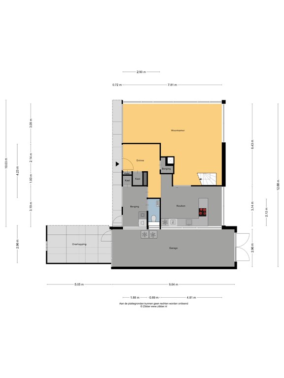
Pak je kans! Door persoonlijke omstandigheden van de koper is de verkoop niet doorgegaan. Dus we gaan in de herkansing! Achter de Workummertrekvaart ligt een hele leuke, gerenoveerde vrijstaande woning in een dorp dat leeft. Er is een basisschool en een sporthal en er zijn verschillende sportverenigingen. Op fietsafstand van Bolsward en Workum. Je zit zo op de A7 en binnen een uur ben je bij Amsterdam, Groningen of Zwolle. Wat gelijk opvalt aan de voorzijde is de enorme voortuin. 10 meter diep en 17 meter breed. Met een ruime oprit naar de garage, waar je wel twee auto’s kunt parkeren. Op het dak liggen 18 zonnepanelen. Ook aan de achterzijde heb je een beschutte tuin van wel 17 meter breed, heerlijk op de zon. Met een overkapping en een prachtig ruim uitzicht. Via de hal met de bijkeuken kom je in de vernieuwde halfopen keuken met inbouwapparatuur. De L-vormige woonkamer heeft een sfeervolle houtkachel en HR++ dubbel glas. Ook boven is alles voorzien van dubbel glas en zijn de wanden geïsoleerd. Op de verdieping heb je een overloop met vide. Er zijn in totaal drie slaapkamers, waarvan één met een inloopkast. De badkamer is van 2021 en heeft een ligbad, inloopdouche, dubbele wastafelmeubel en een wandcloset. Op de overloop is er ook nog een bergkast met een nieuwe cv-installatie en een doorgang naar de bergzolder, waar je je spullen kwijt kunt. Wat een leuke woning hè! En dan ook nog eens met een heleboel woningverbeteringen en op een leuke plek in een levendig dorp. Wil je het zelf komen zien en beleven? Maak dan snel een afspraak voor een bezichtiging, tot dan! Exoneratiebeding De informatie is met grote zorgvuldigheid samengesteld. Desondanks aanvaardt de verkoper noch Hilbert Makelaardij enige aansprakelijkheid voor de onjuistheid van gegevens. De koper kan aan de inhoud van de vermelde informatie geen enkel recht ontlenen. Hij dient zelf onderzoek te plegen naar alle aspecten van de woning die voor hem van belang zijn.
| Reference number | 00341 |
| Asking price | €400,000 |
| Acceptance | By consultation |
| Last updated | 20 April 2026 |
| Type of residence | House, single-family house, detached house |
| Type of construction | Existing estate |
| Construction period | 1972 |
| Roof materials | Bitumen Tiles |
| Rooftype | Front gable |
| Certifications | Energy performance advice |
| Isolations | HR glazing Insulated glazing Roof Wall |
| Plot size | 355 m² |
| Floor Surface | 127 m² |
| Living area | 50.22 m² |
| Kitchen area | 15.1 m² |
| Content | 595 m³ |
| Surface area other inner rooms | 33 m² |
| External surface area | 22 m² |
| Number of floors | 3 |
| Number of rooms | 4 (of which 3 bedrooms) |
| Number of bathrooms | 1 (and 1 separate toilet) |
| Location | Near public transport Near school Residential area Sheltered location |
| Type | Front yard |
| Orientation | West |
| Condition | Well maintained |
| Garden 2 - Type | Back yard |
| Garden 2 - Main garden | Yes |
| Garden 2 - Orientation | East |
| Garden 2 - Has a backyard entrance | Yes |
| Garden 2 - Condition | Well maintained |
| Energy certificate | A |
| Type of boiler | Intergas |
| Heating source | Gas |
| Year of manufacture | 2024 |
| Combiboiler | Yes |
| Number of parking spaces | 4 |
| Number of covered parking spaces | 2 |
| Water heating | Central heating system |
| Heating | Central heating Wood stove |
| Ventilation method | Natural ventilation |
| Kitchen facilities | Built-in equipment |
| Bathroom facilities | Bath Double sink Toilet Walkin shower Washbasin furniture |
| Parking | Detached stone |
| Has cable TV | Yes |
| Garden available | Yes |
| Has a garage | Yes |
| Has an internet connection | Yes |
| Has solar panels | Yes |
| Cadastral designation | Tjerkwerd B 2154 |
| Area | 355 m² |
| Range | Entire lot |
| Ownership | Full ownership |