| Price | €550,000 |
| Type of residence | House, single-family house, semi-detached house |
| Plot size | 625 m² |
| Liveable area | 152 m² |
| Acceptance | By consultation |
| Status | Sold |
Welkom op Borgsweg 8, een prachtige vrijstaand geschakelde woning uit 1936 die helemaal voldoet aan de moderne eisen van comfort en stijl. Gelegen in buurtschap "De Borg", met een prachtig vrij uitzicht over bos en landerijen, is dit de ideale woning voor mensen die op zoek zijn naar comfort, ruimte en rust in een schitterende omgeving. Door de slaapkamer en badkamer op de begane grond is de woning levensloopbestendig te gebruiken maar daarmee is dit huis ook perfect voor gezinnen met opgroeiende kinderen en doorstromers die op zoek zijn naar ruimte, comfort en gemak. De knusse woonkamer, de ruime en moderne leefkeuken en de 3 slaapkamers op de verdiepingen bieden genoeg ruimte voor iedereen, terwijl de moderne 2e badkamer zorgt voor extra luxe. De kelder en de zolder zorgen voor extra bergruimte. Met een woonoppervlakte van 152 m² biedt deze woning voldoende ruimte voor het hele gezin. Het perceel heeft een oppervlakte van maar liefst 625 m², waarvan het grootste gedeelte bestemd is als achtertuin. Hier kun je volop genieten van het buitenleven en heerlijk ontspannen in de zon. Dankzij de grote garage en de brede oprit is er genoeg parkeerplek en bergruimte. Duurzaamheid is ook een belangrijk aspect van deze woning. De woning is volledig geïsoleerd en heeft energielabel A dat ervoor zorgt dat de energiekosten laag blijven. Klaar om jouw nieuwe droomhuis te vinden? Deze prachtige woning in Posterholt wacht op jou! Maak snel een afspraak voor een bezichtiging en wie weet wordt dit binnenkort wel jouw nieuwe thuis.
Begane grond: De entree geeft toegang tot de voordeur en de hal. Vanuit de hal met uitgebreide meterkast en trap naar de 1e verdieping zijn de toiletruimte, de woonkamer en de badkamer bereikbaar. De knusse woonkamer ca. 27 m²) heeft veel lichtinval en is voorzien van een laminaatvloer. De leefkeuken is ruime van opzet (ca. 26 m²) en voorzien van een tegelvloer openslaande deuren naar de tuin. De keuken beschikt over een moderne keukenopstelling met apparatuur (inductiekookplaat, afzuigkap, stoomoven, magnetron, vaatwasser, koelkast en diepvries) en voldoende werk- en kastruimte. Aan de voorzijde van de woning zijn de slaapkamer en de badkamer gelegen. De slaapkamer is ca. 12 m² groot, voorzien van een laminaatvloer en kan gebruikt worden als slaapkamer, werkkamer, speelkamer enz. De badkamer (ca. 9 m²) is voorzien van een inloopdouche, vaste wastafel en hier bevinden zich de witgoedaansluitingen. De begane grond is voorzien van vloerverwarming.
1e verdieping: Op de eerste verdieping bevinden zich de overloop, 3 slaapkamers, een badkamer en een apart toilet. De overloop en slaapkamers zijn afgewerkt met een doorlopende laminaatvloer en de slaapkamers zijn respectievelijk circa 13, 12 en 9 m² groot. De moderne en complete badkamer (ca. 8,5 m²) is voorzien van een ligbad, grote inloopdouche, dubbele wastafel in badkamermeubel. De verdieping is voorzien van elektrische vloerverwarming.
2e verdieping: Vliering welke dienst doet als berging;
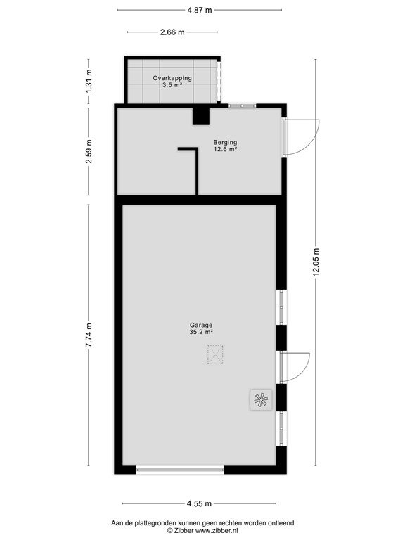
Perceel: De garage (ca. 35 m²) is voorzien van een elektrisch bedienbare poort, een loopdeur naar de tuin, elektra en beschikt over een handige vliering. Achter de garage bevindt zich nog een berging van ca. 12 m². De op het zuidwesten georiënteerde achtertuin is voorzien van een terras, gazon en borders met beplanting. De tuin is achterom bereikbaar via een poort, is geheel omheind en biedt voldoende privacy.
Algemeen: De woning is rustig en landelijk gelegen aan de rand van Posterholt in het buurtschap “de Borg”. In de directe nabijheid bevinden zich diverse winkels, recreatievoorzieningen en het fraaie buitengebied met vele wandel- en fietsmogelijkheden . De aansluitingen op uitvalswegen richting o.a. Roermond en de Duitse grens zijn snel bereikbaar. Deze modern afgewerkte vrijstaand geschakelde woning is oorspronkelijk gebouwd omstreeks 1936. De woning verkeert in een prima staat van onderhoud en is de laatste jaren gemoderniseerd en verduurzaamd. De woning is volledig geïsoleerd, voorzien van kunststof kozijnen met triple beglazing op de begane grond en HR++ beglazing op de verdieping, een HR combiketel, 8 zonnepanelen en heeft energielabel A. Het woonoppervlak bedraagt ca. 152 m², de overige inpandige ruimte ca. 25 m², externe berging ca. 60 m², de inhoud ca. 655 m³ en het perceeloppervlak bedraagt 625 m². Omgeving: Posterholt maakt met haar buurtschappen de Borg, de Holst en de Varst deel uit van de gemeente Roerdalen en heeft circa 4000 inwoners. Het dorp is gelegen in een landelijke en groene woonomgeving. Posterholt beschikt over meer dan voldoende voorzieningen zoals een basisschool met kinderopvang, een supermarkt, een drogist en diverse andere winkels, een huisartsenpraktijk, een tandartspraktijk, apotheek, diverse horecagelegenheden, tal van sport- en recreatievoorzieningen, indoorspeeltuin, fitness- en wellness centra en tal van verenigingen. Posterholt heeft goede aansluitingen op de diverse provinciale wegen richting Noord- en Zuid-Limburg alsook naar Duitsland.
| Reference number | 223 |
| Asking price | €550,000 |
| Status | Sold |
| Acceptance | By consultation |
| Last updated | 08 March 2026 |
| Type of residence | House, single-family house, semi-detached house |
| Type of construction | Existing estate |
| Construction period | 1936 |
| Roof materials | Bitumen Tiles |
| Rooftype | Front gable |
| Isolations | Cavity wall Floor Full HR glazing Insulated glazing Roof Triple glazing Wall |
| Plot size | 625 m² |
| Floor Surface | 152 m² |
| Living area | 27 m² |
| Kitchen area | 26 m² |
| Content | 655 m³ |
| Surface area other inner rooms | 25 m² |
| External surface area storage rooms | 60 m² |
| Number of floors | 3 (and one basement) |
| Number of rooms | 5 (of which 4 bedrooms) |
| Number of bathrooms | 2 (and 2 separate toilets) |
| Location | On a quiet street Unobstructed view |
| Type | Back yard |
| Main garden | Yes |
| Orientation | South west |
| Has a backyard entrance | Yes |
| Condition | Well maintained |
| Energy certificate | A |
| Type of boiler | Nefit |
| Heating source | Gas |
| Year of manufacture | 2024 |
| Combiboiler | Yes |
| Boiler ownership | Owned |
| Number of parking spaces | 2 |
| Water heating | Central heating system |
| Heating | Central heating Floor heating |
| Ventilation method | Mechanical ventilation |
| Bathroom facilities Bathroom 1 | Shower Sink Washingmachine connection |
| Bathroom facilities Bathroom 2 | Bath Double sink Underfloorheating Walkin shower Washbasin furniture |
| Parking | Detached stone |
| Garden available | Yes |
| Has a garage | Yes |
| Has a storage room | Yes |
| Has solar panels | Yes |
| Has ventilation | Yes |
| Cadastral designation | Posterholt G 805 |
| Area | 585 m² |
| Range | Entire lot |
| Ownership | Full ownership |
| Cadastral designation | Posterholt G 802 |
| Area | 40 m² |
| Range | Entire lot |
| Ownership | Full ownership |