Description

Ruime hoekwoning met 4 slaapkamers én zeer ruime zonnige tuin in Rotterdam-Zevenkamp!

In een rustige en kindvriendelijke woonomgeving in Rotterdam-Zevenkamp bevindt zich deze ruime en praktisch ingedeelde hoekwoning met maar liefst vier slaapkamers, een royale zolderkamer en een zeer ruime en zonnige tuin.

De woning onderscheidt zich door de hoekligging (extra licht en privacy), de functionele indeling én het duurzame karakter met energielabel A, stadsverwarming en 16 zonnepanelen.

Gelegen op korte afstand van supermarkt, winkelcentrum Hesseplaats, scholen, openbaar vervoer (metro) en op fietsafstand van het strand en de boulevard van Nesselande en de Zevenhuizerplas.

Layout

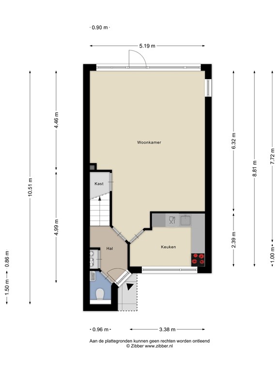
Begane grond

Via de entree kom je binnen in de hal met meterkast, toilet en trapopgang naar de eerste verdieping.

Direct bij binnenkomst bevindt zich de keuken, die netjes is uitgevoerd en voorzien van diverse inbouwapparatuur. De keuken is praktisch ingericht en biedt voldoende werk- en bergruimte.

De woonkamer is separaat van de keuken en bevindt zich aan de achterzijde van de woning. Deze is ruim en licht opgezet en biedt een fijne leefruimte met zicht op en toegang tot de tuin.

First floor

Op de eerste verdieping bevinden zich drie slaapkamers van goed formaat.

De woning beschikt over een dakkapel aan de achterzijde, wat zorgt voor extra ruimte en licht.

De badkamer is centraal gelegen en voorzien van een ligbad, douche, wastafel en toilet.

Second floor

De zolderverdieping is een ruime open verdieping die is ingericht als volwaardige zolderkamer. Dankzij de kap en het dakraam is dit een lichte ruimte. Daarnaast is er praktische bergruimte aanwezig.

Garden

De woning beschikt over een zeer ruime en zonnige tuin, een absoluut pluspunt van deze hoekwoning. Door de grootte en gunstige ligging is er gedurende de dag altijd zon aanwezig.
Daarnaast is er een separate berging aanwezig voor fietsen en opslag.

Details

Ervaring van de bewoners:

“Toen we 32 jaar geleden voor het eerst binnenstapten, wisten we eigenlijk meteen dat dit ons thuis zou worden. De grote tuin, waar de zon van ’s ochtends vroeg tot in de avond ergens te vinden is, voelde als een cadeau. Hier hebben onze kinderen gespeeld, verjaardagen gevierd en in de zomer eindeloos buiten gezeten.
Wat we altijd bijzonder hebben gevonden, is hoe dichtbij de natuur is. De Zevenhuizerplas en het natuurgebied De Rotte waren voor ons een plek om even op adem te komen. Een wandeling na het werk, een rondje fietsen, of gewoon even langs het water zitten.
Het huis heeft ons veel gegeven: rust, ruimte, licht en vooral herinneringen. We laten het met warme gevoelens achter en hopen dat de volgende bewoners hier net zo’n fijne tijd zullen hebben als wij.”
 
Bijzonderheden
• Ruime hoekwoning met extra lichtinval
• 4 slaapkamers (3 op de eerste verdieping + zolderkamer)
• Gescheiden keuken en woonkamer
• Keuken bij entree, netjes uitgevoerd met inbouwapparatuur
• Vloerverwarming in de keuken en woonkamer
• Zeer ruime en zonnige tuin
• Dakkapel aan de achterzijde (1e verdieping)
• 16 zonnepanelen
• Energielabel A
• Verwarming via stadsverwarming
• Complete badkamer
• Royale zolderverdieping
• Externe berging
• Rustige en kindvriendelijke ligging
• Nabij winkels, scholen, metro en uitvalswegen
• Dicht bij Nesselande strand en Zevenhuizerplas
 
Gebruiksoppervlakte
De meetinstructie is gebaseerd op de NEN 2580 en geeft een indicatie van de gebruiksoppervlakte.
 
Rechtsgeldige koopovereenkomst
Een mondelinge overeenstemming is niet rechtsgeldig. Dit ontstaat pas na ondertekening door beide partijen (art. 7:2 BW).
 
Disclaimer
Aan deze informatie kunnen geen rechten worden ontleend.
 
Interesse?
Butler Makelaardij is de makelaar van de verkoper. Neem uw eigen Vastgoed Nederland-makelaar mee voor deskundig advies.

Features