Description

Ben jij die starter die droomt van een licht 3-kamer appartement waar je écht je eigen stempel op kunt drukken?
Kom dan kijken en laat je verrassen door de prachtige lichtinval en de authentieke details. Van de originele ensuite-deuren tot de karakteristieke keuken: de sfeer is hier direct voelbaar.  Hier creëer je in een handomdraai jouw ideale droomplek midden in het gezellige Schiebroek!

De locatie is simpelweg ideaal. Voor de dagelijkse boodschappen hoeft u alleen de trap af naar de winkels 
van de Peppelweg. Voor ontspanning wandelt u zo naar het Plaswijckpark of de nabijgelegen kinderboerderij. Met basisscholen om de hoek en de metro op loopafstand is de bereikbaarheid naar het centrum van Rotterdam uitstekend

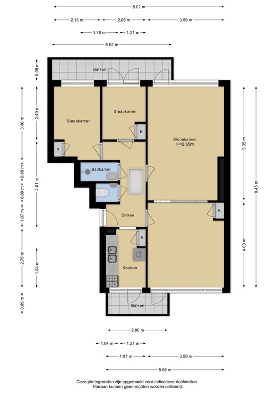
Layout

Dit charmante appartement, gelegen op de derde verdieping, is veel meer dan alleen een woning; het is een uitvalsbasis vol licht, karakter en potentie. Met de levendige winkelstraat letterlijk aan uw voeten en een weids, rustgevend uitzicht aan de achterzijde, geniet u hier van het beste van twee werelden. Gezellig wonen boven de levendige winkelstraat, met het comfort van kunststof kozijnen en het karakter van een authentieke indeling. 

Woonkamer met karakter: Bij binnenkomst in de woonkamer valt direct de klassieke kamer-en-suite verdeling op. De originele raam- en deurpartij tussen de voor- en achterkamer is bewaard gebleven, wat zorgt voor een prachtige lichtinval en een intieme sfeer. De haardkachel in de zithoek is het stralende middelpunt; de perfecte plek voor lange winteravonden.

Dubbel buitenplezier: Waarom kiezen tussen reuring of rust? Aan de voorzijde stap je het balkon op om de dynamiek van de Peppelweg op te beleven – ideaal voor een kop koffie terwijl de buurt ontwaakt. Aan de achterzijde vind je het tweede balkon, waar u in alle stilte geniet van een vrij uitzicht over de groene achterliggende wijk.

Vintage droomkeuken: Voor de liefhebber is de keuken een absoluut pronkstuk. Het betreft een originele Bruynzeel-keuken die perfect past bij de tijdsgeest van het pand. De keuken is functioneel ingericht met een gaskookplaat, boiler en koel-vriescombinatie. 
Slapen & Bergzolder: Het appartement beschikt over twee slaapkamers. De huidige bewoners hebben één kamer getransformeerd tot een royale walk-in closet, maar deze is eenvoudig weer als volwaardige slaap- of werkkamer in te richten. 

Een unieke bonus is de enorme bergzolder (bereikbaar via vlizotrap). Hoewel eigendom van de VvE, heeft u hier exclusief gebruik van. Ideaal voor alles wat u niet dagelijks nodig heeft, maar wel binnen handbereik wilt houden.


Comfort & Kansen: De gehele woning is voorzien van onderhoudsvriendelijke kunststof kozijnen met dubbele beglazing. 
Terwijl het toilet met fonteintje keurig is onderhouden, biedt de eenvoudige badkamer (waarvan de wastafel momenteel defect is) de uitgelezen kans om een moderne doucheruimte te creëren, geheel naar eigen smaak en ontwerp.

Details

Waarom de Peppelweg?
Wonen aan de Peppelweg betekent alles binnen handbereik: van ambachtelijke bakkers en boetieks tot gezellige lunchrooms en de wekelijkse markt. Met het Plaswijckpark en de Bergse Plassen op loopafstand, en uitstekende verbindingen naar het centrum van Rotterdam (tramlijn 25 en de RandstadRail), is dit een locatie die nooit verveelt.

Oplevering kan per direct

Bijzonderheden-
•	Kunststof kozijnen
•	Dubbelglas 
•	2 slaapkamers
•	2 balkons
•	Berging beneden
•	Berging met Vlizotrap van VvE maar met exclusief gebruiker
•	Badkamer is aan vervanging toe

-Dichtbij-
•	Winkels
•	Metro
•	Plaswijckpark
•	Bergse Plassen

In de koopovereenkomst wordt, gezien de leeftijd van de woning (ouder dan 50 jaar), standaard een ouderdomsclausule opgenomen. De verstrekte informatie is met zorg samengesteld en grotendeels gebaseerd op gegevens van derden. Deze informatie is van algemene aard en dient uitsluitend als uitnodiging tot onderhandeling. Aan de inhoud kunnen geen rechten worden ontleend.

Features