Description

Op zoek naar een leuke starterswoning op een centrale locatie? Met alle wensbare voorzieningen in de omgeving? Dat kan: aan de Delfslandseweg 243 in Schiedam!

Gelegen op de 3e verdieping vind je dit leuke appartement voorzien van 1 ruime slaapkamer, een nette badkamer met een ligbad, een open keuken, een ruim balkon gelegen op het noorden en een individuele berging in de onderbouw voor extra opslagruimte. Daarnaast maakt het appartement onderdeel uit van een goed onderhouden appartementencomplex met een actieve Vereniging van Eigenaren.

Het appartement is centraal gelegen met het centrum van Schiedam op loopafstand. Daarnaast zijn de dichtstbijzijnde uitvalswegen op slechts een paar minuten rijden. Je bent zo in het bruisende centrum van Rotterdam. Liever met het OV?  Je kan zowel de trein, tram, bus en metro pakken.
Kortom, wonen in een fijne omgeving met een goede bereikbaarheid. 

Dit leuke hoekappartement combineert ruimte en een uitstekende ligging waardoor het de ideale keuze is voor iedereen die op zoek is naar een fijne (t)huis. Dus, ben jij die gezellige starter die op zoek is naar een leuk appartement in Schiedam? Pak dan snel de telefoon en plan een bezichtiging in. Wie weet wordt dit wel jouw nieuwe thuis!

 

Indeling
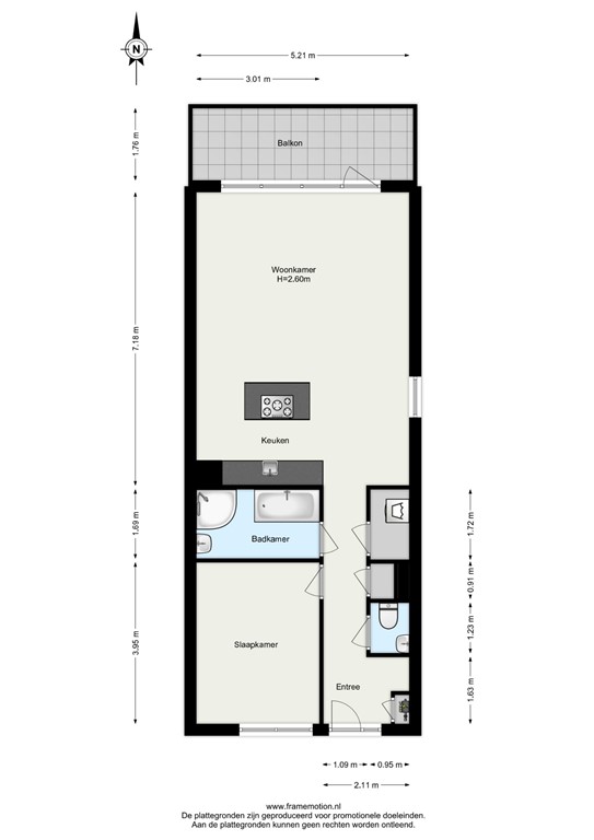
Begane grond
Een centrale entree met brievenbussen- en bellentableau met videofoon en toegang tot het trappenhuis. Vanuit de gesloten entree heb je toegang tot de individuele berging in de onderbouw en de algemene fietsenstalling. Middels de lift bereik je de woning gelegen op de derde verdieping.

Derde verdieping
Je komt binnen in de hal en hier vind je de garderobe, de meterkast, een separaat toilet, een inpandige berging en een aparte extra ruimte voor je was- en droogmachine, ideaal!
De badkamer is volledig betegeld, voorzien van een ligbad, douchecabine en een wastafel met meubel. Het toilet is deels betegeld en voorzien van een fonteintje.

De zeer ruime slaapkamer ligt gesitueerd aan de voorzijde van de woning en is licht en zeer ruim van formaat. De slaapkamer biedt voldoende ruimte voor een groot bed en een kledingkast. 

Een fijne, open keuken met een kookeiland: uitgevoerd in een rechte opstelling met voldoende opbergruimte. De keuken is voorzien van een oven, inductie kookplaat met afzuigkap en een koelkast.

De ruime woonkamer is praktisch ingedeeld en vanwege de hoekligging, maakt dit de woonkamer een fijne, lichte ruimte dat voorzien is van veel lichtinval door de grote raampartijen. Vanuit de woonkamer heb je toegang tot het balkon. Op het balkon kan je heerlijk ontspannen na het koken.


Kenmerken

-	bouwjaar 1978
-	woonoppervlakte ca. 68 m2 
-	energielabel C geldig tot 2035
-	appartement grotendeels voorzien van dubbele beglazing
-	ruim balkon gelegen op het noorden
-	verwarming en warm water middels centrale voorziening
-	het appartement maakt onderdeel uit van een goed onderhouden complex met een actieve Vereniging van Eigenaren: maandelijkse bijdrage van €435,88,- 
-	het complex is gelegen op erfpachtgrond: einddatum van het erfpachtrecht is 01-07-2051, welke is afgekocht.
-	berging voor individueel gebruik in de onderbouw: ca. 4 m2 
-	centrale locatie met parkeergelegenheid rondom complex
-   mogelijkheid om een parkeerplaats los erbij te huren €150,- per kwartaal (nog 3 plekken beschikbaar).
-	oplevering in overleg (kan snel).

DISCLAIMER
Voor een indicatie van de maatvoering verwijs ik u naar de plattegronden. Alle verstrekte informatie moet beschouwd worden als een uitnodiging tot het doen van een aanbod of om in onderhandeling te treden.

NEN2580
De Meetinstructie is gebaseerd op de NEN2580. De Meetinstructie is bedoeld om een meer eenduidige manier van meten toe te passen voor het geven van een indicatie van de gebruiksoppervlakte. De Meetinstructie sluit verschillen in meetuitkomsten niet volledig uit, door bijvoorbeeld interpretatieverschillen, afrondingen of beperkingen bij het uitvoeren van de meting. Indien de exacte maten voor een koper van cruciaal belang zijn, adviseren wij deze zelf na te meten.

OUDERDOMSCLAUSULE
Bij woningen ouder dan 40 jaar zal er standaard in de koopakte een ouderdomsclausule worden opgenomen.

NOTARISKEUZE EN KOSTEN
In principe ligt de notariskeuze bij de koper. Het doorhalen van de hypothecaire inschrijving in het kadaster moet door de verkoper betaald worden. Zijn de kosten van één hypothecaire doorhaling hoger dan €250,- inclusief BTW, dan wordt het meerdere bij de koper in rekening gebracht.
Indien de koper een notaris kiest buiten een straal van 20 kilometer van de verkochte onroerende zaak, dan zijn de eventuele kosten die de notaris berekent voor een volmacht en legalisatie hiervan ten behoeve van de verkoper, voor rekening van de koper.

LOTUS MAKELAARDIJ behartigt de belangen van de verkopende partij. Laat u zich ook professioneel begeleiden? Overweeg om een aankoopmakelaar in te schakelen die u kan adviseren en ondersteunen bij het aankopen van deze woning.

Features