Description

Westdorperstraat 29 361, Schoonloo
Genieten op De Tien Heugten!

Ben jij op zoek naar een leuke recreatiechalet voor twee tot vier personen in een bosrijke omgeving aan een recreatieplas? Dan is deze chalet op recreatiepark De Tien Heugten wellicht iets voor jou! De vrijstaande chalet op eigen grond biedt comfort en rust op een groen recreatiepark in het hart van Drenthe.

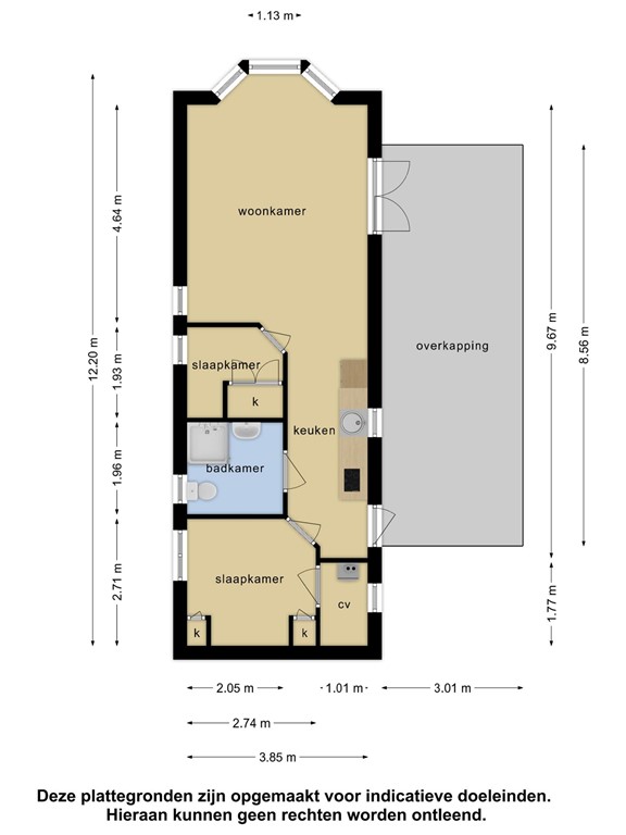
De chalet met een woonoppervlak van circa 45 m² beschikt over twee slaapkamers, een badkamer (inclusief toilet) en een woonkamer met keuken. Daarnaast beschikt de chalet over een eigen parkeerplaats, met ruimte voor één auto. 

De chalet is voorzien van vloer-, muur- en dakisolatie en dubbel glas, waardoor de woning volledig geïsoleerd is. Daarnaast ben je bij deze chalet eigenaar van de grond en ben je vrij om de chalet te verhuren.

Via de openslaande deuren in de woonkamer bereik je de overdekte veranda en de tuin.
De verzorgde tuin ligt op het zuiden en voorzien is van groen, bestrating en buitenverlichting. Door de overdekte veranda is dit een fijne plek om reeds vanaf het vroege voorjaar heerlijk buiten te zitten met familie en vrienden. Je kunt hier ontspannen met een goed boek, de bbq aansteken of helemaal niets doen. Hier geniet je optimaal van het buitenleven.

Recreatiepark De Tien Heugten ligt in het groene hart van Drenthe, nabij het dorp Schoonloo en omringd door uitgestrekte bossen, heidevelden en karakteristieke Drentse dorpen. Het park is ruim opgezet en ligt direct aan een recreatieplas met zandstrand, waar je op warme dagen kunt genieten van rust, ruimte en verkoeling

Op het park zelf zijn diverse faciliteiten aanwezig voor jong en oud. Zo beschikt het park over een buitenzwembad met glijbaan, een midgetgolfbaan, meerdere speeltuinen en verschillende sport- en speelvelden. Daarnaast zijn er praktische voorzieningen zoals een eetcafé, snackbar, parkshop met broodjesservice en fietsverhuur.

De omgeving staat bekend om haar rust en ruimte en biedt volop mogelijkheden om te wandelen en fietsen door de prachtige Drentse natuur. Voor een dagje uit, liggen steden zoals Emmen en Assen op korte afstand, waar je terecht kunt voor winkels, restaurants en verschillende attracties. Hierdoor vormt de omgeving een aantrekkelijke combinatie van natuur, ontspanning en voorzieningen binnen handbereik.

Bijzonderheden: 

In 2025 zijn de onderstaande werkzaamheden uitgevoerd
•	Laminaatvloer gelegd;
•	Nieuw aanrechtblad met marmerlook geplaatst;
•	Douche voorzien van een nieuwe radiator, nieuwe schuifwanden, een nieuwe douchekraan en het voeg- en kitwerk is opnieuw gedaan;
•	Nieuw wc-duoblok geplaatst;
•	Nieuwe cv-combiketel op propaangas geplaatst;
•	Binnenzijde van het chalet geschilderd en gesausd;
•	Tuin opnieuw aangelegd.

Verdere bijzonderheden:
•	Chalet geplaatst (2002);
•	Dak met bitumen dakbedekking en kunststof dakgoten;
•	Gevels uitgevoerd in kunststof platen met steenmotief;
•	Kunststof deuren en kozijnen;
•	Aan de voorzijde is de chalet voorzien van screens;
•	Net plafond met Agnes plafondplaten;
•	Keuken uit 2002, (moet een keer vervangen worden);
•	Badkamer deels vernieuwd, meubel en douchebak uit 2002;
•	Inpandige berging met opstelling van de cv-ketel;
•	Meterkast met drie groepen (meters buiten het chalet geplaatst);
•	Vrijstaand houten schuurtje aanwezig, (onderhoud is nodig);
•	Gelegen op een rustige plek op het park;
•	Permanente bewoning is niet toegestaan.

Op recreatiepark De Tien Heugten is het campingreglement van toepassing. De parkbijdrage bedraagt circa € 2.600,- per jaar. De parkbijdrage wordt per kwartaal in rekening gebracht. Deze bijdrage is onder andere voor: rioolrecht, afvalstoffen, gebruik van de slagboom, tv-aansluiting en het gebruik van het zwembad.

Aanvaarding in overleg.

Dus ben je op zoek naar een mooie chalet in Drenthe? Maak dan een afspraak voor een bezichtiging. Wij laten jou de chalet graag zien.

Meer informatie? Kijk op Westdorperstraat29-361.nl

Proclaimer:
Zwanenburg Makelaardij is verantwoordelijk voor de inhoud van deze informatie en doet er alles aan deze actueel en juist te houden. Je kunt ervan uitgaan dat de teksten, kenmerken en maatvoeringen met de grootste zorgvuldigheid zijn opgesteld en berekend. Kom je desondanks toch iets tegen dat niet correct of verouderd is, dan stellen wij jouw reactie bijzonder op prijs.

Features