| Price | €695,000 |
| Type of residence | Apartment, maisonette, apartment |
| Liveable area | 139 m² |
| Acceptance | By consultation |
| Status | Sold |
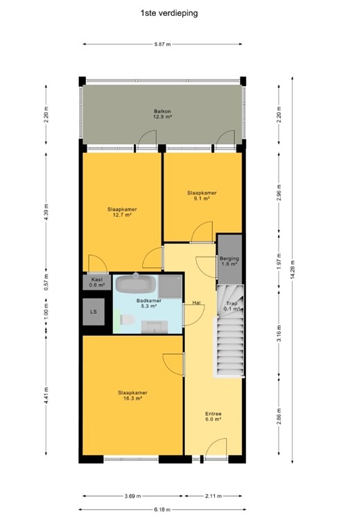
Now for sale: Abdijtuinen 132 in Veldhoven A breathtaking, unobstructed view from this maisonette brings colour to life and combines luxury and comfort with a focus on sustainability. This 4-room maisonette features two large southwest-facing balconies, 3 bedrooms, a private storage room and its own parking space in the basement of the complex. The apartment is located on the ninth and eighth floors and is accessible via two official entrances, both equipped with a lift and stairwell.
Central entrance Covered central entrance with doorbell panel (with videophone), mailboxes and a remotely operated entrance door. Spacious hall with access to several ground-floor apartments, the lift and the stairwell. 9th floor – access to the apartment A wide gallery provides access to the apartment at number 132. A spacious, bright and inviting hallway provides access to three bedrooms, the bathroom, a storage room and the staircase leading to the 8th floor (the living level). The bedrooms are pleasantly spacious and feature underfloor heating and cooling. Two of the bedrooms are located on the balcony side and therefore have access to the balcony on this floor. A third bedroom is situated on the gallery side. The bathroom is fully tiled and equipped with a freestanding bath with shower fittings, a walk-in shower, a wall-mounted toilet and a washbasin in vanity unit. The storage room offers connections for the washing machine and dryer. The balcony provides an unobstructed view from both the bedrooms and the balcony itself and is fitted with electrically operated sunshades. 8th floor – the living level Contrary to what you might expect, the living level is reached from the 9th floor via a comfortable staircase. From the staircase you reach the open kitchen, the living room with access to the balcony, and a small hall leading to the guest toilet and the technical room. This floor also features underfloor heating and cooling. The spacious and luxurious open-plan kitchen-diner is located on the northeast side of the building, equipped with every conceivable built-in appliance, and consists of a wall-mounted section and a cooking island. The living room is located on the southwest side of the building and offers access to a second large balcony with glass sliding panels and electrically operated sunshades. This is a wonderful place to relax from early spring to late autumn while enjoying the particularly beautiful view. A small hall provides access to the fully tiled guest toilet with washbasin and wall-mounted toilet. From this hall, the technical room is also accessible, which, in addition to internal storage space, houses the fuse box, the geothermal heat pump and the mechanical ventilation system. Parking basement with private storage room The parking basement is accessible from Abdijtuinen street via a wide, remotely operated entrance gate. The garage has private parking spaces, visitor parking spaces and rentable parking spaces. The apartment at Abdijtuinen 132 includes 1 private parking space; a second one is currently rented by the owners. The parking basement also provides access to the private storage room. Of course, the parking basement is also reachable from within the complex via lifts and several stairwells.
Location The apartment is beautifully and very conveniently located in central Veldhoven, near major roads and with all conceivable amenities within short distance (City Centre with shops, theatre and cinema, restaurants, town hall, library, indoor swimming pool, sports hall, etc., as well as the Mira shopping centre and the Kromstraat). It also offers excellent accessibility by car, public transport or bicycle to ASML, the High Tech Campus, Maxima Medical Centre and Eindhoven Airport. Key features • Built in 2009 – Living area: 139 m² • Very sustainably constructed and equipped with a geothermal heat pump • Underfloor heating and cooling on both levels, individually adjustable per room • Two spacious balconies with beautiful, unobstructed views • Luxury kitchen and bathroom • Electrical installation built according to the flexible Kiss system • Well-maintained complex with attractive surroundings and a healthy homeowners’ association (VvE) In short: More than worth your visit. Schedule a non-binding viewing and see for yourself. This is your chance to become the owner of a high-quality apartment equipped with every imaginable comfort! You are most welcome!
| Reference number | 05919 |
| Asking price | €695,000 |
| Service costs | €298.08 |
| Status | Sold |
| Acceptance | By consultation |
| Last updated | 24 January 2026 |
| Type of residence | Apartment, maisonette, apartment |
| Floor | 9th floor |
| Type of construction | Existing estate |
| Accessibility | Seniors |
| Construction period | 2009 |
| Roof materials | Bitumen |
| Rooftype | Flat |
| Isolations | Anchor free cavity wall Cavity wall Floor Full Wall |
| Floor Surface | 139 m² |
| Content | 481 m³ |
| External surface area storage rooms | 19 m² |
| External surface area | 26 m² |
| Balcony | 26.23 m² |
| Number of floors | 2 |
| Number of rooms | 4 (of which 3 bedrooms) |
| Number of bathrooms | 1 (and 1 separate toilet) |
| Location | Near highway Near public transport Near school On a quiet street Residential area Unobstructed view |
| Energy certificate | A |
| Number of parking spaces | 1 |
| Number of covered parking spaces | 1 |
| Water heating | Geothermal |
| Heating | Floor heating Geothermal Heat pump Heat recovery system |
| Ventilation method | Balnced ventilation Mechanical ventilation Natural ventilation |
| Bathroom facilities | Bath Shower Sink Toilet Washbasin furniture |
| Parking | Underground garage |
| Has a balcony | Yes |
| Has cable TV | Yes |
| Has an elevator | Yes |
| Has fibre optical cable | Yes |
| Has a phone line | Yes |
| Has an internet connection | Yes |
| Has a storage room | Yes |
| Has sliding doors | Yes |
| Has ventilation | Yes |
| Registered at Chamber of Commerce | Yes |
| Annual meeting | Yes |
| Periodic contribution | Yes |
| Reserve fund | Yes |
| Long term maintenance plan | Yes |
| Maintenance forecast | Yes |
| Home insurance | Yes |
| Cadastral designation | Veldhoven A 5094 |
| Area | 20,235 m² |
| Range | Condominium |
| Ownership | Full ownership |
| Index number | 1849 |
| Cadastral designation | Veldhoven A 5094 |
| Area | 20,235 m² |
| Range | Condominium |
| Ownership | Full ownership |
| Index number | 1183 |
| Cadastral designation | Veldhoven A 5094 |
| Area | 20,235 m² |
| Range | Condominium |
| Ownership | Full ownership |
| Index number | 1100 |