Description

Prachtige vrijstaande 12-Persoons recreatiewoning met eigen steiger aan het meer!

Deze 12 persoons unieke kans ligt in het prachtige Westerwolde, aan De Vennen 103-105 te Vlagtwedde en biedt moderne gemakken, een eigentijdse uitstraling en een uitstekend rendement. Of je nu een jong gezin, een groep vrienden of een rustzoekende oudere bent, dit huis voorziet in al je behoeften.

Rondom deze woning met een bouwjaar van 1994 bevindt zich een diepe tuin waarin je op elk moment van de dag kunt genieten van zon, schaduw en adembenemende vergezichten. Met een perceeloppervlakte van 616,00 m2 is er volop ruimte om te ontspannen en te genieten van het prachtige landschap. 

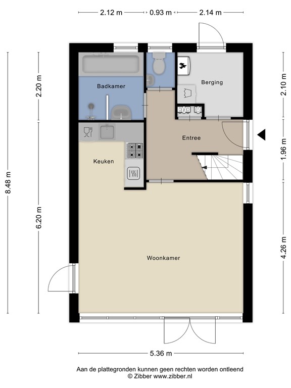
Bij binnenkomst in de woning ontdek je het unieke concept van twee gezellige woonkamers, elk met een praktische halfopen keuken. De openslaande deuren leiden naar het heerlijke terras, waar je kunt genieten van het buitenleven en het panoramische uitzicht over het binnenmeer. Dankzij de vele ramen aan de achterzijde van de woning is er een overvloed aan natuurlijk licht, waardoor het geheel nog ruimtelijker aanvoelt. 

Op de begane grond bevinden zich tevens twee bergingen, twee aparte toiletten, en twee nette badkamers met een ieder een bad, douche en wastafelmeubel. Voor extra gemak is er beide bergingen een aansluiting voor een wasmachine aanwezig.

De eerste verdieping herbergt maar liefst 12 eenpersoonsbedden verdeeld over zes comfortabele slaapkamers, waarvan vier met een dakkapel en er is een extra toilet aanwezig. Met voldoende ruimte voor het hele gezin is er altijd wel een plekje om tot rust te komen na een dag vol avontuur. De kunststof kozijnen en dubbelglas zorgen voor isolatie en onderhoudsgemak.

Deze woning is recentelijk grotendeels gerenoveerd en wordt volledig gemeubileerd verkocht, waardoor deze direct klaar is voor verhuur. Met een goede onderhoudsstaat, kunststof kozijnen en een prachtig uitzicht over het binnenmeer is het geen wonder dat deze woning zeer geliefd is bij jonge gezinnen en visliefhebbers. Daarnaast biedt de ligging aan het binnenmeer met privésteiger volop mogelijkheden om te zwemmen en diverse watersportactiviteiten te ondernemen.

Uniek aan dit object is dat de twee delen gescheiden zijn door een tussendeur in de woonkamer, waardoor de woningen naast dat het voor 12 personen verhuurd kan worden ook in de verhuur gebruikt kan worden als twee afzonderlijke 6 persoons woningen. Dit vergroot de verhuurmogelijkheden en maakt het rendement nog aantrekkelijker. 


Welkom bij Parc Emslandermeer!

Dit prachtige park zit boordevol voorzieningen waar jonge gezinnen, groepen en ouderen allemaal hun hart kunnen ophalen. Haal een frisse duik in het subtropische zwembad, dat alles heeft wat je nodig hebt: een wedstrijdbad van 25 meter, een peuterbad om veilig te plonsen, een bubbelbad om lekker te ontspannen en zelfs een stroomversnelling met glijbaan voor de echte durfals. En als je echt wilt ontspannen, kun je een bezoek brengen aan het saunacomplex (tegen betaling). Hier kun je helemaal tot rust komen en jezelf verwennen.

Maar er is meer! Ga naar restaurant Roegh en laat je culinair verwennen terwijl je geniet van een adembenemend uitzicht over de golfbaan van GC Westerwolde. Voor de kinderen zijn er diverse speeltuinen en zelfs een jeu de boules baan waar ze zich kunnen vermaken. Er is hier echt genoeg te beleven, zowel op het park als in de prachtige omgeving!


Wonen en recreëren!

Wat betreft wonen, het is helaas niet toegestaan om permanent te wonen op deze kavel. Maar we hebben goed nieuws! Je kunt de woning wel verhuren als recreatiewoning via verschillende bedrijfsmatige exploitatiemogelijkheden op het park, zoals VBN-Karperbungalow Nederland, Bungalowpark Emslandermeer (Emsland Verhuur) en Hoogenboom Vakantieparken/Roompot. Als alternatief kun je de woning ook voor eigen gebruik behouden als tweede woning. Wil je meer weten over verhuur en het gebruik als tweede woning? Neem dan contact op met ons makelaarskantoor en we vertellen je graag meer.
De woning is momenteel verhuurd via VBN-Karperbungalow Nederland. Voor specifieke informatie hierover kun je contact opnemen met de makelaar. 


Vlagtwedde en omgeving

Maar het park is niet het enige wat deze regio te bieden heeft. Op korte afstand van Parc Emslandermeer bevindt zich het bruisende Vlagtwedde, waar je alle voorzieningen vindt die je nodig hebt. Ga winkelen in diverse winkels, doe boodschappen bij grote supermarkten en geniet van gezellige eetgelegenheden. En dat is nog niet alles! Westerwolde is een paradijs voor toeristen, dus er is genoeg te ontdekken. Bezoek het historische Bourtange, maak prachtige fiets- en wandelroutes en ontdek talloze culturele schatten. Bij de receptie op het park en bij ons makelaarskantoor kunnen we je meer informatie geven over de vele mogelijkheden en activiteiten in de omgeving.
Laat je betoveren door deze prachtige locatie! Ben jij klaar voor een unieke woonervaring in het schitterende Westerwolde? Deze vrijstaande woning aan De Vennen 103-105 in Vlagtwedde is de perfecte investeringskans voor diegenen die op zoek zijn naar een ruime groepswoning met verhuurmogelijkheden. Wacht niet langer en maak een afspraak om deze prachtige woning te bezichtigen op Parc Emslandermeer. Onze enthousiaste makelaars staan klaar om je alle informatie te geven die je nodig hebt. Tot snel!


Hieronder een kleine opsomming van bijzonderheden;

•	Ruime woning aan het binnenmeer gelegen
•	Vrijstaand
•	Ingericht voor 12 personen
•	Gedeeltelijk gerenoveerd 
•	Goed rendement 
•	Kunststof kozijnen
•	Prachtig uitzicht
•	Steiger
•	Tweede keuken
•	Tweede en derde toilet
•	Tweede badkamer
•	Ook te verhuren als twee 6 persoons bungalows

Features