Description

Prachtige Twee-onder-een-kapwoning met veel rendabele mogelijkheden op Parc Emslandermeer!

Welkom bij deze unieke kans op een eigen recreatiewoning op het idyllische Parc Emslandermeer, gelegen in het adembenemende Westerwolde. Deze schitterende woning bevindt zich in één van de mooiste gebieden van Groningen en biedt een ongeëvenaarde woonervaring voor zowel jonge gezinnen als ouderen die op zoek zijn naar rust en ontspanning.

Deze ruime recreatiewoning, gelegen aan De Vennen 103 te Vlagtwedde en met een bouwjaar van 1994 biedt deze woning moderne gemakken en een eigentijdse uitstraling. De woning is omringd door een diepe tuin met steiger, waardoor je altijd kunt genieten van het uitzicht, zon en schaduw.

De woning heeft een woonoppervlakte van ongeveer 76 m2 en is ideaal voor de doelgroepen van dit prachtige park, namelijk jonge gezinnen en ouderen. Daarnaast is de woning goed onderhouden en recentelijk grotendeels gerenoveerd, voorzien van kunststof kozijnen waardoor er weinig onderhoud aan de buitenzijde van de woning is en wordt volledig gemeubileerd verkocht, dus direct klaar voor verhuur.

De woning ligt zeer centraal en heeft in de nabije omgeving een speeltuin en aan de achterzijde van de woning een prachtig uitzicht over het binnenmeer vanaf uw terras. De faciliteiten zijn op loop/fietsafstand te bereiken is, zoals o.a. het hoofdgebouw, restaurant en zwembad. 
Aan de voorzijde van de woning is er een eigen parkeerruimte, zodat je altijd gemakkelijk je auto kwijt kunt. 

Een absolute parel van deze woning is de ligging aan het binnenmeer, compleet met uw eigen privésteiger. Deze locatie maakt de woning zeer geliefd bij jonge gezinnen en visliefhebbers. Het binnenmeer, dat provinciaal gekeurd zwemwater biedt en fantastische vismogelijkheden, vormt het centrale punt van het park. Hier kunt u ontspannen genieten van het panoramische uitzicht en volop plezier beleven aan diverse activiteiten op het water.

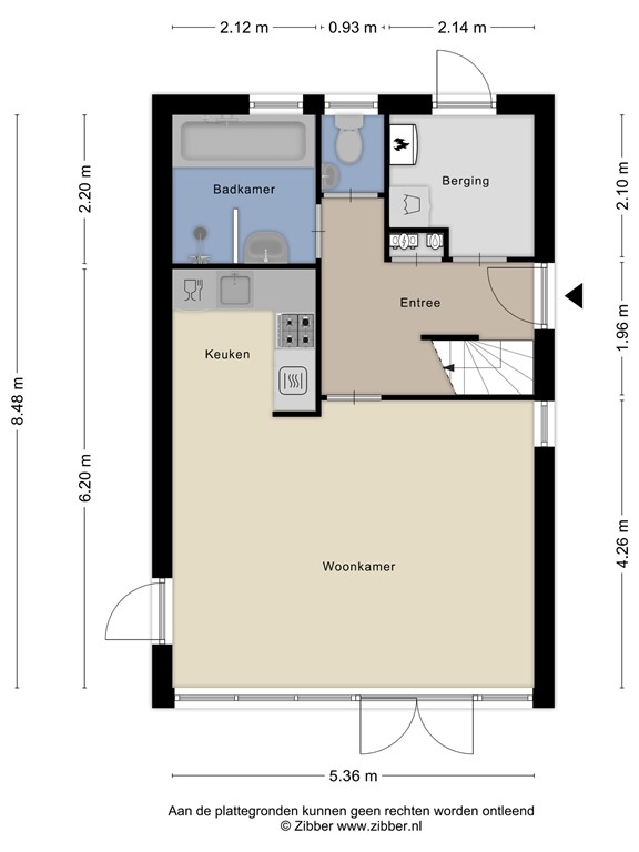
Op de begane grond bevindt zich de gezellige woonkamer met een praktische halfopen keuken. De openslaande deuren leiden je naar het heerlijke terras, waar je kunt genieten van het buitenleven. Dankzij de vele ramen aan de achterzijde van de woning is er een overvloed aan natuurlijk licht, waardoor het geheel nog ruimtelijker aanvoelt. Daarnaast vind je op de begane grond een hal met een apart toilet, een nette badkamer met bad, douche en wastafelmeubel, een berging met CV opstelling en aansluiting voor de wasmachine, en de trap naar de eerste verdieping.

Op de eerste verdieping bevinden zich maar liefst 3 slaapkamers, waarvan 2 met een dakkapel. Deze kamers bieden voldoende ruimte voor het hele gezin. Daarnaast zijn de kunststofkozijnen en dubbelglas een extra pluspunt van deze woning.

Uniek aan dit object is de tussendeur in de woonkamer, welke leidt naar de buurwoning, De Vennen 105. Hierdoor kunnen deze woningen samen als een grote 12 persoons accommodatie worden verhuurd, of juist als twee afzonderlijke 6 persoons woningen. Dit vergroot de verhuurmogelijkheden en maakt het rendement nog aantrekkelijker. De woningen zijn ook als packagedeal in een te koop met een vraagprijs van € 335.000 k.k.

De woning wordt op dit moment verhuurd via VBN- Karperbungalow Nederland. Voor meer informatie hierover kunt u zich wenden tot de makelaar.  


Vele voorzieningen op het park om van te genieten

Parc Emslandermeer biedt een scala aan faciliteiten om uw verblijf nog aangenamer te maken. Neem een verfrissende duik in het subtropische zwembad, dat beschikt over een 25-meter wedstrijdbad, peuterbad, bubbelbad en stroomversnelling met glijbaan. Voor ontspanning kunt u terecht in het saunacomplex (tegen betaling). Verwen uzelf met een heerlijke maaltijd en drankje in restaurant Roegh, waar u kunt genieten van een prachtig uitzicht over de golfbaan van GC Westerwolde. Voor kinderen zijn er diverse speeltuinen en zelfs een jeu de boules baan. Kortom, er is genoeg te beleven op het park en in de omgeving!

Helaas is permanente bewoning op deze kavel niet toegestaan. De woning kan echter wel worden verhuurd als recreatiewoning via verschillende bedrijfsmatige exploitatiemogelijkheden op het park, zoals VBN-Karperbungalow Nederland, Bungalowpark Emslandermeer (Emsland Verhuur) en Hoogenboom Vakantieparken/Roompot. Tevens bestaat de mogelijkheid om de woning te behouden voor eigen gebruik als tweede woning. Voor meer informatie over verhuur en het gebruik als tweede woning kunt u contact opnemen met ons makelaarskantoor.


Ontdek alles wat Vlagtwedde te bieden heeft

Het bruisende Vlagtwedde, op korte afstand van het park, biedt alle voorzieningen die u nodig heeft. Hier vindt u grote supermarkten, diverse winkels en gezellige eetgelegenheden. Het gebied Westerwolde is een paradijs voor toeristen, met bezienswaardigheden zoals het historische Bourtange, prachtige fiets- en wandelroutes en talloze culturele schatten. Bij de receptie op het park, evenals bij ons makelaarskantoor, kunt u terecht voor meer informatie over de vele mogelijkheden en activiteiten in de omgeving.


Kom langs en laat u betoveren door deze prachtige locatie!

Bent u klaar voor een unieke woonervaring in het schitterende Westerwolde? 
Kortom, deze half vrijstaande woning aan De Vennen 103 in Vlagtwedde is een geweldige investeringskans voor diegenen die op zoek zijn naar een ruime eengezinswoning met verhuurmogelijkheden. Ben jij klaar om te genieten van al het moois dat deze woning te bieden heeft? Aarzel niet langer en maak een afspraak om deze prachtige woning te bezichtigen op Parc Emslandermeer. 

Laat u verrassen door de adembenemende omgeving en ervaar de charme van dit betoverende park. Wij staan klaar om u alle informatie te geven die u nodig heeft. Tot snel!


Hieronder een kleine opsomming van bijzonderheden;
•	Ruime woning aan het binnenmeer gelegen
•	Half vrijstaand
•	Ingericht voor 6 personen
•	Gedeeltelijk gerenoveerd 
•	Goed rendement 
•	Kunststof kozijnen
•	Prachtig uitzicht
•	Steiger
•	Mogelijkheid tot packagedeal met De Vennen 105

Features