Description

Stijlvolle maisonnette met privé parkeerplaats en berging in parkeergarage. 
Heerlijk licht, drie ruime balkons en vrij uitzicht tot aan de duinen. Deze uitstekend onderhouden, 3-kamer maisonnettewoning is gelegen aan de rand van de populaire buurt Park Duinwijk, welke is gelegen op slechts minuten loopafstand van het centrum, het strand en het NS-station.Ook het Circuit van Zandvoort is ook op twee minuten loopafstand.De woning is voorzien van een laminaatvloer op de eerste verdieping met knusse eetkamer aan de voorzijde en royale zitgelegenheid aan de achterzijde. Via de openslaande deuren kom je op het eerste terras gelegen op het oosten met uitzicht over de wijk. De eerste etage is voorzien van 2  slaapkamers en een moderne badkamer met tevens 2 ruime terrassen. Daarnaast is de gehele woning voorzien van gestucte wanden en plafonds en heeft het energielabel A.De open keuken ligt tussen de woonkamer en eetkamer in en is voorzien van diverse inbouw apparatuur. In de badkamer vind je het tweede toilet, een ligbad, wastafel en een douchecabine.

Zandvoort, gelegen aan de Noordzeekust, staat bekend om zijn brede stranden en gezellige boulevard. Met diverse restaurants, winkels en recreatiemogelijkheden in de buurt, biedt Zandvoort een levendige en aantrekkelijke omgeving om te wonen en te ontspannen.

LET OP!
DE BEZICHTIGINGSDAGEN ZIJN:
WOENSDAG 15 OKTOBER 2025 VAN 10.00 UUR TOT 15.00 UUR
VRIJDAG 17 OKTOBER 2025 VAN 10.00 UUR TOT 15.00 UUR
Plan je bezichtiging in bij Jansen & Biesot makelaardij op nummer 023-66 66 66 6

Layout

Begane grond Entree met bellentableau en trap naar de eerste verdieping.

First floor

Entree;  toilet met fontein met daarnaast gelegen een ruime berging met aansluiting voor wasmachine, droger en stadsverwarmingsinstallatie. Aan de achterzijde is het woongedeelte met hoge ramen en een openslaande deur naar het eerste balkon met vrij uitzicht. De halfopen  keuken met diverse luxe inbouwapparatuur zoals een vaatwasser (2025), oven en koel/vriescombinatie, en een  kookplaat (2025) met afzuigkap ligt tussen de woonkamer en eetkamer in. Aan de straatzijde is de ruime eetkamer met openslaande deuren en een frans balkon. Vanuit de eetkamer is er de trap naar de tweede verdieping. .

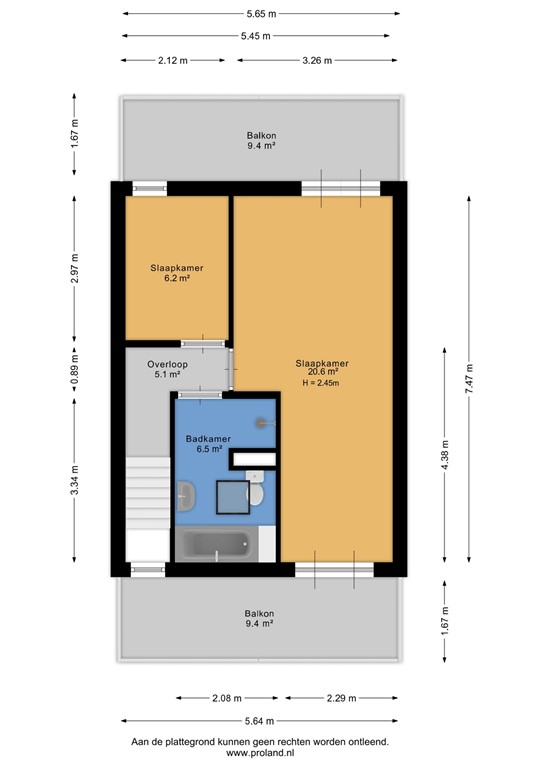
Second floor

Overloop met toegang naar de ruime badkamer met inloopdouche, wastafel, toilet en ligbad. Grote slaapkamer aan de voorkant met openslaande deuren naar het ruime balkon op het westen waar je in de avond een  prachtig zicht op de ondergaande zon hebt en aan de andere zijde heb je de deur naar het ruime 2de balkon op het oosten waar je in de ochtend kunt genieten van de zonsopgang boven de duinen. De tweede slaapkamer ligt aan de achterkant.

Details

* Energielabel A
* Op loopafstand van het strand, het station en het centrum
* Eigen berging en parkeerplaats in de ondergelegen garage
* Terras op het Westen en Oosten
* Servicekosten €174,59 p.m.
* De woning heeft diverse franse balkons

Features