Beschrijving

MOOI APPARTEMENT IN HARTJE CENTRUM MET FRAAI DAKTERRAS!

Op de eerste verdieping van dit markante pand bevindt zich dit compleet gerenoveerde appartement. Het appartement heeft een oppervlakte van ca. 55 m2 en beschikt aan de achterzijde over een dakterras. Het dakterras is afgewerkt met fraaie, onderhoudsarme vlonders. Vanaf het dakterras kijkt u uit op de raadszaal van de gemeente Culemborg en de stadstuin.

Het appartement is gelegen aan een rustige, gezellige straat in het centrum van Culemborg. Het centrum kenmerkt zich door een veelvoud aan historische panden en een gezellig marktplein met terrassen en een gevarieerd winkelaanbod. De Herenstraat is een autoluwe straat op een steenworp afstand van de markt. Het station, de uiterwaarden en basisscholen bevinden zich allen op fiets- of loopafstand.
Dit pand werd oorspronkelijk gebouwd in het begin van de vorige eeuw en is de afgelopen periode grootschalig verbouwd en opnieuw ingedeeld. Tot enkele jaren geleden bevond zich op de begane grond een fietsenmaker en op dit moment bestaat het pand uit 6 appartementen.

Condities verhuur: 
- Huurprijs per maand € 1.350,- inclusief servicekosten, exclusief gas, water, licht en internet,
- Huurperiode minimaal 1 jaar, maar de intentie is om langere termijn te blijven wonen,
- Oplevering en huurcondities in overleg en na goedkeuring van de verhuurder en huurderscheck,
- Huurder dient middels recente salarisstroken of een werkgeversverklaring aan te tonen dat het (gezins-) inkomen minimaal € 4.050,- bruto per maand bedraagt,
- Indien het inkomen niet toereikend is kom je niet in aanmerking voor de huur van de woning,

PROCEDURE
-	Het appartement is beschikbaar per vrijdag 10 april
-	Geselecteerde kandidaten zijn welkom voor een kijkmoment op zaterdag 4 april om 9:00 uur (ALLEEN OP UITNODIGING)
-	Om je aan te melden voor het kijkmoment zien wij graag de volgende gegevens voor 1 april 16:00 uur.
Foto bewoners, Huidige woonplaats, Financiële gegevens
-	Op 2 april word je geïnformeerd of je geselecteerd bent voor het kijkmoment!

Indeling

De fraaie voordeur is vanuit elk appartement te openen en geeft toegang tot de centrale hal met toegang tot twee appartementen en de trapopgang naar de andere appartementen. In de centrale hal bevinden zich de brievenbussen en de centrale meterkast.

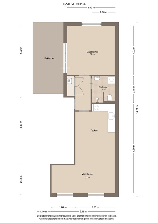
Eerste verdieping

Op de eerste verdieping geeft een halletje toegang tot Herenstraat 6c. Aan de voorzijde van het appartement bevindt zich de woonkamer met open keuken. De woonkamer heeft een hoogte van ca. 3 meter. De plafonds zijn afgewerkt met pleisterwerk en op de vloer ligt een mooie laminaatvloer.
De open keuken is uitgevoerd in een moderne kleurstelling en uitgerust met een vaatwasser, een koelkast, een afzuigkap en een gaskookplaat. Het dakterras heeft een oppervlakte van ca. 13 m2.
Aan de voorzijde bevindt zich de slaapkamer. Ook hier is het plafond lekker hoog en afgewerkt met pleisterwerk. De ramen rondom met uitzicht op je dakterras en stadstuin zorgen hier voor voldoende daglicht.
Naast de slaapkamer tref je de badkamer. De badkamer heeft tot 1,8 meter wandtegels en de vloer is afgewerkt met vloertegels. De badkamer beschikt over een toilet, douche, een vaste wastafel en de aansluiting voor de wasmachine.

Balkon

Het dakterras heeft een oppervlakte van ca. 15 m2

Bijzonderheden

Het appartement is volledig geïsoleerd en beschikt over hardhouten kozijnen met dubbele beglazing. Het hang- en sluitwerk is conform het meest recente bouwbesluit.
Het kleinschalige complex beschikt over een voordeur met centrale vergrendeling met intercom installatie.

Culemborg is een historische stad aan de Lek, waar je kunt genieten van zowel de rijke geschiedenis als moderne voorzieningen. Met ongeveer 28.000 inwoners is het een levendige stad met een breed aanbod aan winkels, restaurants en culturele activiteiten. Het oude stadscentrum heeft prachtige monumenten, zoals de stadsmuren en poorten, en biedt een gezellige sfeer met terrassen en boetieks.
Culemborg heeft een breed scala aan sportverenigingen. De stad heeft ook een NS-station, waarmee je binnen 15 minuten in Utrecht bent. Met de auto ben je via de A2 snel in Utrecht of Den Bosch, waardoor het een ideale plek is voor forenzen. Culemborg biedt een uitstekende combinatie van stedelijke gemakken, een centrale ligging en de charme van een historische stad aan het water.

Kenmerken