Beschrijving

WOW
 
Alleen al voor het uitzicht op die bedrijvige Dordtse Kil 'zou je het doen'. Met bijna 35 jaar ervaring in het makelaars vak ben je wel wat gewend zou je zo zeggen, maar plekjes en uitzichten als hier, dat went nooit. Je staat er versteld van het formaat en de hoeveelheid schepen dat hier voorbijkomt.
 
Het is 1 groot levend schilderij dat nooit verveelt. Hier zie je vanuit je woonkamer of vanaf het balkon aan voorzijde elke morgen de zon op komen over de rivier, aan achterzijde kunt u genieten van de ondergaande zon! 
 
Maar er is meer! Deze heerlijk ruime drive-in woning met 5  slaapkamers is gebouwd in 1967 en werd in 2020 volledig gemoderniseerd door een ambachtslieden en aannemers (de muur tussen woonkamer en keuken werd verwijderd, er werd een nieuwe Bruynzeel inbouwkeuken geplaatst, de wanden werden gestuukt, de badkamer vergroot en vernieuwd, de trappen werden vervangen, er werden nieuwe radiatoren in de woonkamer, hal en badkamer geplaatst, de meterkast werd vernieuwd evenals de water- en elektraleidingen. 
 
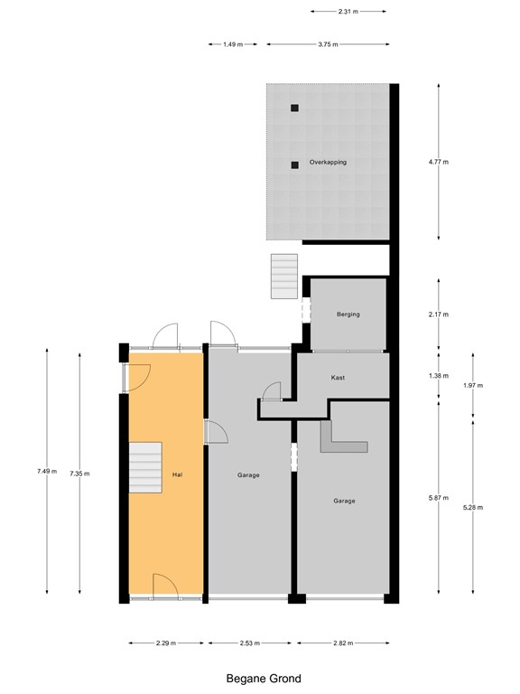
De woning is voorzien van maar liefst 2 inpandige garages (samen 41 m²), de grond voor die garages is door mijn opdrachtgevers bijgekocht, dus u kunt de garages ook gebruiken om lekker te klussen, of uw boot/motor(verzameling)/oldtimer/aanhanger te stallen en de grond voor de garages gebruiken om te parkeren (er zijn overigens ook nog een behoorlijk aantal openbare parkeerplaatsen op het plein).

De bruto inhoud is 522 m³, de gebruiksoppervlakte wonen 117 m² (exclusief gezamenlijke entree/hal en trappenhuis en exclusief garages), de overige inpandige ruimte 40 m↨, de gebouwgebonden buitenruimte 14 m².
 
Dan hebben we ook nog een bijna 30 meter diepe en goed verzorgde achtertuin, gelegen op het westen. Hier vindt u de hele dag een plekje in de zon. En wanneer u een beschut plekje prefereert, dan is daar al een heerlijke overkapping voor geplaatst in de tuin. De totale perceelgrootte maar liefst 342 m² eigen grond!!
 
Het bestaande Energielabel  -  door de vorige eigenaar aangeleverd voor de aankoop in 2020 - vertoont de letter B. Mijn opdrachtgever hebben nadien - in 2022 - 11 zonnepanelen (415 WP elk) laten leggen op het dak. De Nefit HR combiketel stamt uit 2017. Er is sprake van gevelisolatie en (op 1 slaapkamer na) overal dubbele beglazing, grotendeels in kunststof kozijnen. Het buitenschilderwerk aan de houten kozijnen is in 2025 uitgevoerd door een professionele schilder.
 
Dat de woning aan de buitenrand van het dorp is gelegen, dat is niet vermeldenswaardig, dat had u al lang op de foto's gezien, maar dat het maar 5 minuten lopen en 2 minuten fietsen is naar de winkels en 2 minuten lopen naar de sportfaciliteiten is minder zichtbaar. Met de auto rijdt u in 2 minuten naar de A16/N3, in nog geen 10 minuten naar die prachtige historische binnenstad van Dordrecht en in 20-25 minuten naar Rotterdam en Breda. En voor de hondenliefhebber (en hun trouwe viervoeter) is het elke dag weer een feest, om langs die mooie levendige rivier te wandelen. Kortom... voorzieningenniveau uitstekend, bereikbaarheid idem.
 
Dan hebben we ook nog eens een heerlijk ruim en speels ingedeeld huis. 'nummer 15 en 17' hebben een gezamenlijke entree met toegang tot de garages en een trapopgang, naar de tweede verdieping, waar nummer 17 aan de linkerzijde de ingang heeft en nummer 15 aan de rechterzijde. 
 
Het lijkt een tikkie apart om de indeling te beginnen op de tweede verdieping, maar in dit geval is dat wel het meest logisch! De tweede verdieping is de woonverdieping, die is als volgt ingedeeld: entree, hal met toilet en trap naar de slaapetages (de eerste en derde verdieping) en een mooie stalen schuifdeur naar die heerlijke bijna 7 meter brede (683 x 385) woonkamer met schuifpui naar het balkon en toegang tot de open keuken (359 x 329/230) met fraaie – in 2020 vernieuwde – inbouwkeuken v.v. apparatuur.  Woonkamer en keuken samen zijn ca. 33 m² groot, het voelt echter veel groter door dat magnifieke uitzicht.
 
Op de eerste etage bevinden zich een overloop, drie prima slaapkamers (380 x 338, 356 x 333 en 369 x 221 met toegang tot het balkon, groot 360 x 201 met trap naar de tuin) en de in 2020 vernieuwde moderne badkamer (310 x 163) met inloopdouche, tweede toilet en badkamermeubel met dubbele wastafel.
 
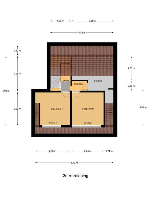
Op de derde verdieping, die vergoot is d.m.v. het realiseren van een dakopbouw, bevinden zich een overloop, bergruimte en de vierde EN vijfde slaapkamer (307 x 274 en 296 x 282, beide met dakkapel).
 
En om het dan helemaal onlogisch te maken.. op de begane grond had u reeds gelezen over de gedeelte entree en de garages. De ene garage is d.m.v. een doorgang bereikbaar vanuit de andere garage. Aansluitend aan de meest rechtse garage bevindt zich een berging met een loopdeur naar die zonnige mooie tuin.  
 
Vanwege de lokroep van de zon en het goede leven komt deze unieke woning nu op de markt, wacht niet te lang met reageren, deze woningen worden altijd zeer snel verkocht en de kans dat er binnenkort weer één te koop komt is bijzonder klein, mensen wonen hier graag, wonen hier fijn en wonen hier meestal heel lang en gelukkig!

Kenmerken