Beschrijving

Houd je van de levendigheid van de binnenstad en wil je wonen in een huis dat instapklaar is en karakter heeft? Dan zit je bij deze leuke jaren '30 woning goed! Het huis heeft leuke kenmerken uit de jaren '30: het ronde raam boven de voordeur, de uitbouw opzij van het huis, de halfronde voordeur en de kleine dakkapel. Ondanks de ligging vlakbij het centrum zijn de uitvalswegen goed bereikbaar. De ligging nabij het Prins Hendrikpark, de IJzeren Vrouw en diverse winkels en voorzieningen zijn op loopafstand. 
Goed onderhouden half vrijstaand woonhuis met berging, dakterras , keurig aangelegde voor- en achtertuin, lichte doorzonwoonkamer, nette keuken en vier slaapkamers. De woning is vrijwel geheel voorzien van isolatieglas en spouwisolatie.
Bouwjaar woonhuis: ca. 1938.
Inhoud woonhuis: ca. 425m3.
Woonoppervlakte: ca. 107m2, berging 7m2, dakterras 13m2.
Perceeloppervlakte: 124m2.
Aantal kamers: 5.
Aantal slaapkamers: 4.
Energielabel: E, er is een Energie Advies van de gemeente ’s-Hertogenbosch opgemaakt in april 2025.

Indeling

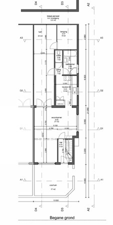
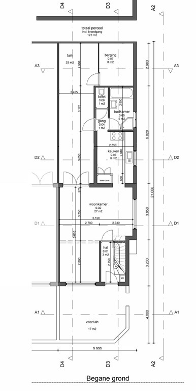
Begane grond
De entree biedt toegang tot de hal van de woning. In de hal vindt u de meterkast (6 groepen en aardlekschakelaar), een kelderkast en de , stijlvolle, trapopgang naar de eerste verdieping. Via de hal komt u in de woonkamer. In de doorzonwoonkamer (L-kamer) is voldoende ruimte voor het plaatsen van zowel een zit- als een eethoek. Door de grote ramen in de woonkamer is er veel lichtinval en de tuindeuren geven toegang tot de achtertuin. De keuken is ingericht met een modern keukenmeubel in een witte kleur met een antracietkleurig werkblad, v.v. Smeg 5 pits gasfornuis met oven, afzuigkap, inbouwkoelkast en vaatwasser. Er is voldoende ruimte voor plaatsen van een extra kast, ook is de keuken v.v. een vaste inbouwkast waarin tevens de cv-ketel is geplaatst (Remeha HR combi 2012). Aansluitend aan de keuken is een hal met toegang toilet en badkamer. De toiletruimte is v.v. een wandcloset en een fonteintje, afgewerkt in lichte kleuren. De badkamer is v.v. een ligbad met thermostaatkraan, een douchecabine met thermostaatkraan en glazenwand en een wastafel afgewerkt in lichte kleuren. Alle plafonds en wanden op de begane grond zijn voorzien van stucwerk en/of behang, op de vloeren ligt een houten planken vloer en in de keuken tegels.

Eerste verdieping

1e verdieping
Op de eerste verdieping vindt u de overloop en twee slaapkamers. De overloop is v.v. ramen met mooie lichtinval. De achterste slaapkamer is royaal (ca. 20m2) en heeft toegang tot het dakterras. De vloeren van de slaapkamers zijn afgewerkt met laminaat of planken, de plafonds en de wanden zijn v.v. stucwerk.

Tweede verdieping

2e verdieping
Met een vaste trap bereikbare overloop met opstelplaats witgoed in kasten. Op deze verdieping ook 2 slaapkamers v.v. dakkapellen en v.v. lichte wand- en plafondafwerking, de vloeren zijn afgewerkt met laminaat. De voorste slaapkamer is v.v. vaste kasten.

Balkon

Royaal dakterras grenzend aan de grote slaapkamer op de eerst verdieping, veel privacy een een heerlijk plekje om te genieten.

Tuin

Tuin
De op het noord-oosten gelegen achtertuin is keurig aangelegd met sierbestrating en perken en is te bereiken via een eigen achterom en v.v. een berging. De voortuin is ingericht met een tafel en is een fijne plek om van de middag- en avondzon te genieten.

Bijzonderheden

Algemeen
Deze praktisch ingedeelde woning met 4 slaapkamers verkeert zowel van binnen als van buiten in een goede staat van onderhoud. Veel authentieke details zijn bewaard gebleven, ook de paneeldeuren zijn nog aanwezig. De woning is grotendeels voorzien van HR isolatieglas en spouwmuurisolatie. Het dakterras is afgewerkt met vlonders. 
Ligging
De Lagelandstraat 16 is gelegen aan een fietsstraat en is gelegen in een rustige woonwijk, op korte afstand van het stadscentrum en het buitengebied met het Prins Hendrikpark en de IJzeren Vrouw in de nabijheid. Daarnaast vindt u in de directe omgeving o.a. scholen, speel- en sportvoorzieningen, winkels en uitvalswegen.

Nieuwsgierig geworden, bel voor het inplannen van een afspraak 0412-639982.

Kenmerken