Beschrijving

Unieke combinatie van wonen en werken.

Aan de Hulsbrookstraat 7 en 7a in Albergen wordt deze perfect afgewerkte en goed onderhouden vrijstaande semi-bungalow met kantoor en bedruifsruimten te koop aangeboden.

Het object combineert comfortabel wonen met functioneel ondernemen en het geheel is gelegen op een kavel van maar liefst ca. 1827 m2 in een rustige doodlopende straat.
 
Zowel de woning als de bedrijfsgebouwen verkeren in een uitstekende staat van onderhoud en bieden volop mogelijkheden.

Deze fraaie woning is voorzien van 4 slaapkamers en 2 badkamers. Door de slaapkamer met badkamer ensuite op de begane grond is de woning tevens levensloopbestendig.


Woning:

De woning heeft een woonoppervlak van ca. 169 m2 en een inhoud van ca. 686 m3. Rondom de woning ligt een fraai aangelegde, onderhoudsvriendelijke tuin met diverse terrassen, waarvan 1 overdekt. De hoge Leilinden in de achtertuin zorgen voor optimale privacy, terwijl de moestuin jaarlijks een rijke oogst oplevert.

Het geheel is goed bereikbaar door de brede oprit.

Indeling begane grond:

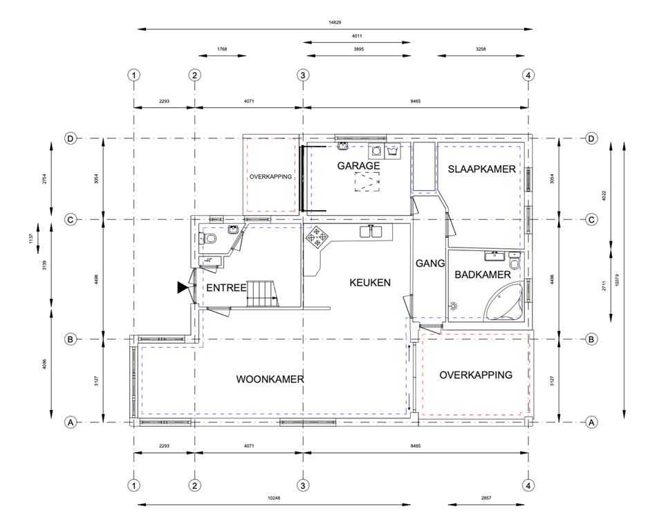
Royale entree met vloerverwarming, garderobe, gastentoilet en hardhouten trap naar de 1e verdieping, toegang tot de woonkamer met half open keuken.

Ruime woonkamer met visgraat parketvloer (afzeliahout), sfeervolle haard en veel lichtinval.

Aan de voorzijde van de woonkamer zijn de ramen voorzien van elektrische screens en aan de achterzijde van de woning zijn deze handmatig te bedienen.

Een schuifpui geeft toegang tot het overdekte terras.

De halfopen keuken is voorzien van moderne inbouwapparatuur, waaronder een inductiekookplaat, rvs-afzuigkap, combimagnetron, koelkast, vaatwasser en spoelbak.

Vanuit de keuken heeft u toegang tot de zeer ruime kelder en de gang (met airco) waaraan de inpandige garage/berging en de slaapkamer met ensuite badkamer zijn gelegen. Deze ruime ouderslaapkamer is voorzien van draai/kiep ramen met horren en handmatig te bedienen sreens, een vaste hang/leg kast met schuifdeuren en tv.

Een schuifdeur geeft toegang tot de badkamer die is voorzien van een wastafel met meubel, toilet, douchecabine en een whirlpool.

De inpandige garage/berging is voorzien van een elektrische roldeur, wasbak, verwarming, opstelling en aansluiting voor de wasmachine en droger en een vlizotrap met toegang tot de ruime bergzolder waar zich tevens de cv ketel bevindt.

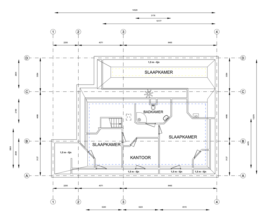
1e Verdieping:

Ruime overloop met vaste kastenwand en veel lichtinval. 3 slaapkamers waarvan 1 met een inloopkast en een 2e badkamer.  De grote “masterbedroom” beslaat de gehele achterzijde van de woning en heeft een inloopkast en tv aansluiting. De badkamer is voorzien van een wastafel, toilet en douchecabine. Een vlizotrap geeft toegang tot weer een bergzolder dus aan ruimte geen gebrek.


Bijzonderheden woning:
. Kunststofkozijnen met draai/kiepramen
. Gedeeltelijk vloerverwarming
. Professionele alarminstallatie
. Airconditioning
. Glasvezelinternet
. Energielabel A
. Recent binnen volledig geschilderd


Bedrijfsruimten:

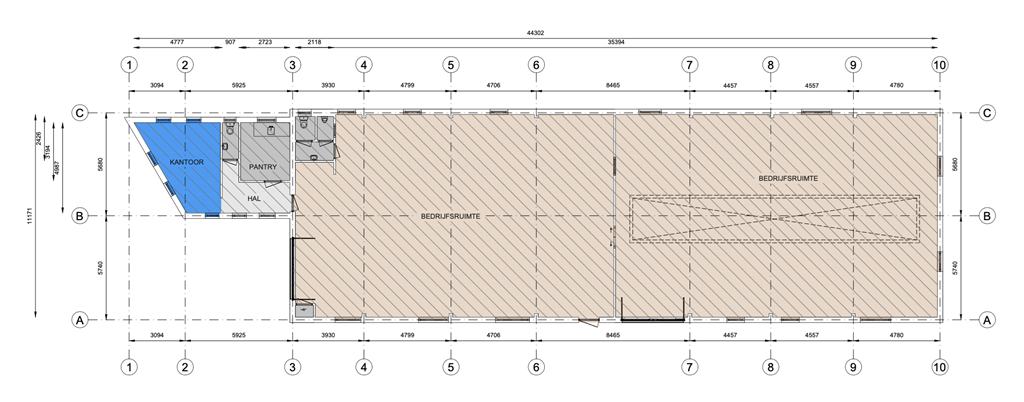
De bedrijfsruimten hebben een gezamenlijke oppervlakte van ca. 400 m2 en een vrije hoogte van ca. 4,7 meter.

Indeling: 

. Representatief kantoor (ca. 35 m2) met airco, tv-aansluiting, kantine en toiletruimte
. Kantine met nieuw keukenblok met koelkast etc.
. Toiletgroep met wasbak, apart toilet en apart urinoir.
. 2e toilet naast het kantoor.
. Twee bedrijfsruimten, beide voorzien van overheaddeur (4m hoog 3,5m breed).
. Bedrijfsruimten met betonnen vloer en extra loopdeur.
. Verwarming middels gasheaters.
. Achterste hal voorzien van lichtstraat en recent vernieuwd bitumendak.
. Eigen cv-installatie en groepenkast aanwezig.
. Mogelijkheid tot uitbreiding van de bedrijfsruimten aan de achterzijde.

Pluspunten van dit object:

. Wonen en werken op één locatie.
. Ruim perceel van ca. 1827 m2.
. Uitstekende staat van onderhoud.
. Representatieve uitstraling en moderne voorzieningen.
. Uitbreidingsmogelijkheden bedrijfsruimten.

Dit object biedt een unieke kans om wonen en ondernemen te combineren in een groene rustige omgeving, met uitstekende bereikbaarheid naar de omliggende plaatsen.

Kenmerken