Beschrijving

Zoek je naar een fijn familiehuis dan is Ganzerik 43 in Alblasserdam absoluut het overwegen waard. Deze aantrekkelijke tussenwoning uit 1982 mag zich met recht een ideale plek noemen voor starters, jonge gezinnen en doorstromers die ruimte, gemak en een centrale locatie belangrijk vinden! Even een wandeling maken naar de molens? Het kan evenals de basisscholen, speeltuinen en sportverenigingen die om de hoek liggen. Boodschappen doen? Je bent zo bij de supermarkt en andere praktische voorzieningen.

Wat meteen opvalt bij binnenkomst, is dat deze eengezinswoning verrassend ruim is ingedeeld. Met maar liefst vier slaapkamers kan ieder gezinslid zijn eigen plekje creëren. Perfect dus als je een (groot) gezin hebt, of als je graag een thuiswerkplek, gastenkamer of hobbyruimte tot je beschikking wilt. De lichte woonkamer grenst aan de achterzijde. Dankzij de grote ramen geniet je bovendien volop van daglicht.

Waar veel huizen het moeten doen met een bescheiden stukje groen, beschikt Ganzerik 43 maar liefst over een achtertuin van circa 66 m². En dan is-ie ook nog eens pal op het zuiden gelegen! Dat betekent: zon van ‘s ochtends vroeg tot ‘s avonds laat. Zie je jezelf al zitten, met vrienden en familie aan de gezellige eettafel op het terras? Of misschien droom je van een moestuin, speeltoestellen voor de kinderen of gewoon lekker loungen in een sfeervolle zithoek… De mogelijkheden zijn eindeloos.

Goed nieuws voor wie let op de energierekening: deze woning draagt een energielabel B. Dat voelt prettig, zowel voor het milieu als voor je portemonnee. Goede isolatie, dubbel glas en efficiënte installatie maken het mogelijk om comfortabel te wonen zonder verrassingen op de stookkosten. En met een perceel van 125 m² biedt de woning voldoende privacy en ruimte rondom, zonder dat het onderhoud je boven het hoofd groeit.

Het mooiste aan wonen aan de Ganzerik is toch wel de combinatie van rust en bereikbaarheid. Je woont hier in een van de fijne straatjes van Alblasserdam, terwijl uitvalswegen richting Dordrecht, Rotterdam en de Drechtsteden eenvoudig bereikbaar zijn. 

Ganzerik 43 is een instapklare, centraal gelegen tussenwoning waar je volledig tot je recht komt, of je nu aan het begin van je woon carrière staat, je eerste huis met het gezin zoekt, of een volgende stap wilt maken. Comfort, rust, ruimte en een zonnige tuin – het is allemaal binnen handbereik.

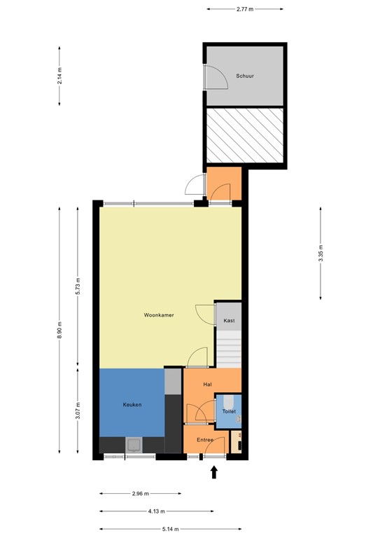
Indeling

Bij binnenkomst via de entree wordt u direct verwelkomd in een nette hal met toegang tot de toilet (separaat geplaatst), de trapopgang naar boven en de deur naar de leefruimte. De hal biedt voldoende ruimte voor een kapstok of garderobe.

Vanuit de hal loopt u door naar de woonkamer – een riante, lichte leefruimte. De grote raampartijen aan de achterzijde zorgen voor veel daglicht en een heerlijk gevoel van ruimte. Hier kunt u met gemak een ruime zithoek én eethoek creëren. Aansluitend bevindt zich een kleine hal (tochtportaal) naar achter buiten.

Aan de voorzijde van de woning ligt de open keuken. De keuken biedt voldoende werk- en kastruimte en kijkt uit naar de straatzijde. Het betreft een praktische hoek opstelling.

Eerste verdieping

Via de vaste trap bereikt u de overloop, die toegang geeft tot maar liefst drie volwaardige slaapkamers en de badkamer. De slaapkamers zijn prettig van formaat en heerlijk licht dankzij de raampartijen. Ideaal voor gebruik als kinder-, werk- of logeerkamer. Er is voldoende ruimte voor een tweepersoonsbed én kledingkast.

De badkamer is modern ingericht en compleet uitgevoerd. Hier beschikt u over een keurig afgewerkte inloopdouche, wastafelmeubel en een tweede inbouwtoilet.

De indeling van de verdieping is efficiënt en alles voelt praktisch én verzorgd aan, precies zoals u mag verwachten van een goede gezinswoning.

Tweede verdieping

De vaste trap brengt u naar de zolderverdieping, waar u op de voorzolder terecht komt. Hier vindt u onder andere de opstelplaats voor de technische installaties én ruimte voor wasmachine en droger. Een praktische plek die netjes te scheiden is van het woongedeelte.

Aansluitend bevindt zich de zolderkamer, een volwaardige ruimte met daglicht dankzij een dakraam. De kamer kan worden uitgebreid aan de hand van dakkapel en dakramen voor nog meer woonruimte.

Tuin

Welkom in deze heerlijke achtertuin – een echte verlenging van het woongenot! Dankzij de ligging op het zuiden geniet u hier de hele dag van de zon. Voor de warme dagen is er een zonwering aanwezig, zodat u altijd een prettig plekje in de schaduw kunt creëren.

De tuin heeft een mooie combinatie van bestrating en groene plantenbakken, wat zorgt voor een verzorgde én levendige uitstraling. Achterin bevindt zich een praktische stenen berging, ideaal voor het opbergen van fietsen, tuingereedschap of tuinmeubilair. Bovendien is de tuin via een achterom bereikbaar – erg handig voor dagelijks gebruik.

Kortom: een onderhoudsvriendelijke, zonnige tuin waar u nog jarenlang van kunt genieten!

Bijzonderheden

Kadastraal bekend; de eigendom van het woonhuis met berging, ondergrond, erf, tuin en verder aanbehoren aan de Ganzerik 43 te 2954 AA Alblasserdam, kadastraal bekend gemeente Alblasserdam, sectie C, nummer 2526, groot één are vijfentwintig centiaren;
•Eigen grond
•Bouwjaar: 1982
•Woonoppervlak: 107m² (inhoud: 332³)
•Kruipruimte isolatie
•Dubbelglas in houten kozijnen
•Zonwering aan de achterzijde
•CV ketel uit 2014
•Energielabel B geldig tot 10-11-2035
•Oplevering in overleg, kan snel.

•Er zal een ouderdomsclausule worden opgenomen in de koopakte voor deze woning.

•Ondanks dat grote zorgvuldigheid is betracht bij het samenstellen van de verkoopinformatie wordt voor de onjuistheid van de vermelde gegevens door de eigenaar noch door de verkopend makelaar enige aansprakelijkheid aanvaard.

•Rechtsgeldige koopovereenkomst pas ná ondertekening: Een mondelinge overeenstemming tussen de particuliere verkoper en de particuliere koper is niet rechtsgeldig. Met andere woorden: er is (nog) geen koop. Er is pas sprake van een rechtsgeldige koop als de particuliere verkoper en de particuliere koper de koopovereenkomst hebben ondertekend. Dit vloeit voort uit artikel 7:2 Burgerlijk Wetboek. Een bevestiging van de mondelinge overeenstemming per e-mail of een toegestuurd concept van de koopovereenkomst wordt overigens niet gezien als een ‘ondertekende koopovereenkomst’.

Kenmerken