Beschrijving

Ben je op zoek naar die gezellige plek waar je direct het gevoel van thuiskomen ervaart? Welkom bij Troelstrastraat 40! In deze heerlijke tussenwoning vind je volop ruimte én comfort. Een prachtige uitvalsbasis voor starters, jonge gezinnen of doorstromers die dromen van een fijne leefomgeving met alles binnen handbereik.

Zodra je binnenstapt, voel je de prettige sfeer. De lichte woonkamer biedt royaal de ruimte voor een sfeervolle zithoek én een eettafel waar vrienden graag aanschuiven voor een borrel of etentje. Dankzij de grote ramen valt het daglicht rijkelijk binnen. Er is genoeg plek om je favoriete woonaccessoires én dierbare herinneringen een mooie plek te geven. Vanuit de woonkamer heb je direct zicht op de groene, riante achtertuin.

Met vier ruime slaapkamers, waaronder een royale zolderverdieping met dakkapel, kunnen gezinsleden elk hun eigen plekje vinden. De kamers zijn flexibel in te delen: van kinder- of tienerkamer tot thuiskantoor of hobbyruimte. Kleine kinderen? Die hebben volop speelruimte, zowel binnen als buiten. Grotere kids zullen de privacy op zolder waarderen.

De achtertuin van maar liefst 83 m² is een echte blikvanger. Heerlijk diep, zonnig en met volop mogelijkheden voor tuinfeestjes, barbecues of een ontspannen zitje in de avondzon. Met een voortuin aan de straatzijde wordt het buitengevoel nog verder versterkt. Hier kunnen kinderen naar hartenlust spelen, terwijl jij geniet van groen en rust – een ongekende luxe, zo midden in het dorp.

Het energielabel C zegt het al: dit huis is niet alleen comfortabel, maar ook toekomstbestendig. Ideaal voor wie waarde hecht aan duurzaam wonen én lage energielasten. Dus, minder stookkosten en meer genieten!

De Troelstrastraat ligt in een rustige, kindvriendelijke buurt met alle voorzieningen om de hoek. Scholen, winkels, sportclubs en het openbaar vervoer – je vindt het allemaal op korte afstand. Alblasserdam staat bekend om de fijne woonsfeer en de uitstekende bereikbaarheid richting Rotterdam en de omliggende dorpen. Ideaal voor wie graag in een dorpse omgeving woont, zonder in te boeten aan bereikbaarheid.

Kortom: Troelstrastraat 40 biedt letterlijk en figuurlijk de ruimte om te groeien. Of je nu starter bent, samen een gezin wilt stichten of zoekt naar meer leefruimte – dit huis voelt als een warm thuis vanaf dag één. Trek je straks je eigen plan op een zonnig terras met uitzicht op je bloeiende tuin? Of wordt dit dé plek waar vrienden en familie zich direct thuis voelen? Hier liggen je kansen voor het oprapen.

Neem gerust contact op voor een bezichtiging, en wie weet word jij binnenkort de nieuwe bewoner van dit verrassend ruime familiehuis!

Indeling

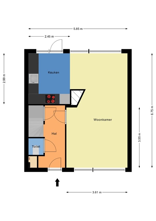
Bij binnenkomst via de voordeur betreed je de hal, die toegang biedt tot het toilet, de trapopgang naar de eerste verdieping en de woonkamer. De hal is praktisch ingedeeld en voorzien van voldoende ruimte voor een kapstok of schoenenkast.

Vanuit de hal stap je de ruime woonkamer in, die dankzij de grote raampartijen aan de achterzijde heerlijk licht is. Er is volop plek voor een comfortabele zithoek én een gezellige eethoek. De woonkamer biedt tevens toegang tot de achtertuin via de open keuken.

Aan de achterzijde van de woning bevindt zich de moderne keuken. Deze heeft een praktische hoek-indeling met voldoende werk- en bergruimte, een kookgedeelte met kookplaat en afzuigkap, vaatwasser en combi-oven en een vrijstaande koelkast.

Eerste verdieping

Via de vaste trap bereik je de overloop, die toegang biedt tot drie slaapkamers en de badkamer. En kan je ook via de vaste trap naar de zolder verdieping.

De hoofdslaapkamer bevindt zich aan de achterzijde van de woning en heeft met zijn royale afmeting met voldoende ruimte voor een tweepersoonsbed en een grote kledingkast.

Aan de voorzijde van de woning bevinden zich nog tweede fijne slaapkamer, ideaal als kinderkamer, werkkamer of hobbyruimte. De kamers hebben een prettige en praktische indeling voor elk gezinslid. De 3e slaapkamer aan de achterzijde is ook prima qua formaat voor een goede slaapkamer.

De badkamer ligt aan de voorzijde en is compact maar efficiënt ingedeeld. Deze is voorzien van een douche, wastafel en toilet. Dankzij het raam is er natuurlijke ventilatie en daglicht aanwezig.

Tweede verdieping

Via een vaste trap bereik je de zolderverdieping, die verrassend veel ruimte biedt. Op de voorzolder vind je de aansluitingen voor de wasmachine en droger, evenals de opstelplaats van de cv-installatie. Dankzij het dakraam komt er prettig daglicht naar binnen, waardoor dit een aangename en praktische ruimte is.

De zolderkamer is een volwaardige extra kamer door de dakkapel met een nette afwerking en een prettig lichtinval door het raam aan de voorzijde. Deze ruimte is uitstekend te gebruiken als vierde slaapkamer, werkkamer of hobbyruimte.

De zolder heeft bovendien voldoende bergruimte achter de knieschotten, ideaal voor koffers, kerstspullen of andere seizoensgebonden items.

Tuin

De voortuin van deze woning is een echte blikvanger: strak, modern en verzorgd aangelegd met een subtiel mediterraan tintje. Het ruime, onderhoudsvriendelijke terras is volledig bestraat met grote grijze tegels, wat zorgt voor een nette en eigentijdse uitstraling.

Centraal in de tuin staat een mooie palmboom in een verhoogde plantenbak — een opvallend groen element dat direct sfeer brengt. Rondom is ruimte gelaten voor enkele beplante borders en stijlvolle bloembakken met vaste planten, wat zorgt voor een speelse balans tussen groen en strak design.

De voordeur met modern glas-in-alu design vormt samen met de donkere gevelaccenten een fraai geheel. Er is bovendien voldoende plek voor een klein zitje voor het raam, ideaal om op een zonnige dag te genieten van een kop koffie.

De tuin is volledig verhard, waardoor deze onderhoudsarm is en tegelijk een representatieve uitstraling heeft — een voortuin die direct uitnodigt en een verzorgde indruk achterlaat nog vóór je binnenstapt

De achtertuin is een heerlijke buitenruimte die perfect aansluit op de leefruimte binnen. De tuin is volledig bestraat met grote grijze tegels, wat zorgt voor een strak en onderhoudsvriendelijk geheel. Dankzij de royale afmetingen is er volop ruimte voor meerdere zitgedeeltes — zo vind je hier een gezellige eethoek direct bij de woning en verderop een comfortabele loungehoek waar je heerlijk kunt ontspannen.

De tuin is omheind met een nette houten schutting, wat veel privacy biedt. Groene accenten worden toegevoegd door diverse plantenbakken met onder andere olijfbomen en siergrassen, die een mediterrane sfeer creëren. Achter in de tuin bevindt zich een stenen berging, ideaal voor het opbergen van fietsen en tuingereedschap, met daarnaast een handige achterom.

Door de gunstige ligging geniet je hier het grootste deel van de dag van de zon, waardoor dit de ideale plek is om buiten te eten, te barbecueën of gewoon te relaxen met familie en vrienden. Kortom: een verzorgde, ruime en zonnige achtertuin waar je direct van kunt genieten zonder onderhoudszorgen.

Bijzonderheden

Kadastraal bekend; het woonhuis met ondergrond en verder toebehoren gelegen te 2953 BM Alblasserdam, Troelstrastraat 40, kadastraal bekend gemeente Alblasserdam, sectie C, nummer 1929 ter grootte van een are en vijfenzestig centiare (1 a 65 ca),,
•Eigen grond
•Bouwjaar: 1966
•Woonoppervlak: 97m² (inhoud: 305³)
•Spouwmuur isolatie met HR++ isolatieparels, 6 cm dik in 2021.
•Kunststof kozijnen met petscreen horren
• Electrische rolluiken en screens
•CV ketel uit 2021
•Energielabel C geldig tot 24-10-2035
•Oplevering in overleg, kan snel.
• Er zal een ouderdomsclausule worden opgenomen in de koopakte voor deze woning.

•Ondanks dat grote zorgvuldigheid is betracht bij het samenstellen van de verkoopinformatie wordt voor de onjuistheid van de vermelde gegevens door de eigenaar noch door de verkopend makelaar enige aansprakelijkheid aanvaard.

•Rechtsgeldige koopovereenkomst pas ná ondertekening: 
Een mondelinge overeenstemming tussen de particuliere verkoper en de particuliere koper is niet rechtsgeldig. Met andere woorden: er is (nog) geen koop. Er is pas sprake van een rechtsgeldige koop als de particuliere verkoper en de particuliere koper de koopovereenkomst hebben ondertekend. Dit vloeit voort uit artikel 7:2 Burgerlijk Wetboek. Een bevestiging van de mondelinge overeenstemming per e-mail of een toegestuurd concept van de koopovereenkomst wordt overigens niet gezien als een ‘ondertekende koopovereenkomst’.

Kenmerken