Beschrijving

Aan de Sara Burgersingel 93 in Amersfoort staat deze lichte en verrassend ruime maisonnette te koop, met een zonnig balkon op het zuiden en twee volwaardige slaapkamers. 

Hier woon je op een plek waar comfort en praktisch woongemak samenkomen: op loopafstand van winkelcentrum Schothorst, met diverse winkels, supermarkt, drogist en overige voorzieningen binnen handbereik. 
De binnenstad van Amersfoort is op 10 minuten fietsen en het station van Schothorst is op loopafstand.

De woning voelt open en luchtig door de royale leefruimtes en de prettige lichtinval, terwijl de rustige ligging in de gewilde wijk Schothorst zorgt voor een ontspannen thuiskomst. Een fijn, compleet en instapklaar woonplekje op een locatie waar je zó aan gewend raakt.

Indeling

Via de voordeur betreed je de ruime entreehal (plafondhoogte ca. 2.51 m), die fungeert als verzorgde ontvangstruimte van de woning. Direct bij binnenkomst bevindt zich aan de linkerzijde de meterkast (MK), netjes weggewerkt in een compacte nis.

De hal biedt voldoende ruimte om jassen en schoenen op te bergen en heeft dankzij de raampartijen een prettige lichtinval. Vanuit de hal leidt een vaste trap je direct naar de bovenliggende woonverdieping, waar de belangrijkste leefruimtes zijn gesitueerd.

Eerste verdieping

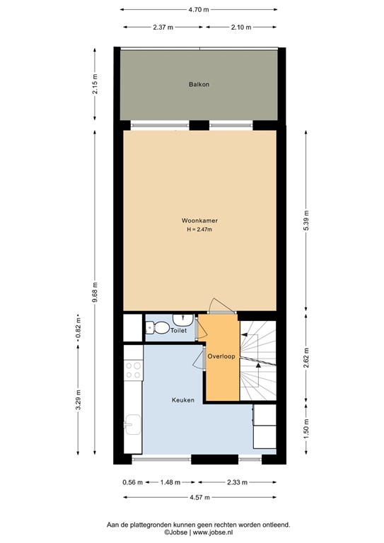
Vanaf de trapopgang kom je uit op een centrale overloop, die toegang biedt tot de keuken, het toilet en de woonkamer. De overloop voelt licht en open door de directe verbinding met de woonruimte.

Aan de voorzijde bevindt zich de keuken, uitgevoerd in een praktische rechte opstelling met ruimte voor alle benodigde apparatuur. Dankzij het raam aan de voorzijde is dit een prettige, lichte werkruimte.

Grenzend aan de keuken is een separaat toilet, ideaal gesitueerd voor zowel bewoners als gasten.

De verdieping wordt aan de achterzijde volledig ingenomen door de ruime woonkamer. Deze leefruimte biedt volop mogelijkheden voor een comfortabele zit- en eethoek en wordt dankzij de brede raampartijen heerlijk licht. Vanuit de woonkamer stap je direct door naar het balkon, dat over de volledige breedte van de woning is gelegen. Hier kun je optimaal genieten van een kop koffie of een moment in de buitenlucht.

De eerste verdieping combineert praktisch gebruiksgemak met een fijne, open leefervaring.

Tweede verdieping

Op de tweede verdieping geeft de centrale overloop toegang tot twee slaapkamers, de badkamer en meerdere praktische bergruimtes.

Aan de achterzijde bevinden zich twee ruime slaapkamers, beide met een prettig formaat en veel natuurlijke lichtinval. 
De grootste slaapkamer beschikt over een verplaatsbare trap naar boven, waar zich nog een extra bergruimte bevindt — perfect voor koffers, hobbyspullen of andere items die je uit het zicht wilt bewaren.

Aan de voorzijde van de verdieping is een separate bergruimte aanwezig, ideaal voor het opbergen van seizoenartikelen, huishoudelijke spullen of voorraad.

De badkamer ligt centraal op de verdieping en is ingericht met een wastafelmeubel, douche en wasmachineaansluiting.

Deze verdieping biedt een praktische en comfortabele indeling met volop mogelijkheden voor slapen, werken en opbergen.

Balkon

Via de woonkamer stap je het royale zuidgerichte balkon op, een heerlijke buitenruimte die over de volledige breedte van de woning (ca. 4,70 meter) loopt en circa 2,15 meter diep is. Dankzij deze ruime afmetingen is er meer dan genoeg plek voor een fijne loungehoek én een eettafel, waardoor je hier het hele jaar door optimaal kunt genieten.

Het balkon heeft een warme uitstraling door de houten vlondervloer en biedt veel privacy dankzij de halfhoge wanden aan weerszijden. De ligging op het zuiden zorgt voor volop zonuren; dit is dé plek om te ontspannen, buiten te eten of even met een kop koffie van de rust te genieten.

Met uitzicht op de groene omgeving vormt dit balkon een verlengstuk van de woonkamer en een waardevolle toevoeging aan de leefruimte.

Kenmerken