Beschrijving

Dit lichte en goed ingedeelde appartement van circa 43 m² heeft een fraaie ligging op de 5e verdieping, in een van de woontorens van De Albatros. Met een ruime slaapkamer, een ensuite badkamer met ligbad en inloopdouche, een apart toilet, een berging/wasruimte en een woonkamer met open keuken en kookeiland is dit een fantastische plek om te wonen.

Het appartementengebouw met vier markante torens staat op een mooie plek in Amsterdam-Noord met een prachtig uitzicht. Metro (noord-zuidlijn) en bus zijn op loopafstand (circa 5 minuten) en uiteraard is er een lift, waardoor trappenlopen tot het verleden behoort. Er zijn vele restaurants in de buurt, net als de bekende uitgaansgelegenheden FC Hyena, filmtheater Eye en De Goudfazant. Het Noorderpark en het Vliegenbos zijn een fijne plek om te wandelen, fietsen en te picknicken in de zon.

Indeling:
- Appartementengebouw:
Het ontwerp van HVDN Architecten heeft als doel de overgang tussen de grootschalige nieuwbouw en de kleinschalige omliggende tuindorpen soepel te laten verlopen. De vier torens zorgen ervoor dat elke woning een hoekligging heeft, waardoor bewoners optimaal kunnen genieten van daglicht en uitzicht.

Dit appartement bevindt zich, vanaf de straat gezien, in het voorste gebouw. Aan de straatzijde is de entree, met de brievenbussen en de video-intercom. Eenmaal binnen ga je met de lift (of trap) naar de 5e verdieping, waar dit appartement gesitueerd is.

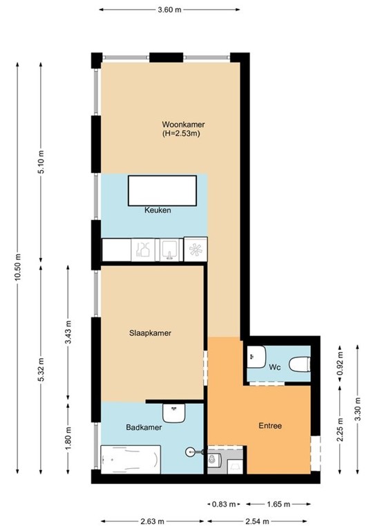
- Appartement:
Via de gedeelde hal stap je de woning binnen. Wat direct opvalt is de royale lichtinval én de prettige indeling van de ruimtes. Bij binnenkomst bevindt zich direct de toiletruimte met fonteintje en aan de linkerkant de berging met de opstelling van de wasapparatuur. De laminaatvloer ligt in vrijwel het hele appartement, zonder drempels bij de deuren. De open keuken is voorzien van moderne apparatuur en een kookeiland, wat zorgt voor een fijne verbinding tussen koken, eten en wonen.

De slaapkamer is ruim en licht, met voldoende ruimte voor een garderobekast. Direct aangrenzend bevindt zich de ensuite badkamer, die luxe is afgewerkt en beschikt over een ligbad, een inloopdouche en een dubbele wastafel met ronde spiegels en ingebouwde verlichting. Zowel de muren als de vloer zijn volledig betegeld, wat zorgt voor een moderne en verzorgde uitstraling.

Omgeving:
Dit is de perfecte uitvalsbasis als je graag in Amsterdam wilt wonen, op een plek met genoeg ruimte voor jong en oud. Aan de overzijde van de Johan van Hasseltweg vind je een speeltuin en een voetbalveld, terwijl rechts van het gebouw een voetbalveld, basketbalveld en een basisschool zijn. En wil je naar het centrum? Het is maar vijf minuten lopen naar de pont en vlak om de hoek is metrostation Noorderpark (Noord-Zuidlijn), die je in no-time naar het centrum en Amsterdam-Zuid brengt.

Parkeren:
Bij het appartement hoort geen vaste parkeerplek in de parkeergarage. Er zijn wel diverse mogelijkheden (koop/huur/vergunning) om in of rond het gebouw te parkeren.

Bijzonderheden:
- Woonoppervlakte ca. 43 m²
- Erfpacht afgekocht tot 01-05-2054
- Houten kozijnen met isolerende beglazing
- Buitenschilderwerk is uitgevoerd in 2025
- Verwarming via een elektrische boiler (2023)
- Energielabel C, geldig tot 2035
- Oplevering zo spoedig mogelijk
- Niet-zelfbewoningsclausule is van toepassing

De op deze website getoonde vrijblijvende informatie is door ons (met zorg) samengesteld op basis van gegevens van de verkoper (en/of derden). Wij staan niet in voor de juistheid of volledigheid daarvan. Wij adviseren je om contact met ons op te nemen bij interesse in een van onze woningen of je door een eigen deskundige te laten bijstaan.

Kenmerken