Beschrijving

#English translation below

Stijlvol gerenoveerd wonen in de geliefde Rivierenbuurt
Welkom aan de Biesboschstraat 63-3: een volledig gerenoveerde (2021) en lichte bovenwoning in het hart van de populaire Rivierenbuurt. Een instap klaar appartement waar comfort, sfeer en modern woonplezier samenkomen.

Indeling & sfeer
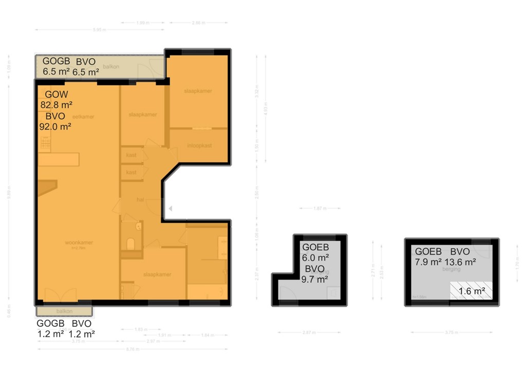
De entree met eigen voordeur bevindt zich op de derde verdieping. De voordeur komt uit in een hal met toegang tot alle vertrekken van de woning. De woonkamer is opvallend licht en voelt direct ruimtelijk aan. De actieve open haard vormt een sfeervol middelpunt en maakt de leefruimte extra comfortabel tijdens de koudere maanden.

De moderne high-end open keuken met kwalitatief inbouwapparatuur, is volledig vernieuwd in 2021 en sluit naadloos aan op de woonkamer. Het strakke ontwerp en de hoogwaardige afwerking zorgen voor een eigentijdse uitstraling een fijne plek om te koken, te tafelen en samen te komen.

De woning beschikt over drie goed bemeten slaapkamers. De master bedroom biedt directe toegang tot het balkon: een rustige plek om de dag te beginnen of ’s avonds even buiten te ontspannen. De twee overige slaapkamers zijn ideaal als kinder-, logeer- of werkkamer.

De badkamer en het separate toilet zijn in 2021 volledig gerenoveerd in een stijlvolle hotel-chique afwerking. De badkamer is voorzien van een ligbad, een inloopdouche en een dubbel wastafelmeubel met ingebouwde kranen. Ervaar luxe, comfort en rust in perfecte balans.

Extra bergruimte
Via het trappenhuis bereik je de bovenste verdieping waar zich twee separate bergingen bevinden. Eén van deze ruimtes is ideaal ingericht als wasruimte. Met in totaal 14 m² externe bergruimte biedt de woning verrassend veel praktische opslagmogelijkheden, een zeldzame luxe in de stad.

Wonen in de Rivierenbuurt
De Biesboschstraat ligt in de geliefde Rivierenbuurt: een rustige, groene en ruim opgezette wijk in Amsterdam-Zuid, bekend om haar karakteristieke jaren ’30 architectuur.

Op loopafstand bevinden zich de Maasstraat en Scheldestraat met diverse speciaalzaken, supermarkten, koffiebars en restaurants. Ook het Martin Luther Kingpark en de Amstel liggen vlakbij voor ontspanning en recreatie.
Openbaar vervoerverbindingen zijn uitstekend, met station RAI en Amstelstation op korte afstand. Daarnaast zijn uitvalswegen richting A2 en A10 snel bereikbaar.

Benieuwd naar de charmes van dit sfeervolle en instap klaar appartement aan de Biesboschstraat?Wij laten je deze woning graag persoonlijk ervaren tijdens een bezichtiging.

Bijzonderheden
• 82 m² woonoppervlak (NEN 2580)
• 3 slaapkamers
• Balkon van circa 8 m² op het Zuiden
• 14 m² externe bergruimte
• Volledig gerenoveerd in 2021
• Ruime woonkamer met moderne open keuken
• High-end keuken met hoogwaardige materialen en inbouw apparatuur
• Actieve open haard(geïnstalleerd in 2023)
• Luxe hotel-chique badkamer en separaat toilet
• Vloer verwarming met individuele controle per kamer
• A++ beglazing
• Zonnescherm op het balkon met afstandsbediening
• CV ketel bouwjaar 2009
• Energielabel E (2025-2035)
• Gezonde en actieve VvE beheerd door VvE NL (8 leden)
• MJOP aanwezig
• Servicekosten € 290,- per maand
• Erfpacht: Voortdurend recht afgekocht tot 15-08 2053
• Eeuwigdurende erfpacht vastgeklikt met jaarlijkse inflatie

Deze informatie is met de nodige zorgvuldigheid samengesteld. Onzerzijds wordt echter geen enkele aansprakelijkheid aanvaard voor enige onvolledigheid, onjuistheid of anderszins, dan wel de gevolgen daarvan. Alle opgegeven maten en oppervlakten zijn indicatief en van toepassing zijn de Vastgoed Nederland voorwaarden. 


ENGLISH TRANSLATION

Stylishly Renovated Living in the Sought-After Rivierenbuurt

Welcome to Biesboschstraat 63-3: a fully renovated (2021) and bright upper-floor apartment located in the heart of the popular Rivierenbuurt. A move-in-ready home where comfort, atmosphere, and modern living come together effortlessly.

Layout & Atmosphere
The private entrance is located on the third floor. Upon entering, you step into a hallway that provides access to all rooms of the apartment.

The living room is notably bright and immediately feels spacious. The functioning fireplace forms a warm and inviting focal point, adding extra comfort to the living area during the colder months.

The modern high-end open kitchen, fitted with high-quality built-in appliances, was fully renovated in 2021 and connects seamlessly to the living room. Its sleek design and premium finishes create a contemporary look — a perfect space for cooking, dining, and gathering.

The apartment offers three well-proportioned bedrooms. The master bedroom provides direct access to the balcony; a peaceful spot to start your day or unwind outdoors in the evening. The two additional bedrooms are ideal as children’s rooms, guest rooms, or home offices.

The bathroom and separate toilet were completely renovated in 2021 in a stylish hotel-chic design. The bathroom features a bathtub, a walk-in shower, and a double vanity unit with built-in fixtures. Experience luxury, comfort, and tranquility in perfect balance.

Additional Storage
Via the communal staircase, you reach the top floor where two separate storage units are located. One of these spaces is ideally suited as a laundry room. With a total of 14 m² of external storage space, the apartment offers surprisingly generous and practical storage options — a rare luxury in the city.

Living in the Rivierenbuurt
Biesboschstraat is situated in the highly desirable Rivierenbuurt: a quiet, green, and spaciously designed neighborhood in Amsterdam-Zuid, known for its characteristic 1930s architecture.

Within walking distance you will find the Maasstraat and Scheldestraat, offering a wide variety of specialty shops, supermarkets, coffee bars, and restaurants. The Martin Luther King Park and the Amstel River are also nearby for relaxation and recreation.
Public transport connections are excellent, with RAI Station and Amstel Station located a short distance away. Major highways such as the A2 and A10 are easily accessible.

Curious about the charm of this attractive and turnkey apartment on Biesboschstraat?
We would be delighted to show you this property in person during a viewing.

Particulars
• 82 m² living area (NEN 2580)
• 3 bedrooms
• South-facing balcony of approximately 8 m²
• 14 m² external storage space
• Fully renovated in 2021
• Spacious living room with modern open kitchen plan
• High-end kitchen with high quality materials and built-in appliances
• Functioning fireplace(installed in 2023)
• Luxury hotel-chic bathroom and separate toilet
• Floor heating with individual control in each room
• Central heating boiler (2009)
• Double-glazed A++ windows
• Sun screens on the balcony with remote control
• Energy label E (2025–2035)
• Healthy and active HOA managed by VvE NL (8 members)
• Long-term maintenance plan (MJOP) available
• Service charges: € 290 per month
• Leasehold Fixed ground rent (voortdurend recht) bought out until 2053
• Perpetual (eeuwigdurend) locked in with annual inflation adjustment


This information has been compiled with due care. However, we accept no liability for any incompleteness, inaccuracy, or otherwise, or the consequences thereof. All stated dimensions and surface areas are indicative and the Vastgoed Nederland conditions apply.

Kenmerken