Beschrijving

Sommige plekken hoef je niet uit te leggen — die voel je meteen.

Dit is zo’n plek waar de stad even stil lijkt te vallen, terwijl ze er nog steeds is. Voor velen voelt dit als één van de mooiste stukjes van Amsterdam.
Rustig gelegen aan de Nieuwe Prinsengracht, met de Amstel om de hoek en de levendigheid van de stad altijd dichtbij. 

Het uitzicht over het water vanuit de slaapkamer verandert hier met het licht en de seizoenen — elke dag een ander perspectief, zonder dat het ooit verveelt.  De Nieuwe Prinsengracht is geen doorsnee straat. Hier stroomt alles net iets langzamer. Statige panden en een rust die zeldzaam is geworden in de stad. In de zomer zit je aan het water terwijl bootjes voorbijglijden en de zon langzaam zakt achter de gevels.
In de winter wordt het hier juist intiem — met stille ochtenden en een stad die even op afstand voelt.

Welkom aan de Nieuwe Prinsengracht.
Een woning waar karakter en comfort moeiteloos samenkomen, met een zeldzaam gevoel van rust en vrijheid op hoogte.
Gelegen op de bovenste verdieping van een gemeentelijk monument uit 1891 — wat niet alleen zorgt voor prachtige zichtlijnen, maar ook voor het comfort van geen bovenburen.
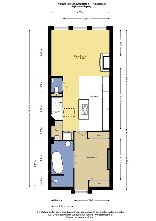
Met circa 64 m² woonoppervlakte en gelegen op eigen grond.

Bij binnenkomst vallen direct het licht en de diepte van de ruimte op.
De zichtlijnen lopen vrij door de woning, waardoor elke ruimte in verbinding staat en het geheel groter aanvoelt dan je zou verwachten.
De grote ramen trekken het daglicht diep naar binnen en versterken het open karakter, terwijl de ligging op de bovenste verdieping zorgt voor rust en privacy.

De woning is met aandacht gerenoveerd, waarbij luxe materialen en een warme afwerking samenkomen tot een geheel dat zowel stijlvol als comfortabel aanvoelt.
De open keuken vormt het hart van de woning. Voorzien van hoogwaardige Miele- en Gaggenau-apparatuur, met een centraal kookeiland dat niet alleen functioneel is, maar ook de plek waar de dag samenkomt — koken, praten en blijven hangen tot laat.
Aan de achterzijde ligt een van de fijnste plekken van het huis: de vensterbanklounge op het zuiden.
Een plek waar de dag begint met zonlicht en zich in alle rust voortzet — met een boek, een glas wijn of gewoon het moment zelf.
De slaapkamer voelt rustig en beschut, met praktische inbouwkasten aan weerszijden en directe toegang tot de badkamer.
De badkamer is luxe en comfortabel ingericht met vloerverwarming, spiegelverwarming, een ligbad en een ruime inloopdouche.
Daarnaast is er een separaat toilet en een praktische ruimte voor wasmachine, droger en cv-opstelling.
De woning is hoogwaardig gerenoveerd met focus op kwaliteit en dagelijks comfort.
De keuken is uitgerust met premium inbouwapparatuur (Miele en Gaggenau), inclusief stoomoven, vaatwasser en Quooker.

De ligging op de bovenste verdieping zorgt daarbij niet alleen voor licht en uitzicht, maar ook voor extra rust en privacy in het dagelijks gebruik.
Energielabel C (geldig tot 09-02-2036).

De woning maakt deel uit van een actief en goed onderhouden gebouw.
Kenmerken:
• Woonoppervlakte ca. 64 m² (NEN2580-rapport aanwezig)
• Gelegen op eigen grond
• Bovenste verdieping (geen bovenburen)
• Gemeentelijk monument uit 1891
• Gelegen binnen rijksbeschermd stadsgezicht / UNESCO-werelderfgoed
• Energielabel C (geldig tot 09-02-2036)
• Actieve VvE
• Servicekosten: € 75,- per maand
• MJOP aanwezig (vanaf 1 maart 2026)
• Oplevering in overleg

Een woning die zich onderscheidt zonder dat het benoemd hoeft te worden.
Wie hier binnenstapt, begrijpt het vanzelf.


Disclaimer:
Deze informatie is door ons met de nodige zorgvuldigheid samengesteld. Onzerzijds wordt echter geen enkele aansprakelijkheid aanvaard voor enige onvolledigheid, onjuistheid of anderszins, dan wel de gevolgen daarvan. Alle opgegeven maten en oppervlakten zijn indicatief. Koper heeft zijn eigen onderzoeksplicht naar alle zaken die voor hem of haar van belang zijn. Met betrekking tot deze woning is de makelaar adviseur van verkoper. Wij adviseren u een deskundige VBO-makelaar in te schakelen die u begeleidt bij het aankoopproces. Indien u specifieke wensen heeft omtrent de woning, adviseren wij u deze tijdig kenbaar te maken aan uw aankopend makelaar en hiernaar zelfstandig onderzoek te (laten) doen. Indien u geen deskundige vertegenwoordiger inschakelt, acht u zich volgens de wet deskundige genoeg om alle zaken die van belang zijn te kunnen overzien. Van toepassing zijn de VBO voorwaarden

Indien u een bezichtiging wenst, gelieve deze schriftelijk aan te vragen via FUNDA -> contact met de makelaar

English
Historic Living with Canal Views on the Nieuwe Prinsengracht

Wake up to tranquil canal views while Amsterdam’s vibrant city life lies just a short stroll away.
This characterful loft apartment of approximately 64 m², located on freehold land, is nestled on the top floor of a municipal monument dating back to 1891 on the picturesque Nieuwe Prinsengracht. Here, historic charm, high-end finishes and a rare sense of privacy come together in perfect balance.

The apartment has been carefully renovated with great attention to detail, placing quality and comfort at the forefront. The open kitchen immediately draws the eye and is fitted with premium Miele and Gaggenau appliances, including an oven, steam oven, fridge with freezer, dishwasher, gas stove and a Quooker boiling-water tap.
The centrally positioned kitchen island forms the natural heart of the home — ideal for long evenings cooking and entertaining with friends.
Thanks to three large windows, the living room is filled with natural light throughout the day. At the rear of the apartment, the south-facing window seat lounge creates a favourite spot in the home: a sunny corner where you can effortlessly spend hours with a good book, a coffee or a glass of wine while the city slowly winds down. The fireplace adds warmth and an inviting, intimate atmosphere.
The luxury bathroom features underfloor heating and heated mirrors, a generous bathtub and a spacious walk-in shower — a space designed for comfort and relaxation.
 
Layout
Via a private entrance, you reach the apartment on the fourth floor. The open connection between the living area and kitchen creates a spacious and welcoming living environment with room for a comfortable dining area.
The bedroom offers built-in wardrobes on both sides and provides direct access to the bathroom. In addition, there is a separate toilet near the stair landing, as well as a utility cupboard with the central heating system, washing machine and dryer.
 
Location
Living on the Nieuwe Prinsengracht means residing in a place where tranquility, history and vibrant city life subtly merge.
Situated between the Amstel River and the green avenues of Plantage, this is one of Amsterdam’s most charming and sought-after neighbourhoods. The area is known for its elegant architecture, wide streets and abundance of greenery, combined with a rich cultural scene.
This part of the city was developed in the 17th century as an expansion of Amsterdam, originally intended for residents seeking space beyond the busy canal belt. 

The neighbourhood is particularly popular with international residents thanks to its calm atmosphere, central location and proximity to Amsterdam’s cultural institutions.

Within walking distance you will find the lively Utrechtsestraat, known for its boutique shops and excellent restaurants, as well as several museums, theatres and cultural institutions. The banks of the Amstel River are also nearby, offering beautiful routes for relaxing walks along the water.

Public transport connections (tram and metro) and main roads are easily accessible, allowing quick travel to other parts of the city.
In short: a unique top-floor apartment in one of the most beautiful and peaceful locations in Amsterdam, where historic charm, luxury and dynamic city living meet.
 
Key Features
• Living area approx. 64 m² (NEN2580 measurement report available)
• Located on freehold land (no ground lease)
• Situated on the top floor
• Municipal monument dating from 1891
• Located within a protected historic cityscape / UNESCO World Heritage area
• Energy label C (valid until 09-02-2036)
• Active Homeowners Association (VvE)
• Service costs: €75 per month
• Long-term maintenance plan (MJOP) available from 1 March 2026
• Transfer date in consultation

Disclaimer
This information has been compiled by us with due care. However, we accept no liability for any incompleteness, inaccuracies, or otherwise, nor for the consequences thereof. All stated measurements and surface areas are indicative. The buyer has a duty to conduct their own investigation into all matters that are of importance to them. With regard to this property, the real estate agent acts as advisor to the seller. We recommend engaging a professional VBO real estate agent to guide you through the purchasing process. If you have specific requirements regarding the property, we advise you to communicate these in a timely manner to your purchasing agent and to conduct (or have conducted) independent research accordingly. If you do not engage a professional representative, you are deemed by law to be sufficiently knowledgeable to oversee all matters of importance. The VBO terms and conditions apply.

If you would like a viewing, please request this in writing via FUNDA -> contact the broker
Disclaimer

Kenmerken