Beschrijving

**** To schedule a viewing please scroll down **** 

Fijn en licht benedenhuis van 67m2 met twee slaapkamers en tuin op het zuiden! Gelegen in het populaire en gezellige Oost, op steenworp afstand van het Centrum. Eigen grond!

Indeling
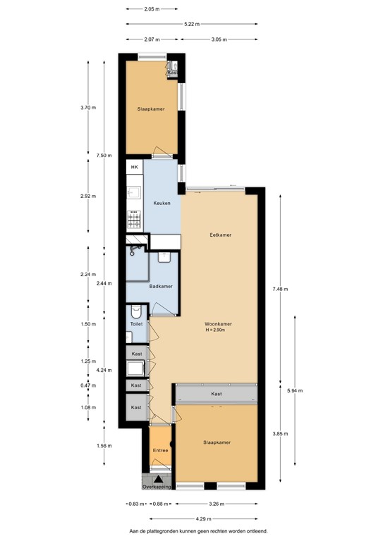
Eigen entree op de begane grond, met toegang tot de woonkamer. Woonkamer beschikt over kastruimte, washok en toegang tot het separate toilet en de badkamer. De badkamer is voorzien van een douche, wastafel en wastafelmeubel. Grote woon-/eetkamer met licht vanuit de tuin. Via de schuifpui loopt men zo de tuin in die veel privacy biedt. Aan de voorzijde van de woning bevindt zich de grote slaapkamer met veel kastruimte. De half open keuken grenst aan het woongedeelte. De keuken is voorzien van diverse inbouwapparatuur en een Quooker! Aan de achterzijde de 2e slaapkamer met een kast voor de CV ketel.

De eigen tuin ligt op het Zuiden en is via een achterom en de gemeenschappelijke fietsenstalling te bereiken.

Omgeving
Het appartement is gelegen in de gezellige en steeds populairder wordende Oosterparkbuurt. Op een steenworp afstand zijn talloze leuke restaurants en pleinen te vinden, zoals Café Maxwell, Bukowski, Amstelhaven, de Ysbreeker en 4850. Ook het Oosterpark en de Amstel zijn zeer snel bereikbaar.
Ook zijn de populaire sportfaciliteiten PLTS en RoCycle op steenworp afstand gelegen.

Bereikbaarheid
Het appartement is met openbaar vervoer goed bereikbaar. Op enkele minuten loopafstand vind u metrostation Wibautstraat en Weesperplein en ook Amsterdam Muiderpoort en Amstel zijn binnen enkele minuten op de fiets bereikbaar. De locatie is zeer centraal, doordat het is gelegen op het randje van Oost en het Centrum. Met de auto bent u binnen 5 minuten op de A10. 

Vereniging van Eigenaren
De VvE bestaat uit 8 leden (huisnrs. 66 t/m 70) en wordt actief beheerd. De maandelijkse bijdrage bedraagt €160,12 en er is een reservefonds. Een meerjaren onderhoudsplan is aanwezig.

Bijzonderheden:
- VVE €160,12
- 2017 volledig gerenoveerd
- Woonoppervlakte 67,2 m2 (NEN2580 rapport aanwezig)
- Tuin op het Zuiden
- Gelegen op eigen grond
- 2 slaapkamers
- Houten lamel parket vloer 
- Oplevering in overleg
- Er is pas een overeenkomst als de koopakte is getekend.
- Koopakte wordt opgemaakt door een notaris in Amsterdam.

"Deze informatie is door ons met de nodige zorgvuldigheid samengesteld. Onzerzijds wordt echter geen enkele aansprakelijkheid aanvaard voor enige onvolledigheid, onjuistheid of anderszins''

You can book an appointment by going to the listing directly on HousingNet's website:

-> Go to HousingNet's website
-> Click on the listing you are interested in
-> Click on the orange button which says "Bezichtiging inplannen/Plan a viewing"
-> Confirm the viewing directly via this calendar

Kenmerken