Beschrijving

Prachtig, licht, ruim drie kamer appartement met 2 balkons waarvan de ruimste op het zonovergoten zuiden ligt, aan de groene binnentuin. U geniet hier van lage energie lasten met het energielabel C en de erfpacht is na 2035 reeds eeuwig durend afgekocht!

Deze woning ligt op de hoek van het gebouw in een heerlijk groen en rustig deel van Buitenveldert. De wijk kenmerkt zich door haar vele parkjes vol groen en waterpartijen. De verbindingen met het openbaarvervoer zijn onvergelijkbaar en zowel meerdere speciaalzaken,  winkelcentra, sportaccommodaties, scholen en de Zuidas zijn op loopafstand te bereiken.

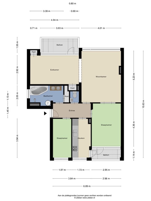
Indeling
De gemeenschappelijke entree bevindt zich op de hoek van de woning en u heeft daarmee betrekkelijk weinig verkeer in het trappenhuis. U bereikt via een achterdeur de berging op de begane grond van maar liefst 9 m²,  welke is voorzien van stroom.  Op  de tweede verdieping treft u de overloop met voordeur naar de woning. De hal van de woning geeft toegang tot alle vertrekken.

Badkamer
De badkamer met ligbad, dubbele wastafel en inloopdouche bevindt zich meteen aan de linker zijde van de hal. Het is voorzien van zowel mechanische ventilatie als natuurlijk ventilatie doormiddel van een te openen bovenraam. Ook treft u hier de wasmachine aansluiting.

1ste slaapkamer
De eerste slaapkamer bevindt zich aan de overzijde van de badkamer (rechts in de hal) en is goed te gebruiken als kantoor of kinderkamer. Groot voordeel is dat de kamer zich aan de koele zijde bevindt dus ook in de zomer lekker koel is.

Keuken
Na de toilet ruimte bereikt u de ruime keuken die slim in de diepte is geplaats. Hierdoor heeft u meer dan voldoende werk- en kast ruimte. Er is een goed formaat koel-vries combinatie aanwezig. Natuurlijk ontbreken een oven en vaatwasser niet. Prettig is ook dat er toegang naar het eerste balkon is via de keuken.

Master bedroom
De tweede slaapkamer bevindt zich ook aan de koele kant van het appartement en is ruim. Vanuit hier heeft u ook toegang tot het eerste balkon op het noorden.

Woonkamer met eetkamer en prachtig zonnig balkon
Het licht in de ruime woonkamer zal u meteen verrassen. Door de grote ramen aan de groene binnen tuin op het zuiden heeft u hier al vroeg op de dag heel veel daglicht. De ruimte is L-vormig en heeft een diepe zijde ideaal voor een lange eettafel. Een alternatieve indeling met het verplaatsen van de keuken naar deze ruimte zou technisch goed mogelijk moeten zijn. Het ruime tweede balkon op het zuiden met dat groene uitzicht is vanuit hier bereikbaar.

Bijzonderheden: 
- Rustig gelegen ruim appartement vlakbij scholen, winkels, openbaar vervoer, parken en sportvoorzieningen.
- Erfpacht eeuwigdurend afgekocht na 2035. Tot 2035 een jaarlijks canon van €152,-
- Energielabel C.
- Woonoppervlakte 82m², externe bergruimte.
- 2 slaapkamers (3 mogelijk). 
- 2 balkons zowel op noord als zuid.
- Externe berging op de begane grond CA 9 m².
- Bouwjaar: 1962.
- Bijdrage VvE: €327,98 per maand waarvan €64,- voorschot op de stokkosten en €77,- wordt gereserveerd voor extra onderhoud.
- Gezonde professionele VVE met meer-jaren onderhoudsplan.
- Asbest en niet- bewonersclausule van toepassing. 
- Snelle oplevering mogelijk.

Maak snel een afspraak voor een persoonlijke bezichtiging!

DISCLAIMER
Deze informatie is met de nodige zorgvuldigheid samengesteld. Er wordt echter door Van Westerloo Makelaardij geen aansprakelijkheid aanvaard voor enige onvolledigheid, onjuistheid of anderszins, dan wel de gevolgen daarvan. Alle opgegeven maten en oppervlakten zijn indicatief. Koper heeft zijn eigen onderzoek plicht naar alle zaken die voor hem of haar van belang zijn. Van Westerloo Makelaardij accepteert geen aansprakelijkheid ten gevolge van foutieve informatie voortvloeiend uit officiële documentatie niet afkomstig uit eigen hand. Met betrekking tot deze woning is de makelaar adviseur van verkoper. Van Westerloo Makelaardij adviseert u een deskundige makelaar in te schakelen die u begeleidt bij het aankoopproces. Indien u specifieke wensen heeft omtrent de woning, adviseert Van Westerloo Makelaardij u deze tijdig kenbaar te maken aan uw aankopend makelaar en hiernaar zelfstandig onderzoek te (laten) doen. Schriftelijke vereiste is van toepassing.

Kenmerken